Antonio Bonet Castellana dispuso en La Ricarda de todas las bazas con las que puede soñar un arquitecto: una parcela idílica entre pinos, cerca de Barcelona y a escasos metros del Mediterráneo; un cliente cultivado, generoso y exigente; y tiempo para desarrollar el proyecto e ir perfeccionando sus detalles.
Bonet Castellana no desperdició la ocasión y logró en La Ricarda, situada en El Prat de Llobregat, una obra maestra: quizás la más clara candidata, junto a la Casa Ugalde
de José Antonio Coderch de Sentmenat, en Caldes d’Estrach, al hipotético título de mejor segunda residencia catalana.
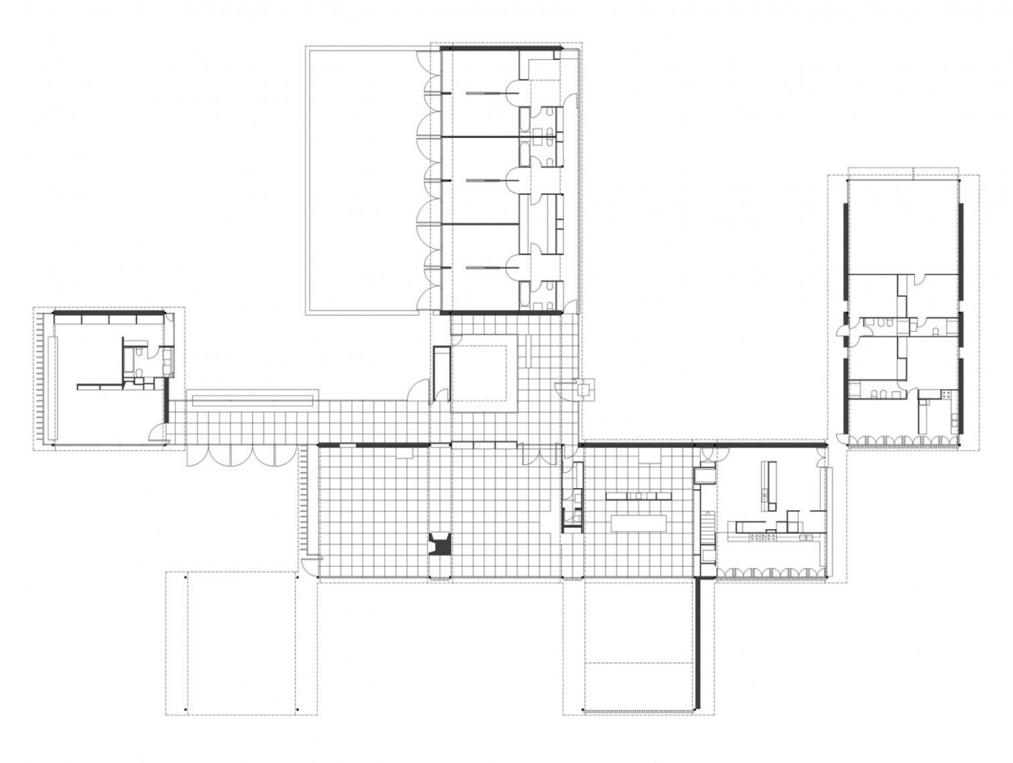
Ricardo Gomis, su cliente, quería una casa para disfrutar de la naturaleza. Bonet Castellana le respondió con una gran marquesina modular, formada por bóvedas de hormigón de 8,8 por 8,8 metros, que se inspiran en las dunas y los pinos del lugar, se articulan dibujando una planta irregular y protegen por igual del sol o de la lluvia.
Algunas de esas bóvedas las dejó tal cual, suspendidas sobre sus cuatro pilares metálicos; otras se cerraron con cristaleras, celosías cerámicas o tabiques, según se quisieran conseguir espacios exteriores, intermedios o interiores.
Los principales materiales empleados en La Ricarda fueron autóctonos. Y un mobiliario diseñado o seleccionado por el propio Bonet Castellana completó la deslumbrante labor llevada a cabo en esta vivienda. La Ricarda, joya de la arquitectura moderna catalana, sigue hoy en pie, perfectamente integrada en el medio natural en el que se asentó. Pero el medio artificial sobrevenido –la ensordecedora proximidad del aeropuerto de El Prat y su creciente número de pistas– la ha transformado en un infierno sónico, en una casa sólo apta para sordos, casi inhabitable. A principios de los 60, cuando los Gomis empezaron a disfrutar de La Ricarda, el tráfico aéreo del aeropuerto barcelonés era poca cosa. Ahora, tras el boom olímpico, la afluencia turística que propició y la posterior ampliación aeroportuaria, dicho tráfico ha crecido hasta condenar La Ricarda. Y, sin embargo, ahí sigue la obra de Bonet Castellana. Con la huella del tiempo grabada sobre su piel. Pero sin haber perdido un ápice de su elegancia, luciendo todavía su distribución y su mobiliario originales, y cuidada con todo el cariño por las hijas de Ricardo Gomis























7 Comments
No encuentro informacion sobre que es lo que genera ese 8,8 del modulo de la casa, pienso que es por la cantidad de las lozas 11×12? alguien tiene informacion al respecto que podria confirmar esa informacion?
Hoy he estado otra vez en “La Ricarda”, los documentos expuestos realizados por Fernando Alvarez y Jordi Roig son de una precision impresionante y la ejecución impecable.
Miraros Tectonica 18, mejor comprarla, vale la pena tenerla como documento histórico. Marita Gomis siempre habla muy bien de ellos dos y siempre menciona la revista Tectónica.
No solo Fernando Álvarez, también Jordi Roig. Miraros el tectónica 18
annónimo tienes toda la razón, si la intervención hubiera sido de un arquitecto conocidísimo, saldria su nombre en todos los sitios, somos un pais pequeño …
Ho trist es que no es comenti res del seu restaurador (el Fernando Álvarez)…
Un descobriment! Moltes gracies!!
Francesc Buixeda