The museum presents itself to the city like a chest that contains its jewels and past memories is located in the lowest part of the city, set within a block which is compressed between the ex isting historical buildings and the historical centre, at the foot of the rocky hillside. The physical compression, determined by the urban pressure of the surrounding buildings defines a grazing circulation along the perimeter of the building, in the cracks opened between the museum, some of the surrounding buildings and the rocks.
The axial academic composition in abandoned; the vision becomes fragmented and shortened; the building is never visible in its entirety. From the top of the city, the roof appears like the only level surface of the context.
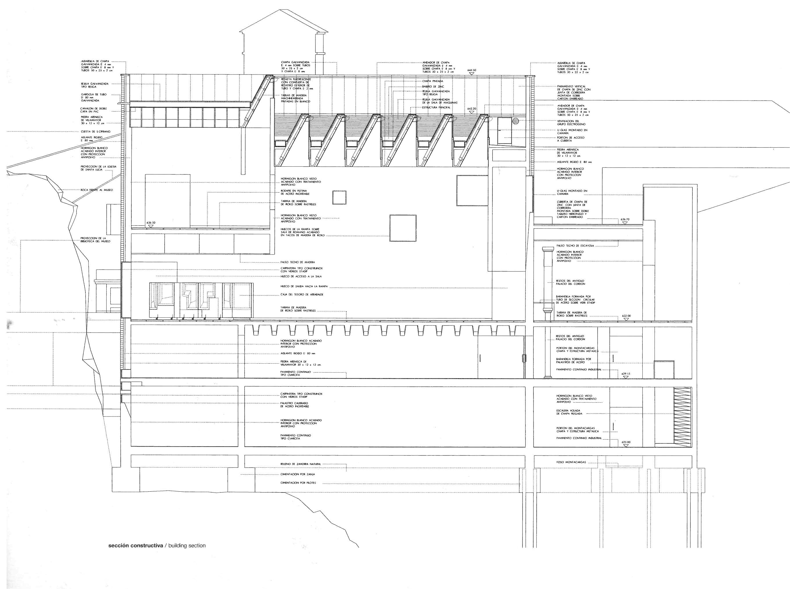
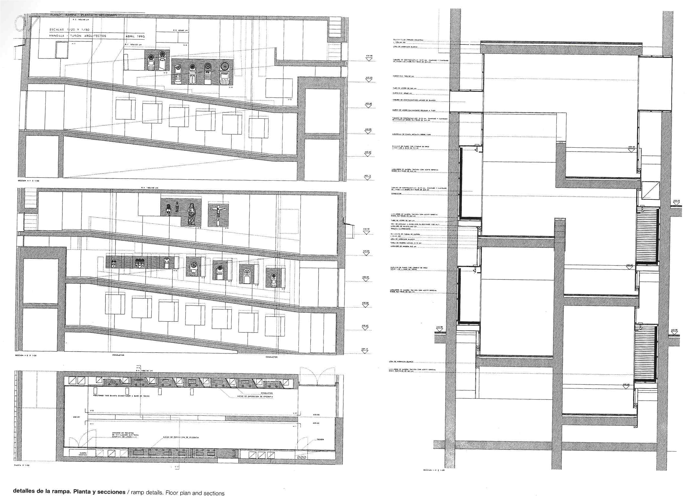
Apart from the old entrance from the lower square, the archaeological collection is accessible from another side, on a higher level, for the visitors descending from the historical town centre This new level (632 metres above sea-level) is accessible along an external ramp that runs along the rock and the building and which is also the starting point for the development of the archi tectural program, defining a clear stratification of uses. Storerooms and offices are gathered un- der this level and above it, the exhibiting rooms are joined to the ramp (the functional core of the building) and lit from above by skylights. The sloping surface of the ramp organises the section of the museum on different levels and not by means of a simple vertical superimposition of floors In a detached pavilion, linked directly to the storerooms, are situated the restoration laboratories. separated from the main building by a narrow courtyard.
The building is constructed with white reinforced concrete walls. The facades are clad with sand- stone bricks from Villamayor (cm 15 x 15 x 30), held together by stainless steel ties. The roof is covered with zinc. The external and internal floors, in common with some of the other internal de- tails, are made of teakwood.
From the sunny square, passing through the door of the old palace, one enters a tall dark space. The ground-floor is dark and labyrinthine and one has the impression of a great spatial comple- xity. The light filters from above through gaps between the walls and floors and a circular route wraps around a central core as a ramp that leads upstairs. From the ramp some internal windows open to the exhibition halls. Ascending the ramp the light progressively increases, halls of varying height lead off, and the skylight roof appears. One passes from the dark colours of the stone and timber of the lower levels to the white concrete and the blue sky that can be seen through the skylights.

























