La Casa de verano de Gunnar Asplund en Stennäs (Suecia) fue construida en 1937. Esta casa está situada en la isla de Lisön, en el archipiélago de Estocolmo, dominando la ensenada de Hästnäsviken.
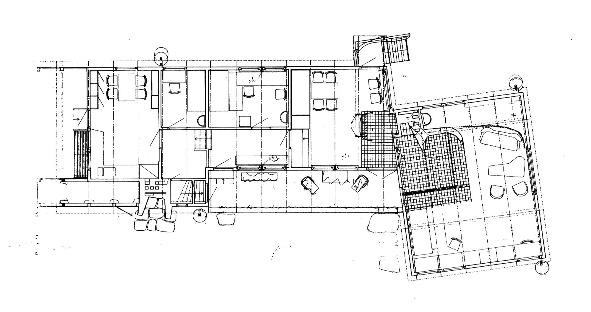
Frente a la orilla del mar, sobre la cota más baja de un terreno en pendiente protegido del norte por grandes peñascos de unos siete metros de altura, se localizó el lugar perfecto para el emplazamiento. La casa se levantaba a un metro escaso de distancia de la formación granítica, disponía de una única planta y se adaptaba a la topografía organizándose en cuatro niveles. La pared de roca delimitaba un espacio abrigado frente a la fachada oeste sobre la que se abría un amplio porche. Este se concibió como una extensión del espacio interior —para disfrutar de las noches de verano— a la vez que actuaba como pórtico de entrada, ya que la puerta principal se situaba en este frente.
Con la intención de recuperar la dimensión estética y simbólica del paisaje —determinante en la arquitectura tradicional sueca—, la intervención sobre el lugar pretendía ser prácticamente imperceptible. Sobre la amplia parcela distribuye los edificios del conjunto; la vivienda y siete pequeñas construcciones independientes de madera que albergaban el aseo, la sauna, una pequeña leñera y algunos almacenes. Asplund proyectó un camino de acceso que discurría por la parcela respetando la vegetación existente y planteó únicamente la plantación de varios frutales. Aún así, según su hijastro, Per Wahlman, finalmente se talaron algunos árboles situados frente a la casa para permitir las vistas de la bahía. Con todo, la decisión de acometer el proyecto disponiendo las construcciones dispersas sobre la parcela, sin provocar apenas alteraciones en el lugar, no resulta extraña para el maestro sueco autor del Cementerio de Estocolmo, donde ya había quedado demostrada su extremada sensibilidad a la hora de abordar las relaciones entre la arquitectura y el paisaje.
La casa se organizaba en dos cuerpos protegidos por los faldones de una cubierta de madera a dos aguas. El volumen mayor contenía la cocina, los dormitorios y las áreas de servicio mientras que el menor, girado algo más de noventa grados respecto al anterior, albergaba la sala de estar. Se construyeron dos chimeneas; la primera actuaba como punto de articulación entre las dos piezas y se situaba entre los dos niveles que dividían el cuarto de estar, adoptando una disposición escalonada. La segunda, situada en el exterior, se apoyaba sobre la fachada orientada a poniente.






























1 Comment