El nuevo complejo para la producción de cava, el vino espumoso catalán, está situado en una finca de la comarca del Penedès. Frente a elegantes edificios modernistas obra del arquitecto Josep Puig i Cadafalch, está situado en el punto donde las montañas de las afueras de Sant Sadurní confluyen con los viñedos que descienden suavemente hacia el pie de la montaña de Montserrat.
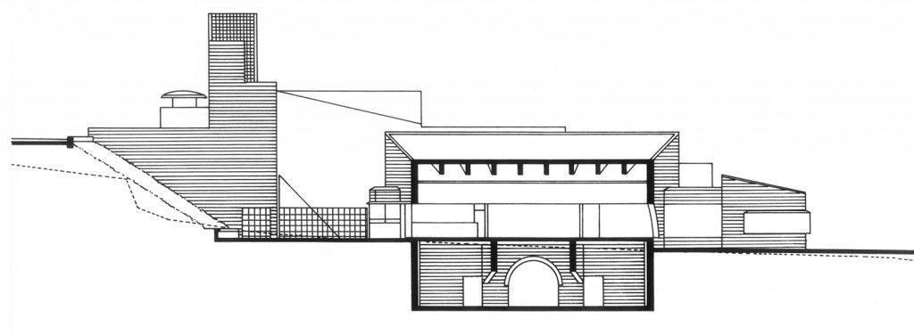
La disposición de los diversos edificios confiere al complejo una expansión lineal, ganando en presencia a medida que se extiende. El patio circular acoge y resalta el roble centenario de Can Codorniu. Otro patio rectangular, más funcional, sirve para relacionar los edificios con su proceso. Una torre mirador, con accesos a distintos niveles, aloja la planta técnica y señala la entrada del complejo en el punto de encuentro de los diversos trazos geométricos representados en ambos patios. Los muros de carga son predominantemente de ladrillo rojo. Los espacios más representativos están cubiertos con vigas de hormigón in situ y bóvedas de hormigón y ladrillo de técnicas diversas características de la zona.































