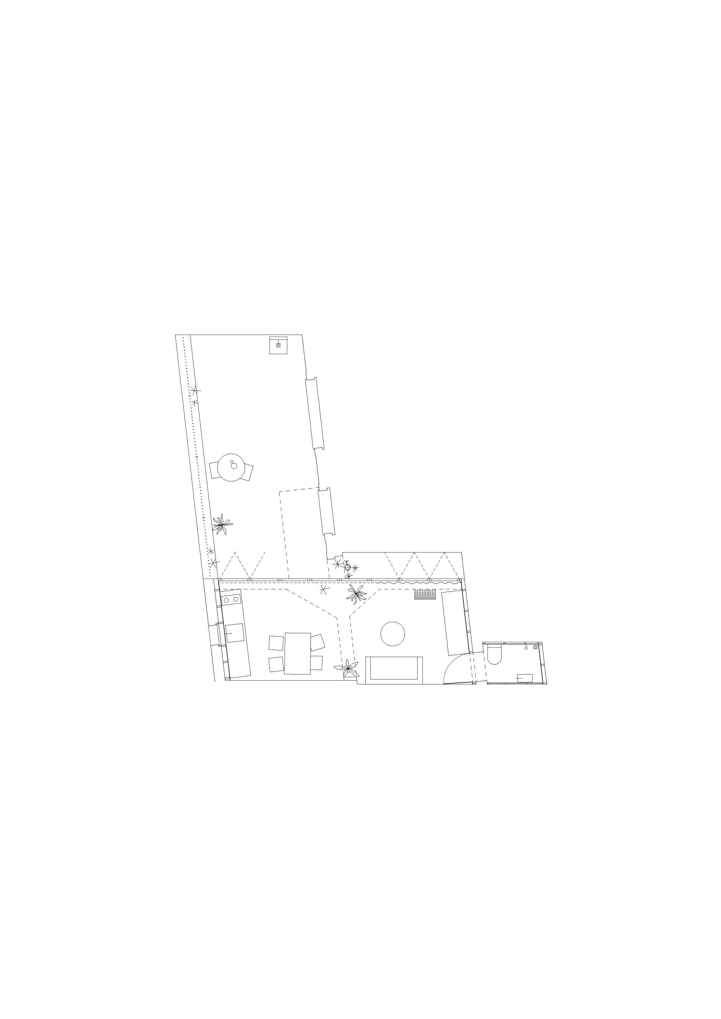
Trois celliers sont réunis en un seul volume habitable.
Les murs de refends et de façades en briques sont ouverts jusqu’à 2,10m de haut.
Un ouvrage en béton composé de deux poutres et trois poteaux reprend les charges structurelles.
Une menuiserie repliable en aluminium anodisé permet d’ouvrir intégralement l’appartement sur la cour.
Les façades intérieures sont isolées avec des panneaux de liège dans une ossature en douglas.
Les parois intérieures sont habillées de tôles d’aluminium anodisé intégrant un dispositif d’étagères sur crémaillères.
Three cellars are combined into a single living space.
The brick partition and facade walls are open to a height of 2.10m.
A concrete structure consisting of two beams and three columns supports the structural loads.
A foldable window in anodised aluminium enables the whole flat to be opened onto the patio.
The interior facades are insulated with cork panels in a Douglas framing.
The interior walls are clad with anodised aluminium sheets incorporating a rack system.


















