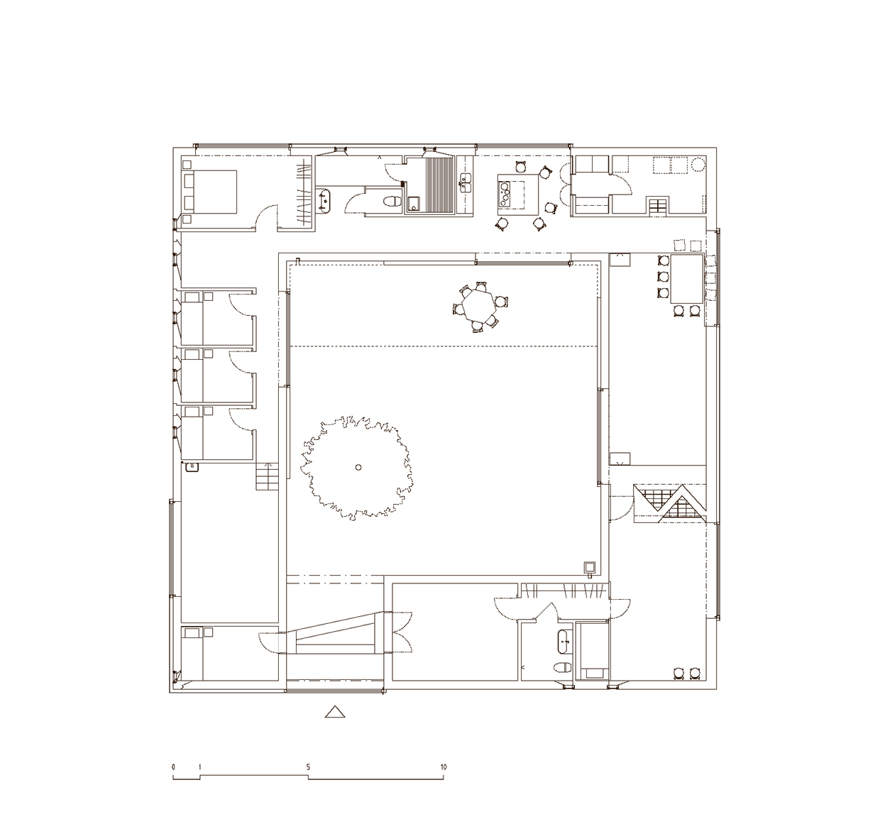
Atrium House is a vacation home for a family of three generations on the island of Gotland in the Baltic Sea. It is built on a slight ridge that marks the former location of the coastline a thousand years ago. In relation to the open and expansive landscape, the building seems more like a low wall than a house. It is built around a completely enclosed atrium courtyard that is designed to serve as a fixed point, a sheltered outdoor room. The rest of the property is left undisturbed as a meadow where grazing sheep prevent the land from returning to forest.
The house is narrow, but its openings facing out are wide, giving the interior the character of a niche like shelter in the open space of the landscape. While the roof maintains a consistent elevation throughout the house, the interior floor rises and falls in accordance with the surrounding terrain. This means the height of the ceiling varies within the main spaces, which are arranged in a continuous ring around the atrium. Within this continuous space, the smaller rooms are assembled in a number of solid blocks.
Inspired by the impressive materiality of Gotland’s vernacular agricultural architecture, the masonry construction has a natural plaster colour that has been mixed with carbon black, exterior metal parts made of oxidised zinc, and oak doors as well as windows that have been treated with tar oil. The large sliding glass windows are mounted on the surface of the exterior walls, according to the same principle as many barn doors.















