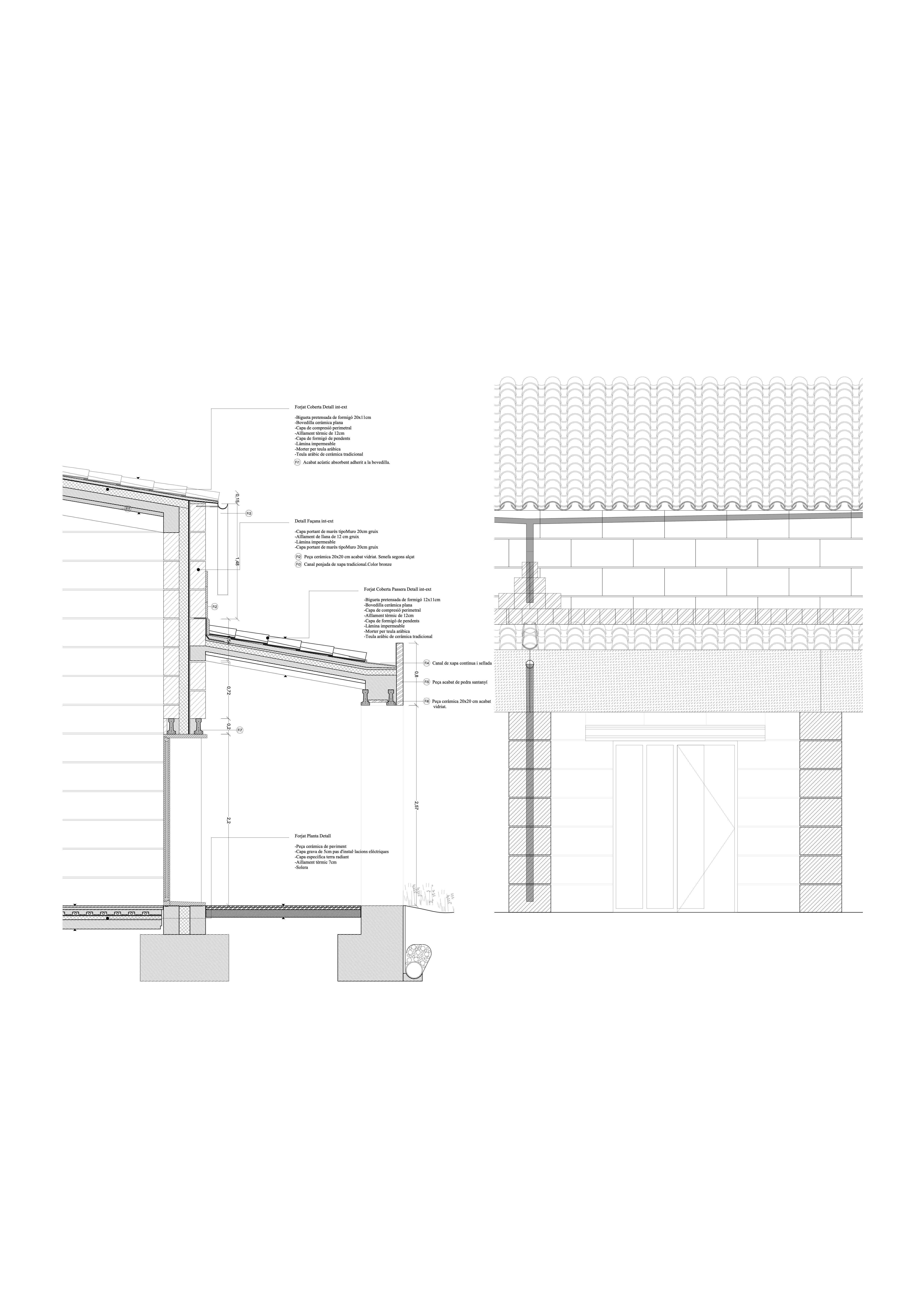
L’interès per treballar a Mallorca comença amb l’oportunitat que brinda el curs de plantejar un lloc i un conflicte. Doncs, implica una reflexió prèvia que s’amplia a la intuïció i als coneixements personals que un pugui tenir, així com, la memòria i els records que una té del lloc on ha crescut. La paraula tradició és de significat difícil i sovint és utilitzada de forma errònia. Els coneixements que formen part de la tradició i que necessiten una repetició continuada, millorant la tècnica i la seva execució, impliquen també un gest que és, potser, el més important. Aquesta voluntat per conèixer la tradició de Mallorca i la història de Santa Margalida forma part d’entendre que un arquitecte no dona dues solucions iguals sinó que el lloc les modifica i acaba conformant la proposta. Per aquest motiu entendre l’arquitectura vernacular del lloc implica un pas més per poder arribar a l’encaix del projecte al lloc. El següent treball neix de l’interès de conèixer el lloc on es treballa, des de la seva formació fins als detalls de la seva construcció. Per aquest motiu l’escala dels temes que s’investiguen esdevé diferent, començant per una introducció al lloc i acabant amb un cas d’estudi.
El solar de la fàbrica es considera en una situació de total abandonament. La topografia és pràcticament nulla, ja que descobrim un desnivell d’1 m al llarg de tota la longitud. Els límits del solar són molt diversos, ja que alguns es troben fent mitgera amb construccions existents, mentrestant altres estan en contacte amb el teixit industrial més actiu actualment al poble i altres amb contacte amb parcel·les d’ús agrícola privat. La principal estratègia del projecte en l’àmbit urbanístic és adjuntar les parcel·les del costat dret de la parcel.la de la fàbrica, ja que no tenen cap construcció i a hores d’ara també es troben abandonades i només agreugen la sensació d’abandonament. Per tant, els dos costats de la parcel.la són homogenis i es consideren en contacte amb mitgeres d’habitatge. Llavors, l’alçat de l’eix té cohesió. Respecte al contacte amb el carrer del darrere i el teixit industrial, l’estratègia és organitzar l’espai que actualment es troba ocupat per escombraries industrials i retornar-lo al teixit residencial, acabant de tancar el pati interior típic de mançana. El carrer, per tant, s’obre i s’acompanya de teixit residencial i genera la segona entrada a l’espai públic de plaça del projecte. Els espais principals a partir dels quals es configura el projecte són els espais buits que es generen. Els dos buits corresponen a caràcters diferents, el primer, un pati interior, tranquil amb vegetació autòctona, el segon un espai públic tangent a l’eix, obrint la parcel·la i evidenciant que és un espai de caràcter col·lectiu. Aquests dos espais es descobreixen tangents a la peça existent i representativa de la fàbrica, que passa a ser el motiu generador de la distribució del programa juntament amb els buits comentats. Llavors el programa més funcional d’aules, espais de concert o sales d’assaig, queden emmarcades entre la peça existent que es converteix amb la peça més pública del projecte i la recepció/ entrada de l’escola que envolten perimetral el pati interior. Al voltant de la plaça hi trobem l’entrada principal a la sala de concerts, l’entrada de l’escola amb la recepció, el bar i les aules polivalents pensades per activitats grupals com toc de xeremies, ball de bot, etc. Aqstes activitats es beneficien de l’espai públic quan fa bon temps generant activitat a la plaça.



























