Tras la fachada de un edificio industrial situado en la calle Tutor de Madrid, que a principios del siglo XX acogía una imprenta, se instalan las nuevas oficinas de Arquia Bank y la fundación Arquia.
La nueva construcción de cuatro plantas, que alberga el nuevo edificio administrativo, se oculta discretamente tras la fachada protegida, escalonándose para dejar los restos de la antigua industria en primer plano, sin afectar a la sección actual de la calle, para favorecer la escala y la luminosidad de este tramo de la calle.
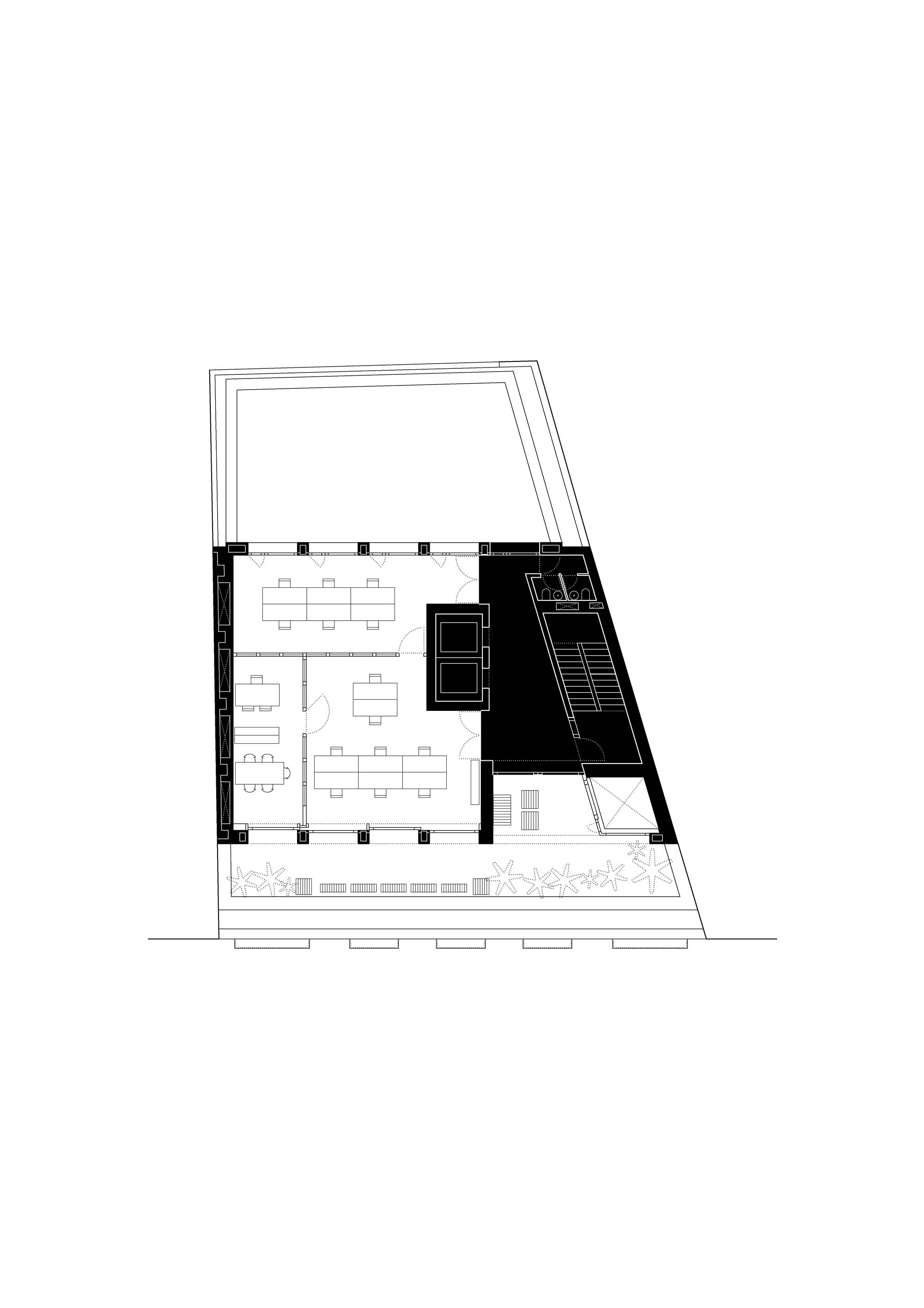
En la primera planta, un vestíbulo de escasa dimensión en planta se eleva hasta la cubierta de la primera terraza, abriéndose en su techo un lucernario que introduce luz sobre el espacio. Varios espacios de la planta primera abren sus ojos sobre el vestíbulo, jugando asimétricamente con los huecos de la fachada existente.
El vestíbulo da paso al núcleo de comunicación vertical y a un único espacio multifuncional que, a su vez, se abre sobre el pequeño jardín que se inserta en el patio de la manzana.
En las plantas altas se ubican los espacios administrativos que se abren a las diferentes terrazas ajardinadas, dando gran luminosidad a todos los espacios.
Paredes y techos se cubren con tablilla de madera lacada en blanco, como si de un barco se tratara.
La fachada protegida, de ladrillo prensado, marca la construcción de las fachadas escalonadas, así como la de la fachada posterior al patio de manzana. Todos los paramentos exteriores se perforan con grandes huecos, de escala casi industrial, estableciendo vínculos con la construcción que algún día existió en ese mismo lugar.
Y es que, esta construcción quiere ser un sencillo homenaje a aquellas pequeñas industrias que se desarrollaron en la zona a principios del siglo pasado, y quiere también hacer presente el respeto que los ciudadanos de Madrid tienen por su humilde pasado industrial.






































