The indoor play centre. Misery to parents. When it’s wet outside and the kids have gone hyper, when the thech barn is so severe that it includes your phone, when all that’s left in the snack cupboard are soggy rice cakes, then, and only then does a trip to the indoor play centre seems like a good idea.
Adam Khan suggested designing an indoor play centre at Pensthorpe Natural Park in Norfolk and he vowed to create a space that children -and adults- would love. Penshorpe is a 700 acre wetlands and nature reserve, featuring a garden by Dutch designer Pier Oudolf, wildlife trails, which meander through woodlands and lakes, a walled water garden and a cafè. Owner Bill Jordan, co-founder of the Jordans cereal brand, and his design-conscious wife Deb, called on Khan to extend the park’s offering to young families and give tho whole size an update.
Khan devised a masterplan that included renovating the car parks, recepcion area, visitor’s centre and café, as well as jumble 17th century, Grade II listed cottages that are currently being turned into offices, meeting rooms and well-being facilities.
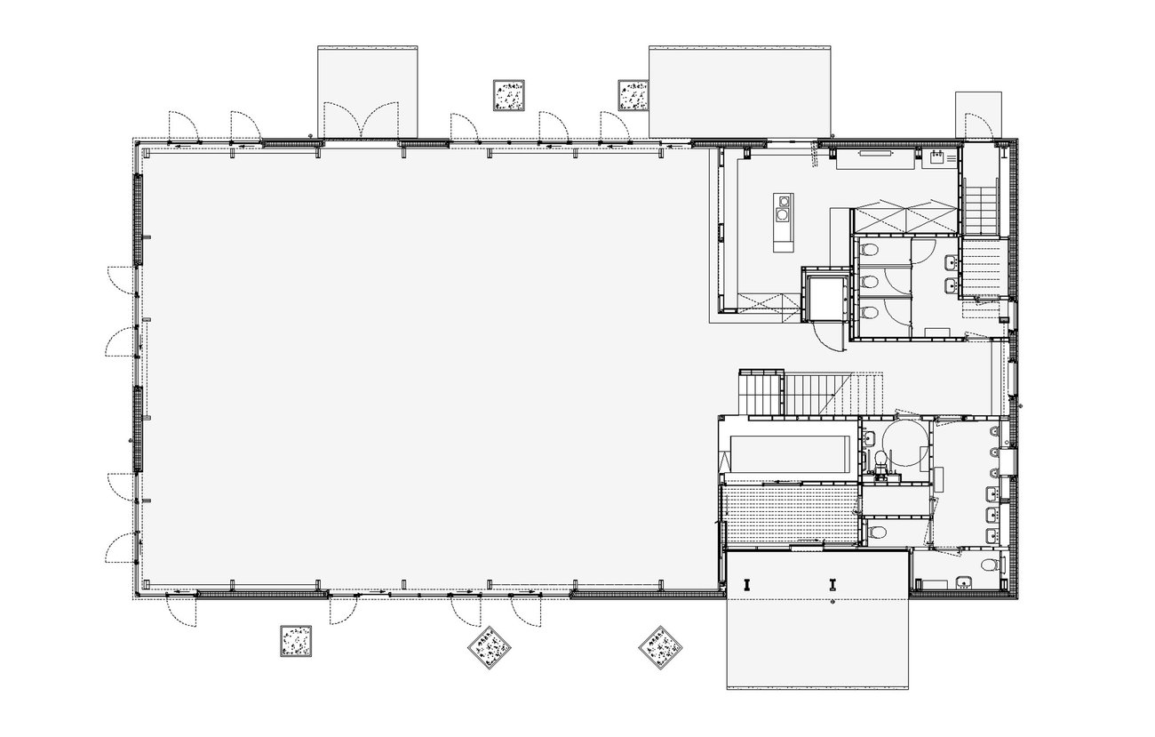
Khan is known for his richly textured facades, and the space’s wooden exterior features a grid of 5omm holes in which insects and birds are invited to take up residence. ‘The overall effect is of an owl’s plumage or a spotty duck; he says. ‘We’re saying to Pensthorpe’s very experienced wardens, “Here’s your empty hotel, do with it what you like:” It’s still new and no critters have colonised it yet, but there are plans to create bug hotels and seduce a variety of nesting birds. Inside, the top priorities were good acoustics (there’s no hell quite like a mass of screaming kids, and the barn can hold up to 575 of them), natural light and temperature control.
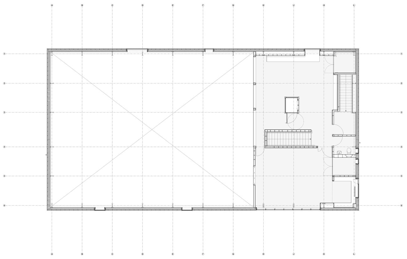
Patches of sunlight filter through the many small windows in the roof; large east-facing windows prevent the space from overheating; and high windows provide views on to the tree line so that visitors are aware of the seasons. At ground level, stainless steel ‘mirrors’ reflect light and amplify the sense of space, and outside, guttering sticks out from the walls, creating an impromptu shower when it rains. The zigzag finish on the wood was a late addition, a sort of ‘hem, inspired by pinking shears. Khan had a budget of Lim so it was ‘a low-cost and effective way of adding detail’. The structure exists as a series of layers. There’s the outer wooden panelling, encasing a steel frame (where Y-shaped beams echo trees), and a wooden mezzanine, which was inserted last. It was inspired by the typical manager’s office found in a factory or a fully operational agricultural barn. An absence of concrete or plaster meant the structure could be put up fast, and wooden panels were clipped on to the frame on site. `We wanted to get a sense of layering to show the separation and looseness and freedom of the building,’ says Khan. ‘This creates nice moments, similar to those in an old building, where you can see that elements have been added and changed over time. We like making it evident how it was built: Now that he has successfully reinvented the indoor play centre, he’s looking afresh at old bricks, reworking Tudor patterns to look like ‘crazy Christmas jumpers’. The stunning optical designs appear on social housing he’s created in Hackney and Hamburg, and on a private house in Hampstead due for completion next year. Khan’s prestigious, and growing, portfolio reveals he can turn his hand to most things – except, perhaps, leisure centre chairs.





















































