KAAN Architecten completes two elegant mid-rise towers for De Zalmhaven residential complex in Rotterdam
De Zalmhaven is a high-quality residential complex developed by AM & Amvest on a site adjacent to the former eponymous port in the centre of Rotterdam. It comprises one high-rise (by Dam & Partners Architecten) and two mid-rise towers sprouting from a sturdy plinth (by KAAN Architecten).
Located in Rotterdam’s historic Scheepvaartkwartier, De Zalmhaven owes its name to the shipyard and salmon fishery built there at the end of the 17th century. As the harbour progressively gave way to the non-port related industry, it was ultimately filled to construct the Erasmus bridge, and many buildings were replaced with office facilities. At the start of this project in the early 2000s, the municipal plans proposed major densification of the site with a new housing programme to create a better mix of living, working and leisure in the area. De Zalmhaven incorporates the ambitions of that urban vision by introducing 452 apartments and 33 townhouses spread across the structures, along with new commercial spaces, a restaurant, and a viewing point located in the Netherlands’ tallest residential tower.
Located amidst an eclectic mix of nineteenth-century structures and contemporary high-rises, De Zalmhaven aims to strike a compositional balance between these two scales through careful positioning and massing. While the tallest tower interacts with the buildings strung along the Rotterdam’s throughways and river banks, the mid-rise ensemble and the plinth by KAAN Architecten refer to the neighbourhood’s public domain as experienced by pedestrians, cyclists and residents. The complex softly transitions the heights of the urban structures while still allowing views toward De Nieuwe Maas river.
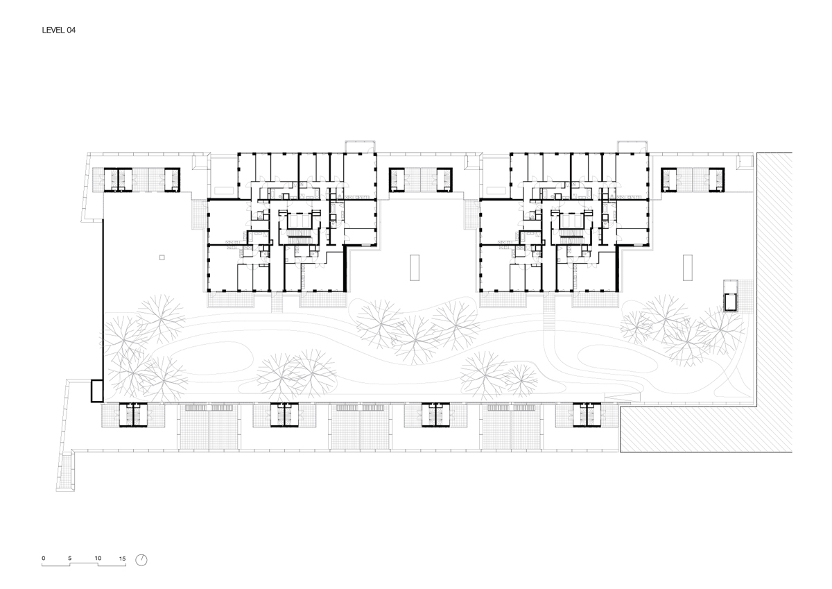
The four-story base spans the length of the site between Gedempte Zalmhaven and Houtlaan. Its outer edges are lined with thirty-three townhouses of varying sizes, each of them with an entrance at the ground level to preserve the liveliness of the street. Thanks to a considerably high ground floor, the houses have a deep connection to the outdoors and an enhanced sense of openness. Their variable size makes them suitable to accommodate smaller offices and workspaces, expanding the potential for a mixed-use neighbourhood.
Meanwhile, a parking garage for the entire complex is located at the core of the plinth, with its doors deftly hidden on the exterior façade towards Houtlaan. The garage is topped off on the fourth floor by a garden accessible to all residents. Besides creating a communal gathering space, the garden offers a welcome natural respite from the dense urban area in the city centre. Along with the newly designed park at the northern side of the plinth, the two green spaces plug into the continuous ecosystem of the surrounding landscape by using the typical riverside vegetation prominent elsewhere in the neighbourhood.
The two 70-meter-high towers rising from the plinth are positioned considering optimal sunlight exposure, wind conditions, traffic flow, and overall visual experience of the project as seen from the public space. The towers can be accessed via spacious and elegant entrances clad in bright natural stone. These clear transitions from public to private also help divide the total block into recognizable buildings.
A shift along the centreline of the floor plan gives the towers a slender angularity and enables various apartment layouts with impressive views. The apartments are grouped around central circulation shafts, averaging six apartments per floor and topping out with penthouses and maisonettes, which end the façade rhythm with their visible double height. Setting maisonettes along the edges of the towers made it possible to hide the technical installations directly above elevator cores and avoid them protruding above the eaves.
A uniform light colour palette and a recognizable façade pattern ensure the overall unity of the plinth and the mid-rise towers. The grid-like facade draws from the ornately trimmed openings of Scheepvaartkwartier’s neo-classical buildings but gives them a contemporary reinterpretation with creamy white aluminium cladding, bronze windows and refined details. All openings are triple glazed, reducing energy needs and creating high-quality interiors with ample daylight and grand views for all apartments.
With this smooth and elegant residential complex, KAAN Architecten has given a balanced and high-quality interpretation to the transition between the high-rise city axis and the historic Scheepvaartkwartier, in the very core of the city of Rotterdam.













































