Al carrer Urgell de Barcelona, en un solar buit des de fa anys, s’ha construït un edifici d’equipaments que agrupa diversos usos ciutadans: una escola bressol, una biblioteca ludoteca, un centre cívic i una sala d’actes (Urgell, 145-147). Malgrat l’aparença discreta, l’edifici no passa per alt, entre altres coses, per unes dimensions inusuals: a l’Eixample no és habitual trobar edificis amb façanes tan amples. De la façana, en resulta interessant i original el recurs del mur cortina, tan repetitiu i regular, que se sobreposa a les dimensions i formes tan acusades de les portes d’accés.
Observant-ho amb més atenció, es descobreix que el gruix del mur cortina permet incloure la caixa transparent dels ascensors, una posició estratègica que evidencia que és un edifici on els usos s’acumulen en alçada. També, paradoxalment, resulta original l’ús del formigó, que, combinat amb l’ús del mur cortina, atorga a l’edifici una aparença gairebé industrial. Veient els forats emmotllats al formigó a sobre de la porta, és inevitable recordar immediatament algunes obres de l’arquitecta brasilera Lina Bo Bardi a Sao Paulo. Precisament aquests forats, sense una forma definible, permeten fer evident una de les peculiaritats més fantàstiques del formigó i que sovint oblidem: és un líquid pastós que es torna sòlid a dins d’un motlle.
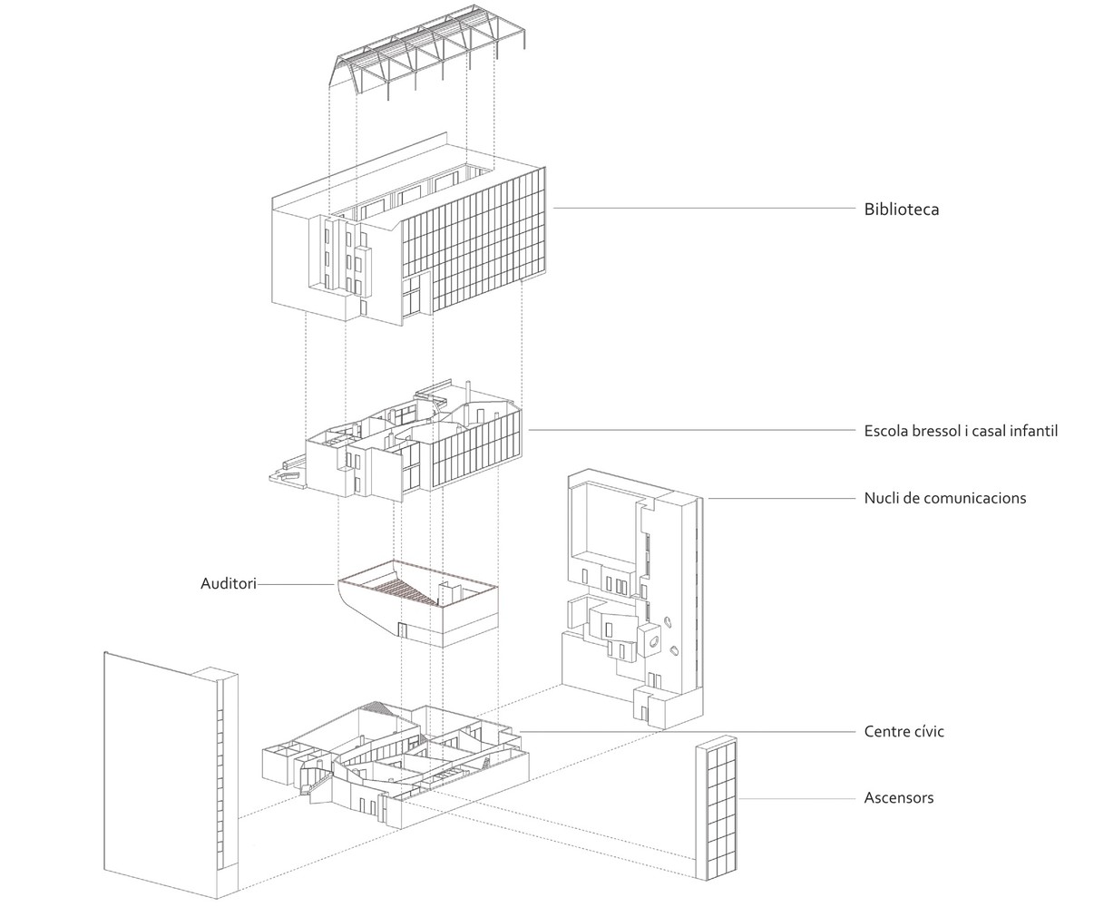
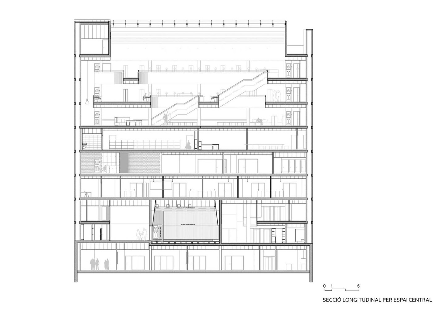
El més estimulant, però, és l’interior. Quan observem el dibuix de la secció, ens adonem que el que normalment anomenem la distribució d’un edifici, referint-nos a la disposició i encaix de les parts en la planta, en aquest cas, es fa en alçada. És estimulant perquè el nostre vell Eixample barceloní demana dels arquitectes una feina d’encaix del programa en alçada, ja que les mitgeres i les alineacions de façanes al carrer i a l’interior de l’illa exigeixen jugar de portes endins.
És estimulant perquè aquesta feina delicada, per exemple, s’ha perdut gairebé del tot al 22@ on, malgrat les virtuts que normalment se’n diu, no ha permès conrear la virtut en la distribució de les activitats en l’espai. Aquesta virtut, tan americana d’altra banda, només es pot fer visible a l’interior. Alguns dels grans edificis a Nova York o a Chicago amaguen, sota una aparença ordenada i regular, un encaix sorprenent de sales, auditoris, salons de ball i peces de dimensions ben variades, alguns cops colossals, i són exemples magnífics de la distribució en l’espai que preconitzava l’arquitecte vienès Adolf Loos.
Aquí cada planta és diferent i es van agrupant de dues en dues, les unes sobre les altres. Les escales i els ascensors fan evident l’acumulació ja que aquests no recorren l’edifici, sinó que ens duen a cada ús i acaben allà on ja no fan servei. No és un edifici de plantes: en realitat, són diversos edificis, els uns sobre els altres. Aquest tret es pot veure amb claredat en el dibuix de la secció de l’edifici, on es pot apreciar que, cada dues plantes, alguna cosa canvia. La biblioteca, per exemple, està formada per quatre plantes que s’agrupen en dues parelles; cadascuna amb una singularitat remarcable. L’escola bressol i la ludoteca, que comparteixen una gran lògia, esquitxada amb els colors dels rajols i oberta cap a l’interior d’illa, tenen la peculiaritat de tenir uns corredors centrals que, sinuosament, separen les diverses aules i que, en el cas de la ludoteca, mostren un perímetre de pentàgons irregulars que recorden algunes estances de La Pedrera.
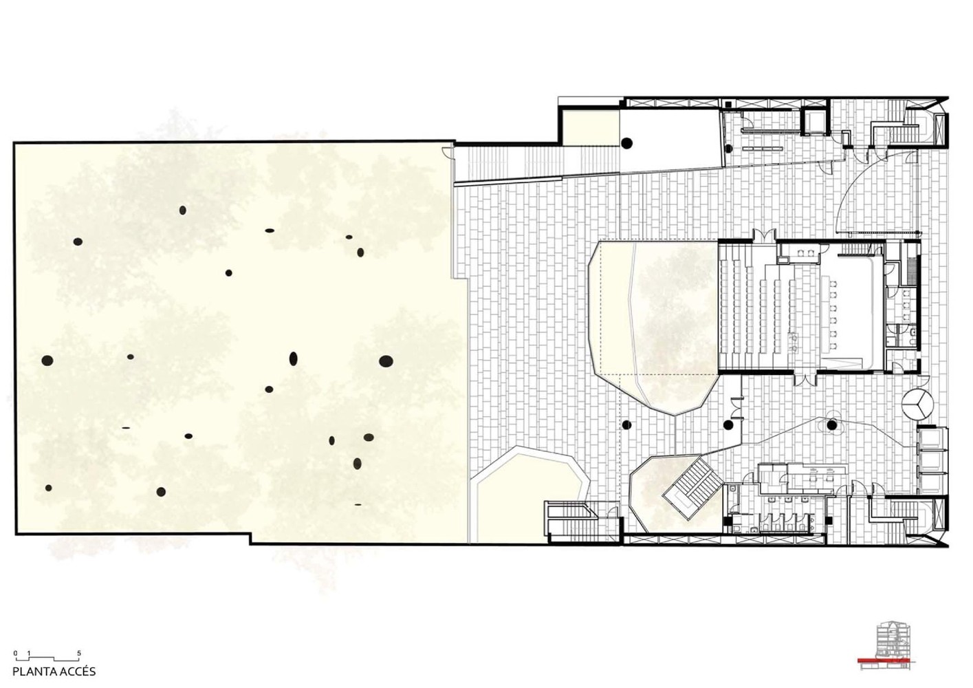
La planta baixa, amb l’altell, conté els accessos i una sala d’actes peraltada que treu la cua al pati interior d’illa. Al soterrani hi ha l’espai del centre cívic, col.locat al voltant d’un pati anglès parcialment cobert per la cua de la sala d’actes.
Però, quan ja pensem que s’han acabat les sorpreses, accedim a l’interior de la biblioteca i ens trobem en un conjunt de plantes relacionades per escales i per balcons oberts, els uns sobre els altres, que, amb formes de cantonades corbades, conviden a tocar-los mentre els fem la volta. Aquests balcons deixen passar la llum al centre de la planta i ens permeten veure la lluerna que corona l’edifici en tota l’amplada.
A sota de la lluerna, es fa evident que la feina d’encaix de cadascun dels usos en el volum de l’edifici s’ha traslladat també a l’interior de les estances. En sortir, no podem evitar pensar en l’arquitectura que, ben exercida, reserva per a l’interior el millor d’aquest ofici.





















