Una escuela granja
La propuesta lee el entorno y lo reinterpreta. La nueva escuela nace a partir de los modelos de granjas tradicionales de esta zona. Estas granjas se caracterizan por un claro orden estructural que protagoniza el interior, una construcción sincera y una volumetría neutra.
La estructura es espacio
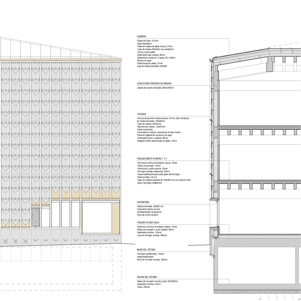
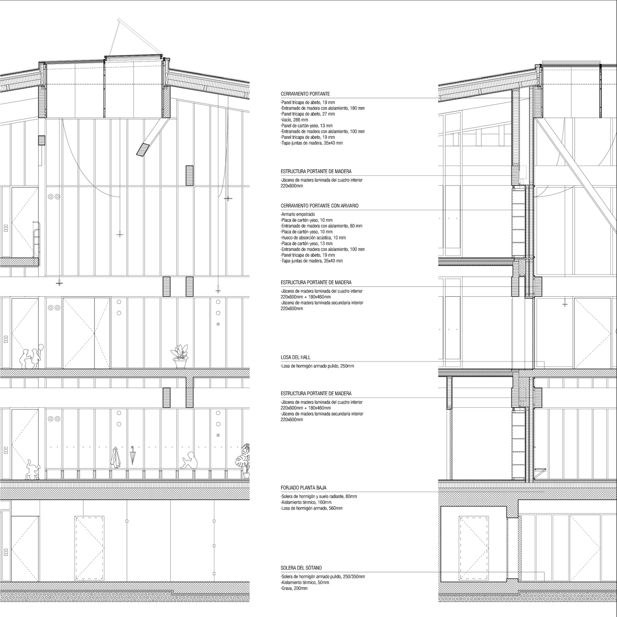
En estos modelos tradicionales y en la nueva escuela de Orsonnens la estructura es protagonista, la estructura es quien conforma el espacio interior del edificio. La claridad del orden estructural nos ayuda a resolver el programa y a caracterizar el interior.
La construcción es forma
La sinceridad constructiva de los modelos tradicionales también está presente en el nuevo edificio escolar. Cada uno de los elementos constructivos se manifiesta formalmente y con independecia del resto.
Compacidad y neutralidad exterior
El edificio se compacta sobre la parte de superficie ocupada actualmente por el párquing, respetando la linea de árboles actualmente existentes dentro de la parcela y sin invadir el área aún natural que queda más allá de estos árboles.
Riqueza interior
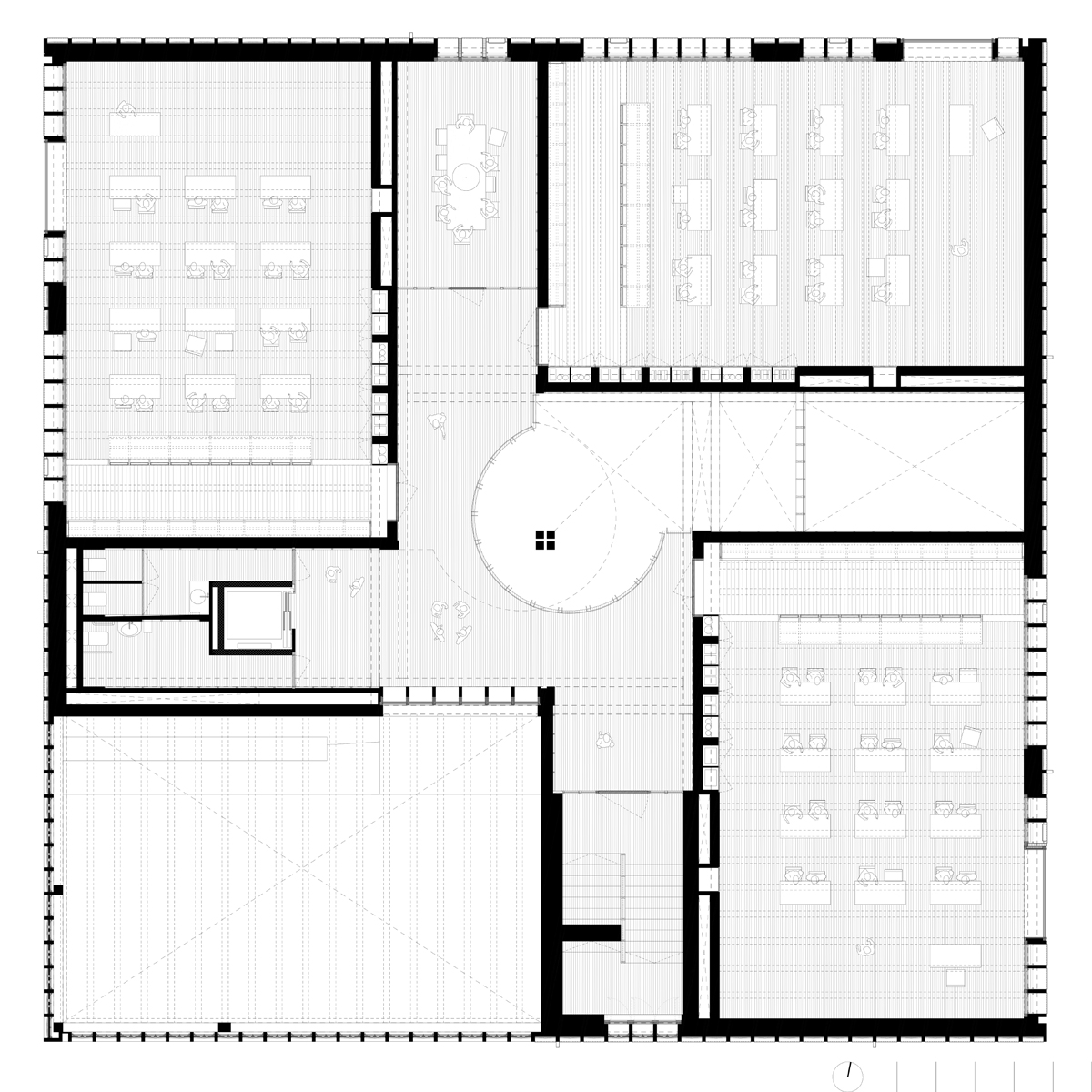
Contra la neutralidad exterior del volumen, interiormente el edificio es complejo. El espacio interior es vertical y multiplica las relaciones visuales. Un pilar central se levanta escultóricamente hasta la cubierta donde esta se recorta dejando entrar la luz.
La escuela alrededor de un vacío
El programa de la escuela se ordena alrededor de un espacio vacío. Las aulas giran alrededor de este vacío central. Este espacio será el punto de encuentro entre estudiantes, el punto de relación social y el eje de circulación. Este será un espacio lleno de vida y donde se dejará ver todo aquello que rodea la actividad escolar.















































































