El edificio ICTA-ICP, situado en el campus de la UAB (Universidad Autónoma de Barcelona), es un centro de investigación en ciencias ambientales y paleontología. Coherentemente con sus campos de investigación, los usuarios del edificio apostaron desde un inicio por un edificio preparado para dar una respuesta ambiciosa a los retos de sostenibilidad.
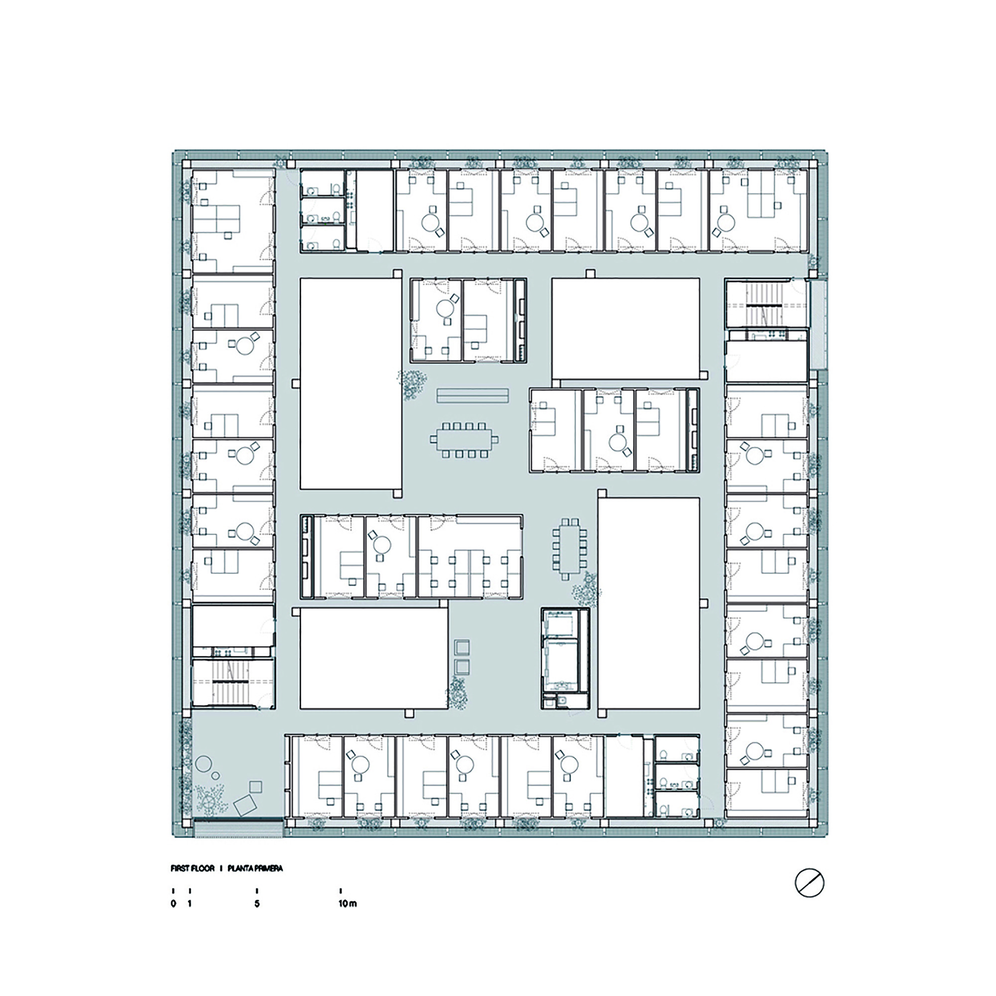
El edificio, un volumen aislado de 5 plantas de 40x40m2 cada una y dos subterráneos, alberga los siguientes usos: en planta baja, vestíbulo, bar, aulas, salas de reunión y administración; en las 3 plantas siguientes, despachos y laboratorios; en cubierta, huertos (invernaderos) y zonas de descanso; en el semisótano, aparcamiento y salas de máquinas y en el sótano los almacenes y el resto de laboratorios. Tanto los despachos como los laboratorios son usos con mucha carga interna y por lo tanto tienden a ser calurosos. El edificio ICTAICP se ha diseñado para sacar provecho de esta carga interna en invierno y disiparla en verano. Planteamos el edificio como una infraestructura adaptable, flexible a posibles cambios de uso, desarrollando varias estrategias simultáneas que se complementan.
. Estructura
Se ha escogido una estructura de hormigón, de larga vida útil y bajo coste, con mucha inercia térmica, que colabora directamente en el confort pasivo del edificio. Se ha optimizado la cantidad de hormigón distribuyendo su masa a favor del intercambio térmico mediante losas de hormigón postesadas y aligeradas con tubos en la parte central por donde circula el aire. En la parte superior e inferior se activa la masa térmica del forjado con sistemas radiantes a partir de energía geotérmica.
. Piel
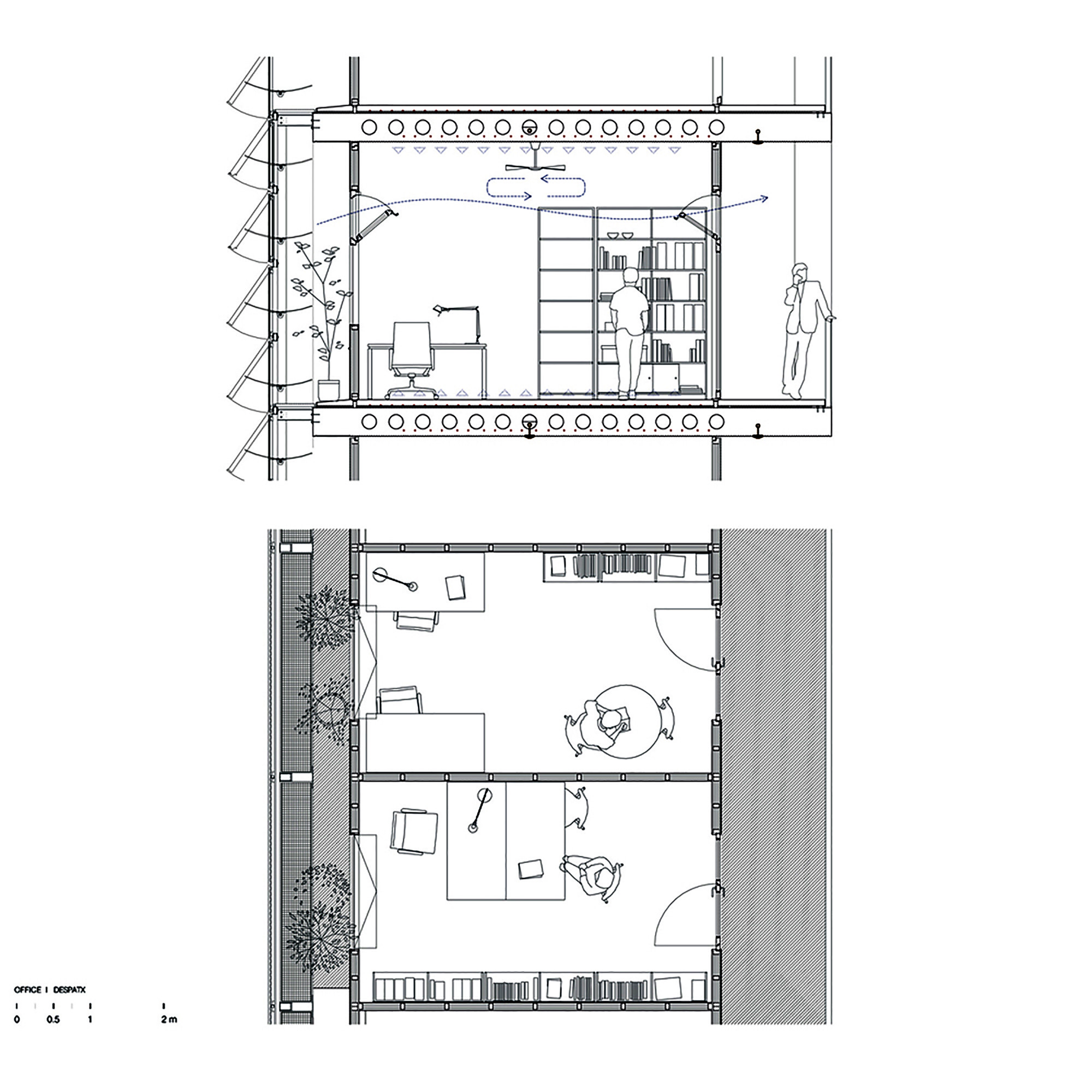
La estructura de hormigón está envuelta y protegida por una piel exterior bioclimática de bajo coste construida a partir de sistemas industrializados de invernadero agrícola que, abriéndose y cerrándose automáticamente, regulan la captación solar y la ventilación, consiguiendo mejorar la temperatura interior de manera totalmente natural y garantizando un confort base en los espacios intermedios y de circulación.
. Patios
En el medio del edificio, cuatro patios verticales, con escaleras que conectan puntualmente los diferentes niveles, garantizan luz y ventilación a todos los espacios de trabajo, reduciendo el consumo de luz artificial y, por lo tanto, bajando las cargas internas. Estos patios, así como todo el espacio intermedio del edificio y la galería perimetral, albergan diversas especies vegetales mejorando el confort gracias al ajuste del gradiente de humedad.
. Sótanos
El edificio también aprovecha el contacto con el terreno de sus dos plantas soterradas para pre-climatizar las renovaciones de aire mediante la cámara de aire que generan las vigas PI de contención así como la cámara de aire del forjado sanitario
. Cajas de madera
En el interior de este clima mejorado se disponen unas cajas de madera bien aisladas, con aberturas de vidrio practicables, que acaban de dar las condiciones de confort a los espacios de trabajo. La disposición de estas cajas cambia en cada planta ajustándose a las necesidades de los usuarios, creando unos espacios intersticiales generosos e indeterminados, que se encadenan con las circulaciones y conforman espacios de encuentro y descanso más informales.
. Clima y gestión
El edificio se ha diseñado para acoger tres tipos de climas, asociados a diferentes intensidades de uso: Clima A: los espacios intermedios, que se climatizan exclusivamente a partir de sistemas pasivos y bioclimáticos; Clima B:los despachos, que combinan ventilaciones naturales con sistemas radiantes semipasivos; y Clima C: los laboratorios y las aulas que tienen un funcionamiento más hermético y convencional. Cada tipo de clima tiene sus sistemas asociados. El comportamiento del edificio se monitoriza y controla mediante un sistema informático automatizado que procesa y gestiona un importante conjunto de datos para optimizar el confort y el consumo de energía. El sistema se ha programado para favorecer al máximo el comportamiento pasivo y minimizar el uso de energías no renovables. El edificio reacciona y se adapta constantemente, abriéndose y cerrándose, activándose y desactivándose, consiguiendo agotar las posibilidades naturales que nos ofrece el medio. De esta manera la percepción del confort es mucho más auténtica, menos artificial de lo habitual.
. Materiales
En la elección de materiales se ha optado por un material mineral de mucha inercia térmica y de larga vida útil para la estructura y por materiales de bajo impacto ambiental para los cerramientos secundarios, priorizando el uso de materiales de origen orgánico o reciclado y sistemas constructivos en seco que sean reversibles y, por lo tanto, reutilizables.
. Agua
El edificio trabaja en profundidad todo el ciclo del agua optimizando la demanda y el consumo a partir de la reutilización de las aguas pluviales, grises, amarillas y negras.


































