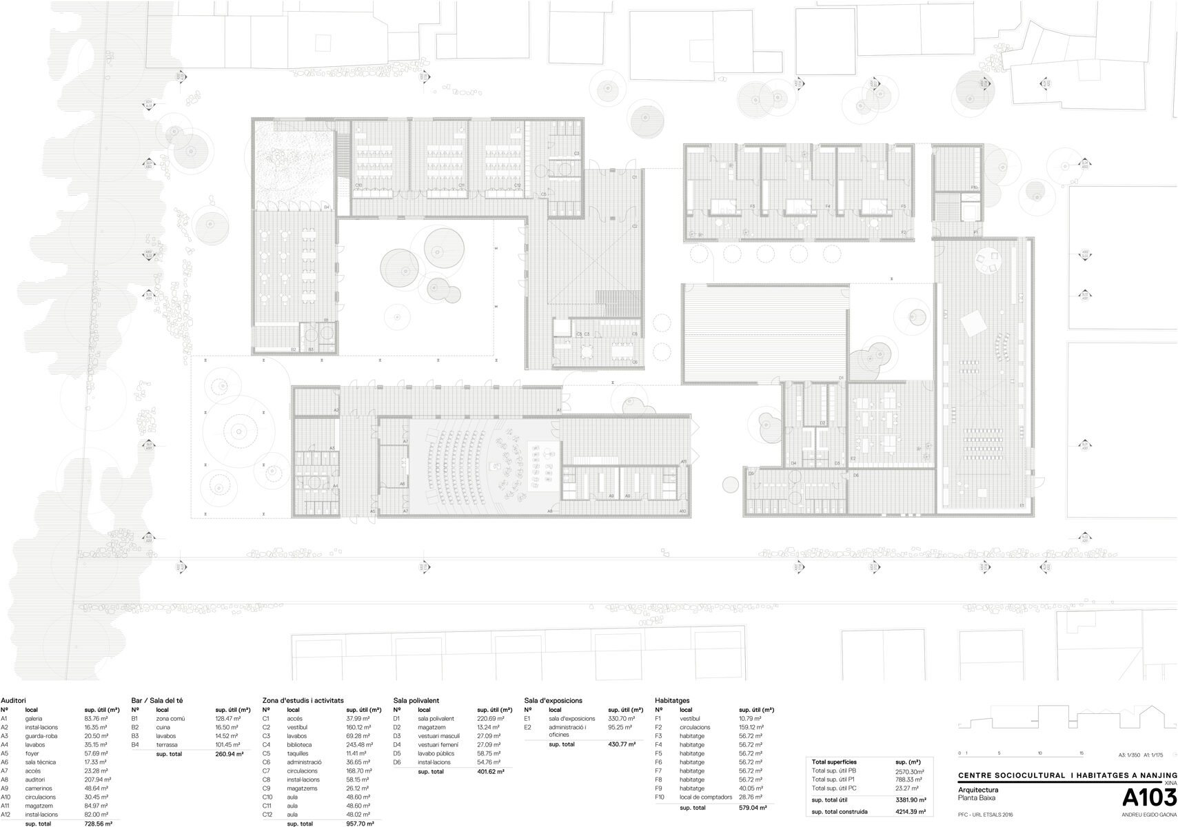
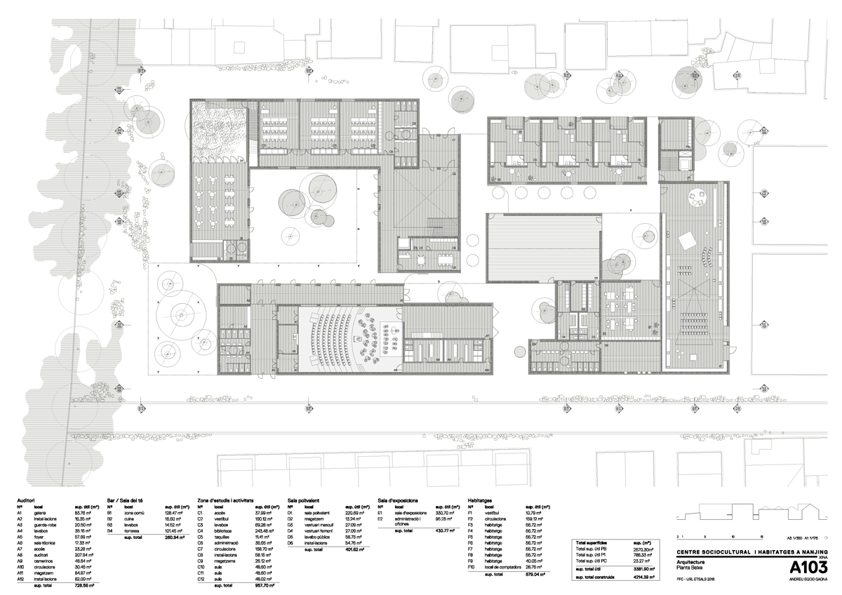
L’arquitectura tradicional xinesa es va desenvolupar des de la societat primitiva a la Dinastia Qing, última de l’Imperi Xinés (221 a.C. a 1912 d.C.). En aquesta arquitectura es va passar de la tècnica d’edificis amb estructura de fusta y terra cuita cap a rajoles i habitatges amb pedres i maons. Perfeccionada en les dinasties Wei i Jin aquest art va estar molt influenciat per les creences xineses de les diverses èpoques que va abastar. Posteriorment, les normes constructives estaven regulades pels estàndards unificats de l’arquitectura, que figuren en el tractat tècnic anomenat Yingzhao Fashi, que Li Jie va escriure al segle XI.
Bàsicament les edificacions es conformaven per conjunts arquitectònics distribuïts al voltant de patis simètrics, l’espai es distribuïa en unitats rectangulars que s’unien per tal de formar un tot. Predominaven les formes rectangulars de diferents grandàries que es posicionaven segons amb la importància que tenien per al conjunt. El siheyuan és un estil arquitectònic de Beijing. Com el seu nom indica, un siheyuan consisteix en un conjunt quadrat amb habitacions que tanquen un pati central. Aquest pati conté algun arbre, plantes en testos i fins i tot un aquari. Aquesta estructura ha servit de base per a edificis governamentals, temples i oficines en la quadrícula del teixit urbà durant milers d’anys.
La base d’una casa-pati té un ordre molt simple i rígid. Normalment els quatre edificis que envolten el pati estan situats sobre l’eix NORD-SUD, i EST-OEST. L’edifici situat al nord i encarat a sud és el principal. Les diferents zones estan connectades a través de passos coberts, que serveixen de transició interior-exterior. Els Hutongs són els carrers i carrerons que connecten tot l’interior de la part vella de la ciutat. Molts d’ells són tan estrets que no permeten la circulació de vehicles.





















































4 Comments
bravo andreu!
Quina bona pinta! Moltes felicitats Andreu!
Boníssims documents i projecte. Enhorabona!
Es sencillo y sutil. En mi opinión perfecto, tanto la manera de explicar y desarrollar el proyecto, como éste en sí.