The center of Brussels has a periphery inside. A piece of landscape, green, open, idyllic, as if it were on the fringes of the city (where it touches the forest) is to be found in the midst of it. This particular condition is easy to destroy. In order to double the surface of a seemingly freestanding house in this strangely lush environment, it was decided to elegantly underline the existence of everything there already was, to celebrate the status quo and to simultaneously make the addition disappear by making it extremely visible, making it, in a sense, the protagonist.
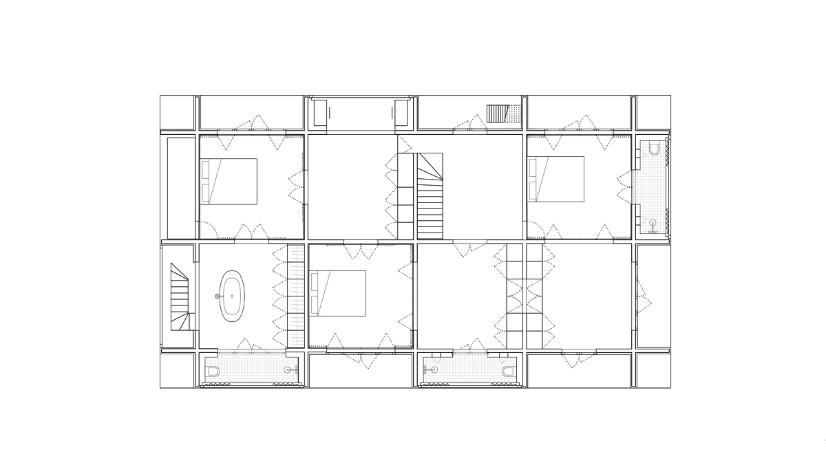
The new addition is projected under the existing house, not adding any new volume, but effectively creating its pedestal. The pedestal turns the existing house into an exhibited object: maintained, cleaned and restored—undone of its original importance. The existing house becomes a night house, a ghost house on top of a new, excavated villa. The villa is simultaneously new and old. It is a house designed as a set of different spaces traced by columns. The column rhythm defines plan and sequence: a set of spaces which are not functionally defined.
The villa presents itself as a remnant of a house; a set of tectonic elements crating different spatial hierarchies. Sometimes the spaces are open to the sky; sometimes they get their light indirectly. The structure is made of massive concrete beams and columns, measured with maximal tectonic effect. The structure is translated into a spatial idea. Concrete columns become stained wooden columns as soon as one crosses from inside to outside, effectively creating a spatial construct, a spatial sequence of hypothetical places to stay. The villa thus exists in the green island that is maintained by its very existence, a conscious contribution to an urban tissue on the verge of extinction.



















