Durante una reciente visita a Milan, he tenido la posibilidad de visitar unos edificios de un arquitecto quizá poco conocido fuera de los confines nacionales italianos, pero de una gran relevancia dentro del panorama arquitectónico de la mitad del siglo pasado. Se trata de Luigi Caccia Dominioni, un arquitecto que, por su trayectoria desvinculada de una escuela y libre de cánones teóricos, sólo en años recientes ha sido estudiado y redescubierto al lado de otros de sus colegas más conocidos.
Encuentro increíble la actualidad que siguen teniendo muchos de sus edificios, una referencia que parece no temer el paso del tiempo y que os voy a proponer también en recordando a otra, mucho más reciente, que se ha publicado hace unos días en este blog y relativa a la interesante intervención de Cino Zucchi en el “Nuovo Portello”.De especial manera quería enseñar dos de sus edificios residenciales, ambos ubicados en Milan. El primero es el edificio en Via Ippolito Nievo 28, construido en 1955-57, el segundo se ubica en Via Carbonari del año 1961. Son dos obras que introducen varios temas interesantes, que no solo pertenece a la producción arquitectónica de Caccia Dominioni, si no que se han convertido casi en “iconos”, influenciando muchos proyectos en la misma ciudad.
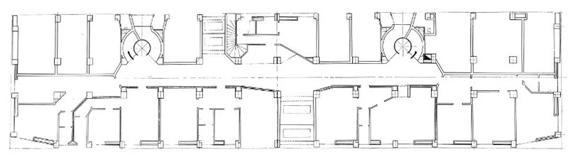
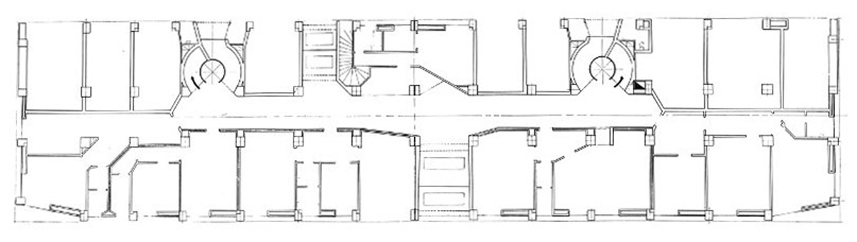
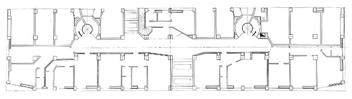
De estos temas, me interesa destacar algunos que ambas obras comparten, como si fueran una el desarrollo de la otra: por primero el complejo y paciente trabajo en planta, donde nunca faltan espacios de conexiones, galerías, entradas, que sirven de “añadidos espaciales” a las salas principales y que diversifican flujos y usos internos de la casa. La original composición de fachada, derivada de la continua variación distributiva interior, parece casi anticipar el “gusto” contemporáneo, consiguiendo un efecto gráfico a través de elementos “útiles” como persianas enrollables, vidrios de diferentes colores y transparencias, carpinterías de aluminio colocadas a hilo exterior y paneles correderos. Los volúmenes sencillos de los edificios, que sólo puntualmente se quiebran para convertir imposiciones normativas en elegantes resultados estéticos y, por último, el acabado exterior en litocerámica, un tratamiento muy característico que ennoblece con sus reflejos estos paralelepípedos.
Os dejo algunas imágenes y unos links web, aunque no se encuentra mucho material directamente disponible on line. Espero sea suficiente para transmitir mi especial fascinación por este arquitecto, y os invito a comparar estos ejemplos con otras intervenciones más recientes del arquitecto Cino Zucchi, que lo ha declaradamente tomado como referente directo de su trabajo. Nuestras ciudades se alimentan de estos “diálogos” y pienso que sea muy importante que dentro de un mismo entorno se establezcan estas analogías. Pero, al mismo tiempo, este hilo directo nos permite reflexionar sobre aspectos menos evidentes a una primera mirada, distributivos por ejemplos, que evidencian las diferentes “prioridades” con que los dos arquitectos han tratado el tema residencial.
Termino con estas palabras (en italiano!) que el mismo Caccia Dominioni pronunció hablando de su propio trabajo «Io sono un “piantista”: nel senso che sulla pianta ci sono, ci muoio, sia che si tratti di un palazzo per uffici che di un appartamento di sessanta metri quadri… Sono architetto sino in fondo e trovo l’urbanistica ovunque… In realtà l’appartamento è una microcittà, con i suoi percorsi, i suoi vincoli, gli spazi sociali e quelli privati. Mi sono sempre appassionato agli spazi piccoli e ho sempre dato l’anima per farli sembrare più grandi, ad esempio allungando i percorsi, contrariamente a una certa tendenza che tende a ridurli. L’ingresso diretto in soggiorno non lo amo perché non riserva sorprese, mentre il compito dell’architetto, io credo è anche quello di suscitare un succedersi di emozioni… I miei ingressi, le mie scale, persino i mobili sono soluzioni urbanistiche».



























6 Comments
amazing buildings – wonderful italian design!
Realmente interesante en grado máximo.
Felicidades por esta entrada.
Un hallazgo. Muy elegantes. He leido que Luiggi Caccia murió ayer dia 13 a los 103 años! Trabajó con Gardella diseñando objetos y con Magistretti. Gracias por compartirlo. El texto impagable
Lo desconocía completamente. Las plantas del edificio en la Via Ippolito Nievo son una filigrana maravillosa.
felicidades por el artículo!
encuentro súper interesante el tratamiento de fachadas… me cuesta creer que sean de los años sesenta
Davide, gracias por mostrarnos a este personaje del que confieso que nunca había oído hablar.
Me parece sorprendente que estos dos edificios sean de los años 57 y 61.El ritmo irregular y la composición de las fachadas es absolutamente contemporáneo y de una insólita belleza. La relación entre estos dos edificios y los proyectos de Cino Zucchi es muy clara y ello me hace recordar que cualquier arquitectura proviene siempre de otra anterior. El valor de la tradición es fundamental en arquitectura, tanto como el respeto al lugar o al programa.
Te animo a que sigas colgando proyectos como este. Creo que este blog a veces deriva peligrosamente hacia la contemporaneidad más espectacular y vale la pena crear un contrapeso con entradas sobre arquitecturas no tan recientes y muchas veces desconocidas.