Desconectar en medio del caos de la ciudad. Habitar dentro de un espacio que respira exterior. Esta es la complicidad entre contrastes que ha conseguido Susanna Cots en el interiorismo de esta vivienda.
La unión entre el interior y el exterior ha sido el motor de inspiración de la diseñadora catalana para la vivienda “Maison de vacances” (Barcelona, 2015). Un titular que define muy bien el proyecto de este dúplex familiar, cuyos propietarios querían para escapar del estrés cotidiano de la ciudad.
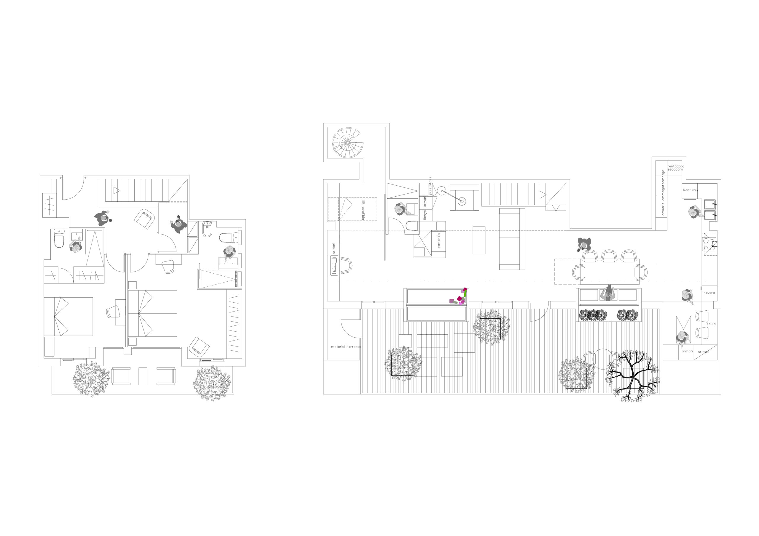
Susanna Cots ha proyectado un gran espacio que abraza la terraza de la vivienda en una única área de la casa, la planta superior. En ella, dos cubos de DM lacado consiguen crear dos ambientes de comunicación familiar: la cocina y la sala de estar, en el interior de la casa y dos áreas de relax en el exterior. En la cocina la interiorista ha diseñado un juego de simetrías interior-exterior consiguiendo que la mesa del comedor pertenezca a ambas áreas. Por otro lado, en la sala de estar se ha instalado una chimenea central que propicia el confort y la lectura desde los dos puntos de vista. En la parte inferior de la vivienda se han proyectado dos suites con baño incorporado en cada una de ellas.
La iluminación como elemento esencial e invisible
La iluminación estudiada y cuidada al mínimo detalle se ha diseñado para que favorezca la comunicación fluida en el hogar y consiga transmitir las emociones y sensaciones de estar en una casa de vacaciones.
Hacer que uno de los elementos esenciales en un proyecto, la luz, se haga invisible, se ha conseguido gracias a la maximización de la luz natural y a la utilización de luminarias que crean atmósferas únicas sin anular sus prestaciones lumínicas. La gama Tolomeo de Artemide ha logrado satisfacer la complicidad entre el estilismo sencillo y la personalidad de los huéspedes, que quería transmitir la diseñadora en el proyecto.
Se unen al design concept el uso de materiales nobles y el blanco, como sello indiscutible del estudio liderado por Susanna Cots.
































1 Comment
muchísima luz natural, un espacio suficiente de almacenaje y de libertad en movimiento, excelentes contrastes…una vivienda perfecta