Precious but unpretentious., the project delivered in January 2014 by David Devaux and Fassio-Viaud for the municipality of Île-Saint-Denis is the new home for two cultural facilities: the Elsa Triolet-media library and the arts center Frida Kahlo. In a chaotic environment, he participates in the restructuration of the city center and articulates with flexibility the needs of both structures for different audiences within an object drawn as a “secret box”.
Centralize
L’Île-Saint-Denis (93) is one of the towns promised to a bright future by the « Grand Paris » development plan. The town of 7,000 inhabitants, one of the poorest in Île-de-France, can also rely on the Plaine Commune urban community to develop its infrastructure.
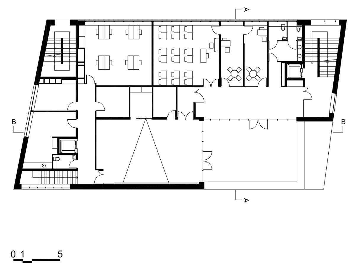
In a fabric marked by the predominance of the last century pavilions, glazed seamlessly with the imposing volumes of collective housing buildings, the new building of the Town Hall Square sets the tone. This equipment is part of the dual dynamic renewal of the city center of Île-Saint-Denis with the arrival of the tramway. Combining two structures within a single envelope, it welcomes the new Elsa Triolet-media library and the municipal art school Frida Kahlo. Both programs are similar but their specific audiences: the library is part of a network developed by the urban community, the arts school is created at the initiative of the municipality, who wishes to bring together within a same place multiple formations hitherto scattered. The network of Plaine Commune media allows residents of all municipalities in the metropolitan area to attend and borrow in each as in a municipal library. The arts school Frida Kahlo gathers classrooms and music practice, drawing and dancing until then dispersed.
Conciliate
For the teams that designed the building, David Devaux architects associated with Fassio-Viaud, the challenge is to implement a project “two in one”: both public building and on school enrollment. The two devices are as distinct in their programs and in their access, their relation to public space and their users. How to isolate each one without partitioning the building? The size of the site and the surfaces of each of the devices (800 m2 each) requires programs overlay, and the presence of water does not permit the building basement.
These are therefore distributed over three levels. On the ground floor, the reading room and lending areas of the library overlooking the square. The school of art has a specific entrance, which leads directly to middle level (where the library offices rub the school’s lobby). This central level is the common articulation for both facilities: a large terrace and a entertainment room – attached to the library but can be used by the art school.
Perfectly defined as a room, the terrace only misses strcuture and glass enclosure.
The overhang is a floating continuity of thé Inside functions. Music practice rooms, drawing and dance and related spaces (dressing rooms, control room …) are located on the last level.
Articulate
This distribution takes advantage of specific features as constraints of the two devices: open to the Town Hall Square, the library has its attendance and contribute to its animation. Directly accessible from the plazza, the Library exhibits its contain. The art school, which requires prior registration, is better suited for higher implantation, especially as its program can be split over two levels. The terrace of R + 1 is designed as a “high spot” defined without programming, it can accommodate multiple uses and also allows users to mix.
Deconstruct
The successful marriage of the two structures through a materiality that blurs pins from the outside. From the first sketches, inlay is set as a plastic and aesthetic reference. The idea was to to compensate the heterogeneity of the site by a small well-kept architectural object. In this heterogeneous environment, the building creates its own formal reference, a tone to match its public mission. Designed as a “puzzle box”, it has large larch dressed facades alternating with large widows highlighting the interior spaces. Thèse larges baywindows are framed by a painted steel cladding that contrasts and complements the hues of wood. Inside, panels of similar larch prolonges the visitor’s immersion in a setting that is both structured and ambiguous.




























