Située à l’angle d’une zone pavillonnaire et s’ouvrant sur le paysage champêtre qui s’étend au pied du Salève, cette villa est implantée dans sa parcelle de manière à créer un vis-à-vis décalé et discret avec sa voisine, qui date du début du XXe.
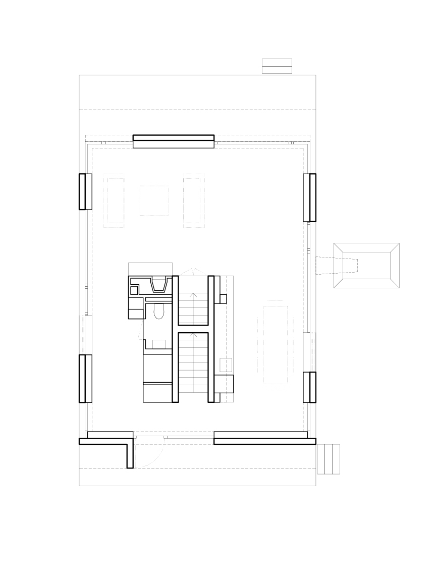
Le projet est pensé comme une structure habitable plutôt qu’une forme forte. Evoquant l’image d’un pavillon dans un jardin japonais, la villa se présente sous la forme d’un empilement de trois tables en béton armé, portées par des lames de taille et de position variables.
La première émerge du sol et contient la cave, les locaux techniques et une chambre d’appoint. En élevant légèrement le rez, elle établit un rapport poétique avec le jardin, tout en conférant un aspect monumental à la villa. La deuxième abrite les espaces diurnes et la troisième, de manière traditionnelle, la partie nocturne. Le dernier plateau est une toiture inversée par un pli, prolongé à ses extrémités par un canal qui réinterprète la figure de la gargouille et rejette les eaux de pluie dans un bassin de récupération. Ce couronnement particulier inscrit le projet dans le grand paysage. Détachée mais semblable, une quatrième table est placée en périphérie de la parcelle, afin d’accueillir le garage et d’articuler l’entrée à travers le jardin.










































3 Comments
What is the scale of drawings ?