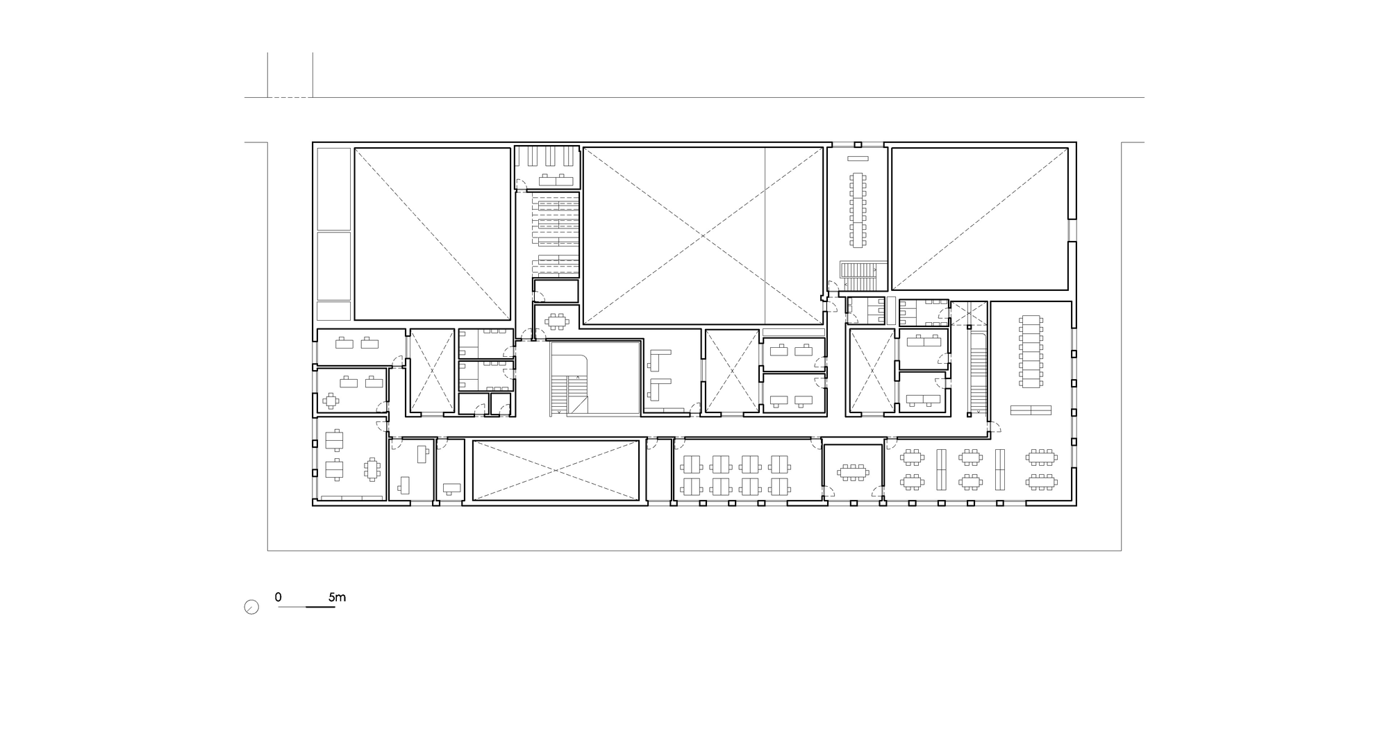
Generally in our projects to modernize schools we have designed a new building for additional activities. The only one where we decided not to do this is in Amora. There we took the central building and identified empty areas where a library and an auditorium could be built, complementing the existing structure.
On the upper floor, administrative areas and teachers’ departments could be installed. Also the project adjusts and transforms the existing areas and we worked to organize the school’s external spaces.
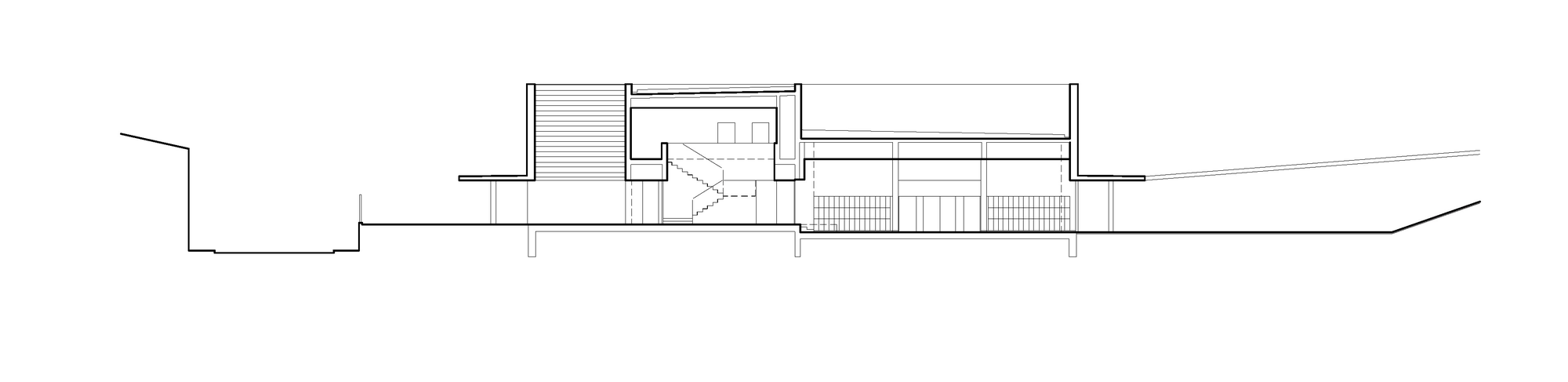
This is reinforced by a covered walkway, a kind of ring around the site that links the various pavilions.



























