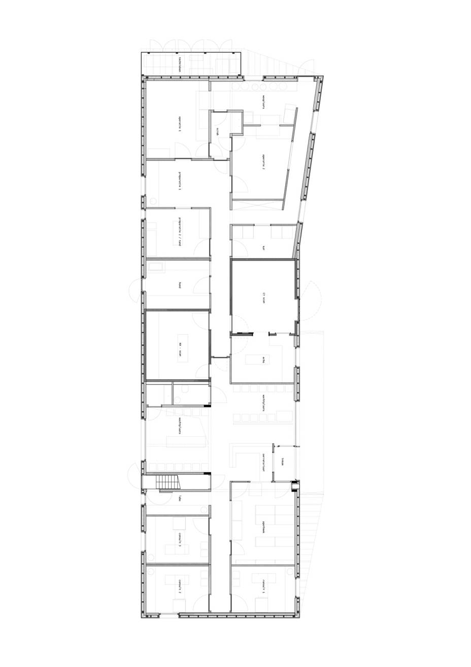
Four vets want a new clinic. A new clinic for consultations; with a lab and operating facilities, organised in a very particular way. One part open to visitors, with consulting rooms; a pharmacy; a reception desk and a waiting area. And a lab area with echo and CT scan; and an operating theatre and short-term stay facilities for animals.Plus administration and overnight-stay facilities.
For vets, the clinic is a ‘practical building’. Because a building could be said to be ‘necessary’. It must be practical in terms of ‘use’, but also in terms of ‘maintenance and hygiene’. With an appropriate budget. Appropriate.
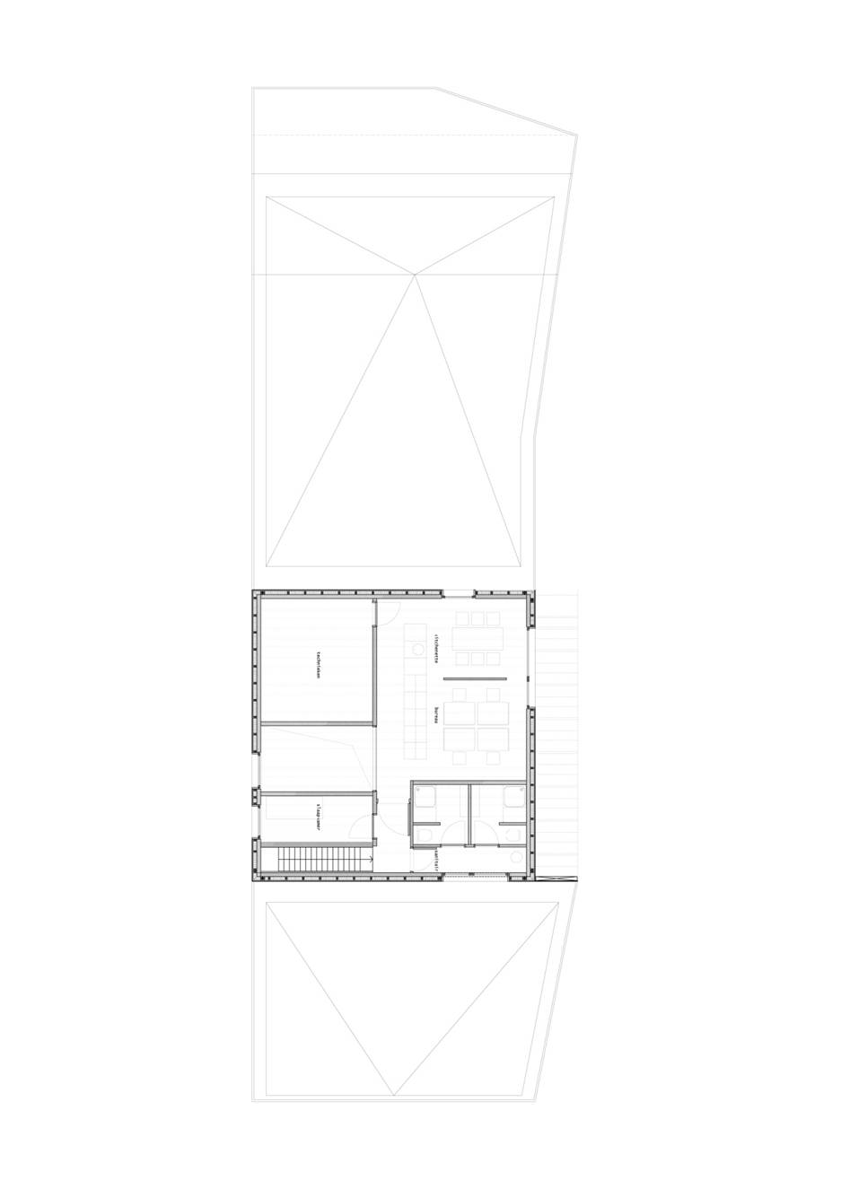
The vets want this clinic in the neighbourhood. In a residential district.Right in the middle of it. Where people live and animals – they go together. The clinic will be next to a dwelling. A dwelling that used to be a farmhouse.
Organisation. Use. Maintenance. Hygiene. Budget. As if it were just about function – not taking the farm into consideration. Or maybe we should actually take it as a starting point. As an ‘extra’. We come up with a simple linear plan; in which the three parts of the plan are in a neat row; or end up piled neatly on top of each other. A central corridor that crosses the waiting area shows the way around the building.
All that under a moving roof line that delineates the building in the context of its surroundings. Like stables adjoining a farmhouse. In wood.
The shell of the construction. The shell of the construction as finished product. How can we do that in such a way that the shell of the construction is no longer just a shell; but a building.Only by using brick. Building in bricks – but maybe different to what we are used to; but just laying bricks…so that it will maybe be like wallpaper. As if it was ornamental.

































