El edificio de viviendas, ubicado en el barrio gótico de Barcelona, ha sido transformado a lo largo de diferentes periodos históricos como el renacimiento, el barroco y la era moderna a principios del siglo XX. Además está envuelto por una gran densidad de vestigios históricos heredados de las reconstrucciones tras los bombardeos e incendios que ocurrieron en la ciudad.
La intervención se centró en la investigación y en el descubrimiento de sus elementos originales. Se encontraron arcos góticos, fragmentos de frescos en las paredes, suelo de baldosas cerámicas, viguetas de madera, el revoltón cerámico y el mortero de cal, materiales y elementos constructivos muy representativos de la arquitectura tradicional catalana que se reintegraron con el fin de preservar la identidad del edificio.
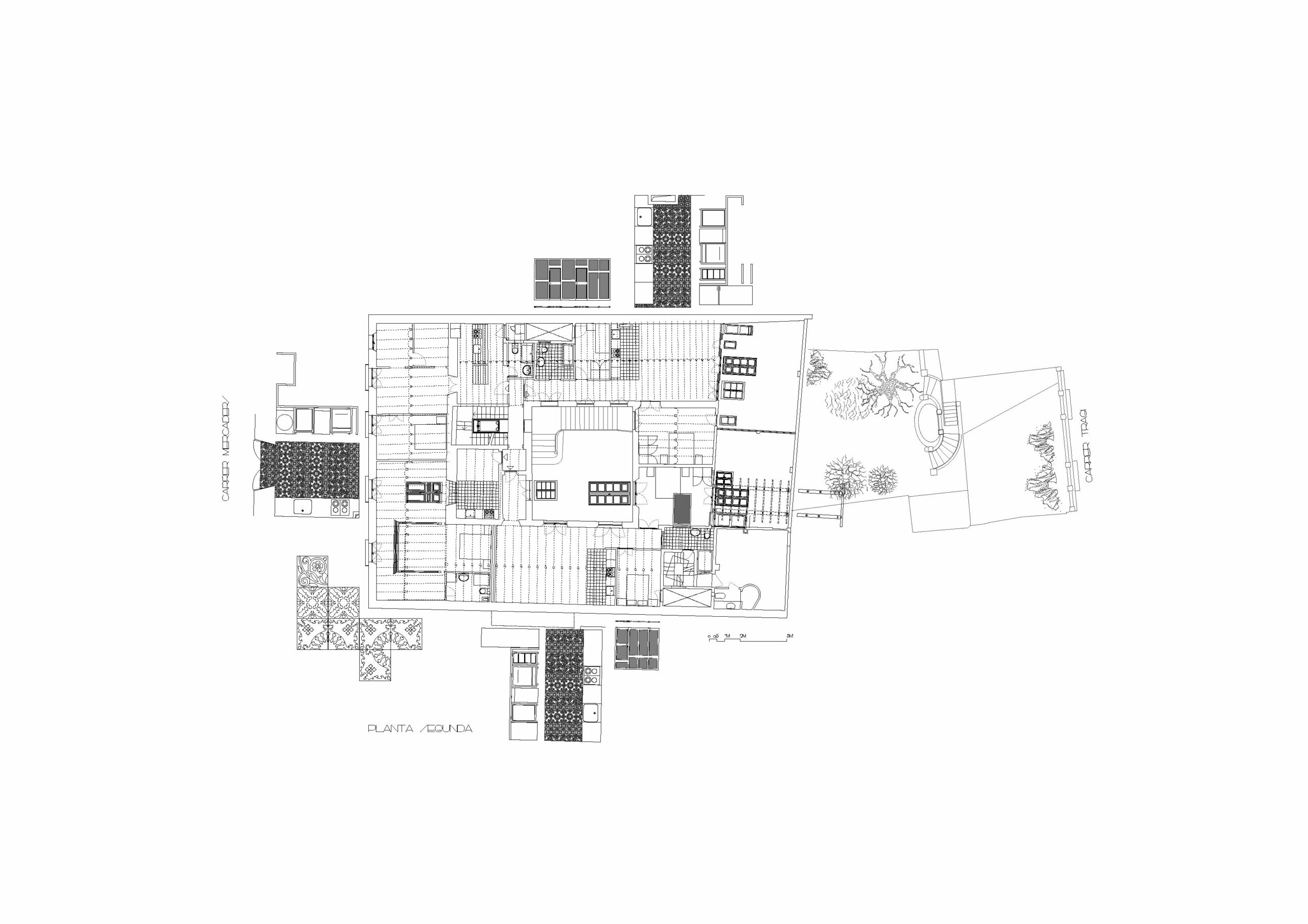
Las viviendas fueron rehabilitadas respetando la historia del lugar, simultáneamente su redistribución espacial fue pensada para atender las nuevas maneras de habitar y facilitar las nuevas tecnologías. Los espacios interiores se dilatan y se iluminan proporcionando una nueva sensación de bienestar.
Esta superposición de los elementos históricos y de los nuevos tabiques de policarbonato, dan lugar a espacios vivos y dinámicos, que reflejan distintas épocas y enlazan el pasado y el presente. El edificio actúa como un espejo urbano en el que el pasaje del tiempo se ve reflejado.
La terraza de uso común otorga una sensación de libertad en un núcleo urbano compacto, permitiendo además la interrelación entre vecinos, el disfrute de vistas del casco antiguo de Barcelona.
La principal intención del proceso de readecuación de las viviendas fue buscar las huellas históricas del edificio empleando recursos creativos al menor coste, por medio de un trabajo de limpieza, acercamiento y descubrimiento fue posible alcanzar un resultado óptimo.





















1 Comment
La broma de las franjas verticales me parece divertida i el dibujo de las plantas también es majo. La “Bene” está en plena forma!