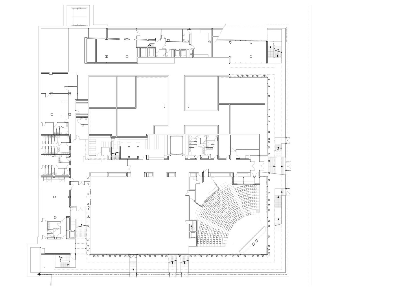
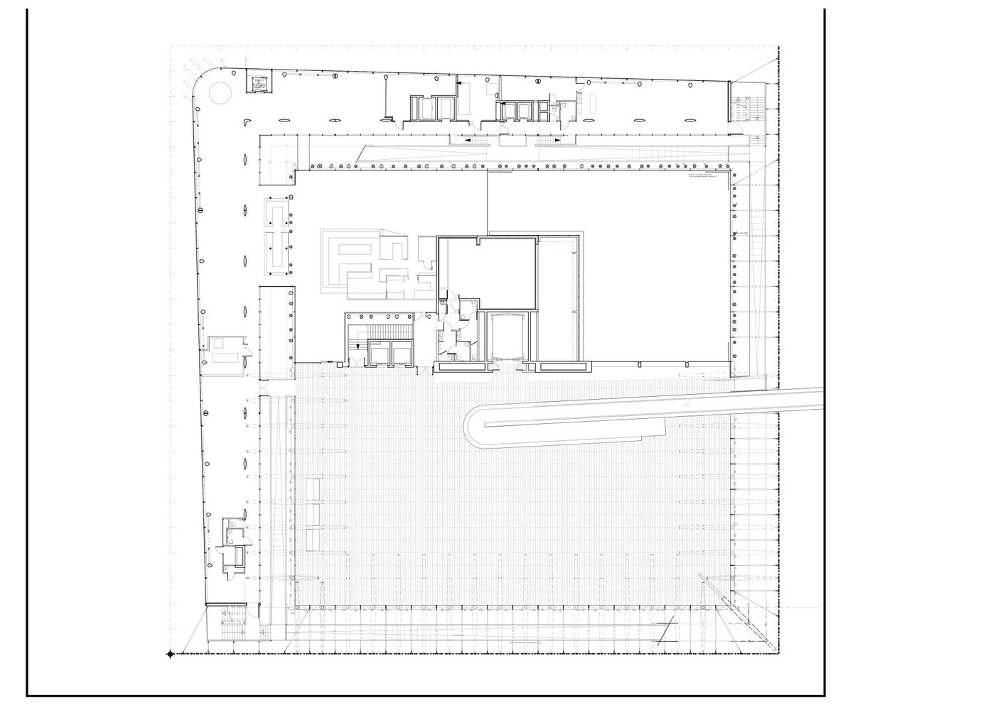
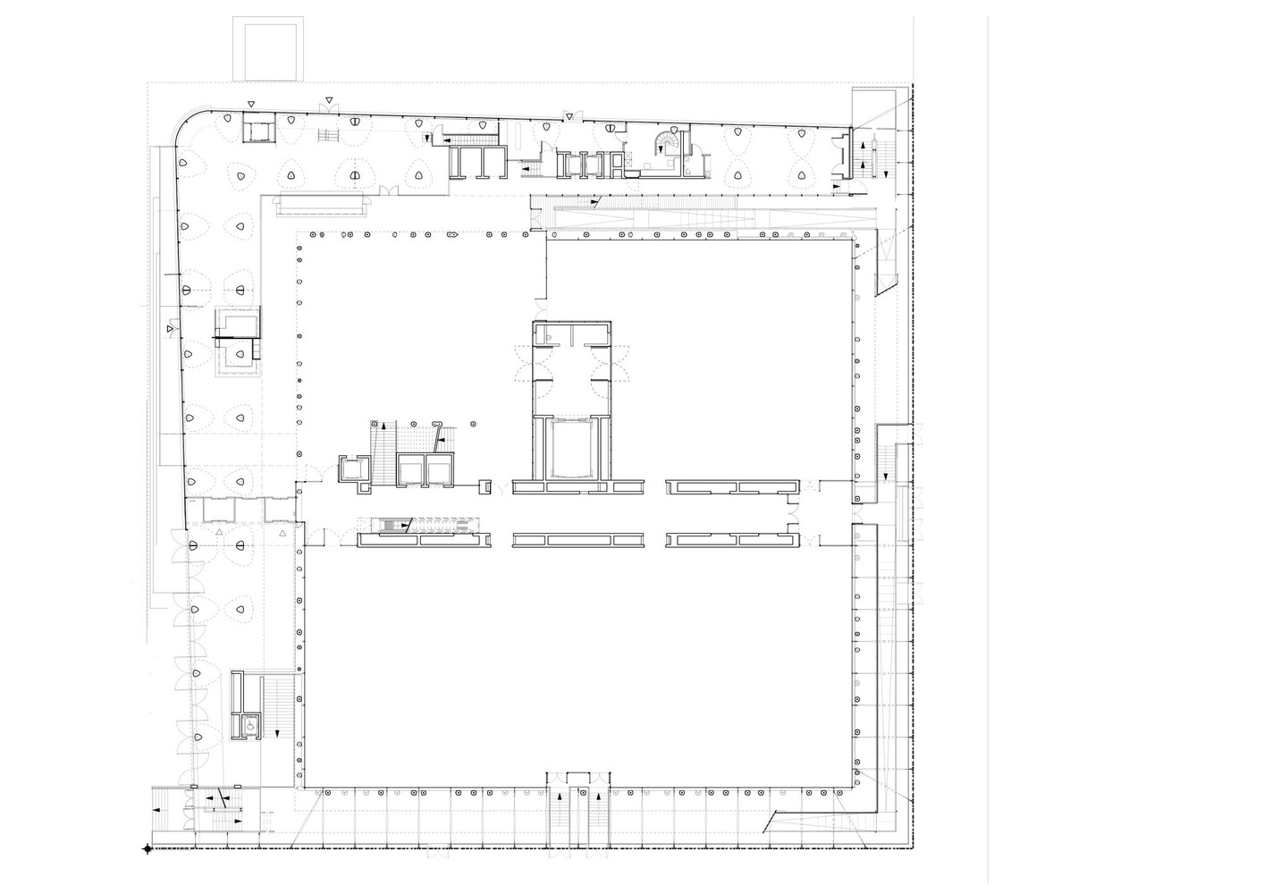
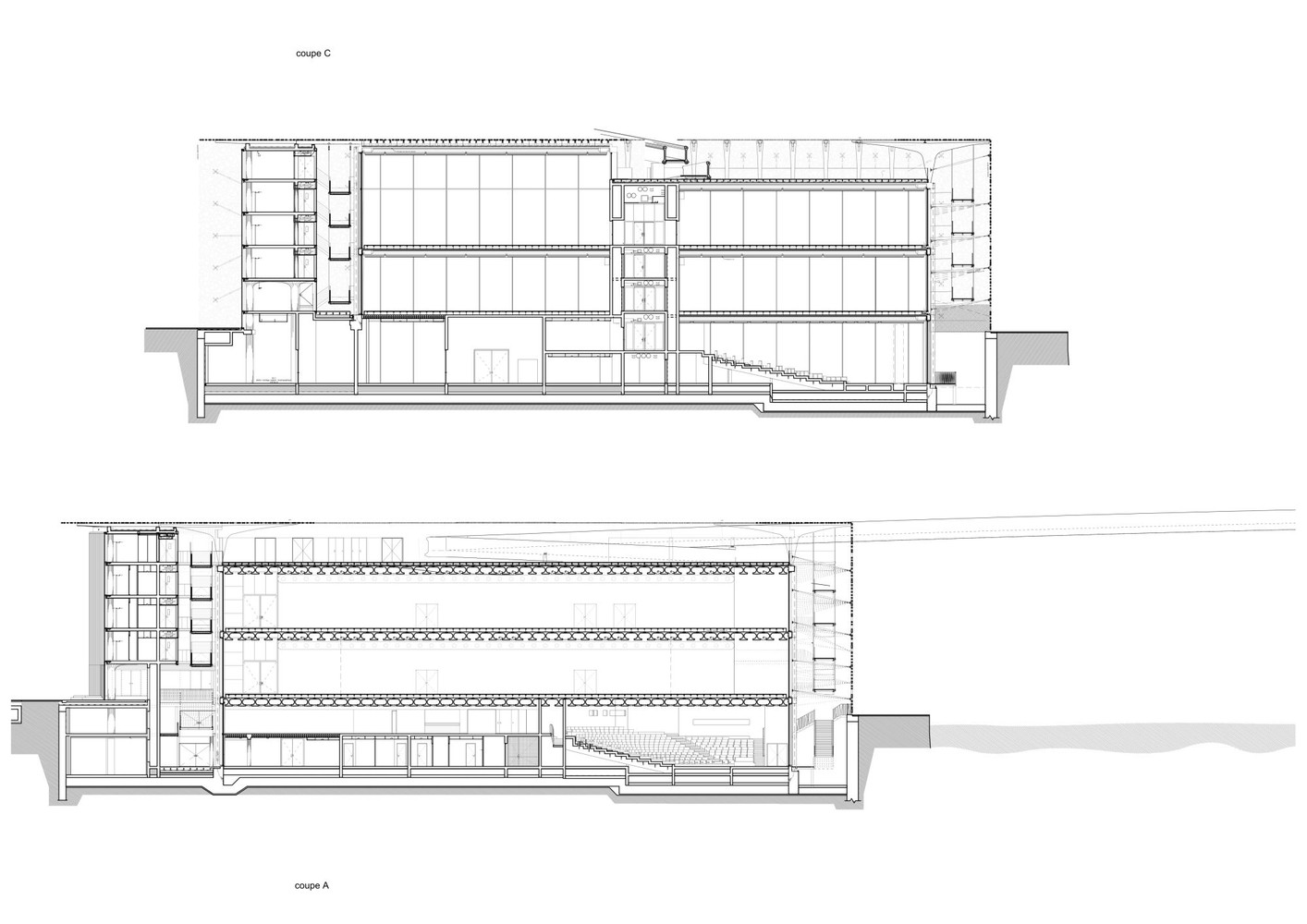
En primer lugar un cuadrado perfecto de 72 m por lado, es un plan clásico, latín, bajo el control de Pitágoras. En esta plaza, otro de 52 m por lado, que comprende la exhibición y salas de conferencias identificadas como el corazón del museo.
Alrededor, por encima y por debajo se encuentran las áreas de servicio. Pero entre estas áreas y el corazón, las aberturas evitan por completo la plaza central y forman espacios interconectados. Más interesado por las vistas de la fortaleza, el mar o el puerto, el visitante abrumado por la cantidad de cultura, elegirá esta ruta. A lo largo de dos rampas entrelazadas, el usuario entonces se sumergirá en el imaginario de la torre de Babel o de un zigurat con el fin de subir a la azotea y al Fort Saint-Jean. Este bucle periférico será una respiración museificada, envuelto por el olor del mar desde la proximidad a los fosos, una pausa para disipar cualquier duda sobre el uso de la historia de nuestra civilización. El MuCEM será un Casbah vertical.
La elección tectónica de hormigón excepcional procedente de las últimas investigaciones de la industria francesa, reduciendo las dimensiones un poco más que sólo piel y huesos, afirmará un mineral bajo las altas murallas de Fort Saint-Jean. El único material en el color de polvo, mate, aplastado por la luz, lejos de la brillantez y el consumismo tecnológico, encomendará la densidad y la delicadeza. El MuCEM se ve evanescente en un paisaje de piedra y orientalista a través de sus sombras.






















1 Comment
El uso de parte de la fachada como una tela-manto es más que curioso. Parece que la balanza se posiciona cercana a la estética más que a la funcionalidad aunque sin se mira con detalle se pueden apreciar los objetivos de las decisiones tomadas. El elemento viga-puente-paso singulariza el conjunto. Se hecha en falta alguna foto nocturna, serían muy interesantes con toda seguridad.
BUEN TRABAJO. Enhorabuena desde Barcelona.