La Universidad de Segovia tiene su origen en un antiguo Colegio Menor dependiente de la Universidad Complutense de Madrid. Posteriormente pasó a la Universidad de Valladolid, incrementándose el campus con diferentes facultades que actualmente se dispersan por diferentes edificios de la Ciudad, muchas veces en condiciones lamentables. La construcción de un Campus ha sido desde hace tiempo una reivindicación del cuerpo universitario que ahora comienza a hacerse realidad.
El proyecto del Campus de Segovia se ubica en el solar del antiguo Cuartel de Artillería que ocupaba parte de una manzana del arrabal de la ciudad, lugar en el que se asentaron desde la Edad Media algunos establecimientos industriales.
Tras ser cedido el solar a la Universidad de Valladolid, titular de la de Segovia y tras un dilatado tiempo de negociaciones entre las diferentes instituciones regionales, se procedió a la convocatoria de un Concurso Abierto que fue ganado por los arquitectos Sánchez y Linazasoro, los cuales elaboraron un proyecto en dos fases, la primera de las cuales se encuentra actualmente en construcción.
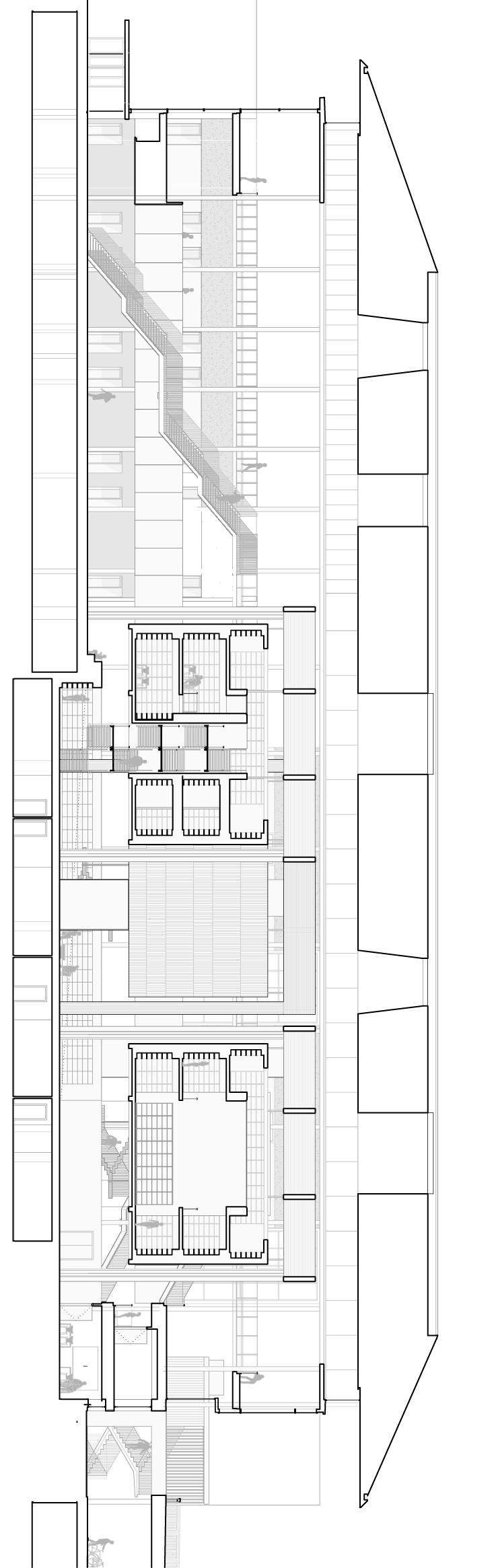
El nuevo campus de Segovia se caracteriza porque los servicios comunes de carácter docente como las aulas y la biblioteca son comunes a todas las facultades. Esto significa que el campus se divide en dos áreas muy concretas: la que incluye esos servicios comunes y que se configura como ágora del campus y la que contiene las facultades con sus servicios más específicos.
El campus de Segovia se sitúa en el corazón del ensanche de la ciudad, construido sobre el antiguo arrabal. Esto tiene implicaciones importantes desde el punto de vista urbanístico ya que el nuevo edificio sustituye un antiguo cuartel que establecía una barrera urbana que impedía la continuidad de recorridos transversales a la manzana.
El nuevo proyecto genera una calle transversal o espina dorsal del edificio al constituir la línea divisoria entre el ágora, actualmente en construcción y el área de facultades.
Dicho ágora se configura como una plaza cubierta que aporta un espacio público en una parte de la ciudad que carece de espacios de este tipo.
La amplitud y diafanidad de este espacio no es obstáculo al estar ocupado por la biblioteca ya que ésta tiene características singulares que van unidas a su forma constructiva. Se decidió por eso que las áreas de lectura se configurasen como tres espacios dentro de otro mayor con un carácter parcialmente permeable respecto a este último.
La referencia espacial y estructural a los baldaquinos históricos sirve para plantear una estructura permeable dentro del un espacio contenedor, solo que aquí se trata de un edificio colgado sobre el espacio que no llega a tocar el suelo manteniendo la continuidad del espacio.
En consecuencia, los baldaquinos requieren un planteamiento constructivo no convencional consistente en un entramado de vigas de canto de las que cuelgan las losas de las plantas mediante barras de acero corrugado de alta resistencia Gewi Plus trabajando a tracción.
El diseño de pilares y vigas del baldaquino es de una ligereza sólo posible apurando al máximo los espesores y de buena textura y acabado. Esto se ha logrado mediante el empleo de hormigón autocompactante HA 40 que por su fluidez impede la formación de coqueras y se adapta al encofrado y a los espesores buscados.
El espacio cubierto o ágora se cubre mediante cerchas metálicas de una luz de 46m que se apoyan perimetralmente y que tienen continuidad hacia el exterior aunque sin sobrepasar la línea de fachada, formando un amplio vuelo de protección de lo patios y accesos al edificio. La cubierta es de chapa y el techo de heraklit blanco en el interior y chapa en el vuelo exterior.
La cubierta está atravesada por lucernarios. Existen tres grandes situados sobre el centro de los baldaquinos y otros más pequeños y de dos tamaños diferentes situados con cierto carácter aleatorio pero que en realidad están en función de la iluminación del espacio. En el vuelo exterior de la cubierta en los dos lados más largos de la misma, correspondientes a las calles Coronel Rexach y Sargento Provisional, existen dos lucernarios corridos que aminoran el vuelo de la cubierta y le proporcionan ligereza.
La definición de las fachadas interiores del ágora tiene en cuenta una jerarquía de proporciones para darle un carácter más representativo al espacio. De esta manera, se establece una planta baja en forma de zócalo mientras que la planta segunda se retranquea respecto a ésta última, pasando los pilares por delante. La menor altura del pasillo perimetral en planta baja sirve además para crear una “compresión” en el acceso al que sigue la “distensión” producida por la visión total del espacio cubierto.
Dicho espacio tiene el carácter de una de una plaza cubierta por lo que los materiales se corresponden con este carácter y predominan las texturas y la materialidad como lenguaje que se refleja en los acabados de paredes, suelos y techos.
La estructura metálica de las escaleras y de los pilares que soportan las pasarelas de las tres plantas de las aulas aparece vista, así como la de los baldaquinos, de hormigón.
Las losas de las pasarelas son de losa vista de hormigón, al igual que los techos de la planta baja de los baldaquinos. Los frentes de la primera planta de las aulas son de prefabricado de hormigón, mientras que los techos de planta baja del pasillo perimetral y el techo del espacio cubierto son de Heraklit.
El suelo de la planta baja es de adoquín en una gama de tres colores definiendo rectángulos, mientras que el de las pasarelas es de hormigón in situ.
Un comentario aparte merece el foso de la biblioteca que se considera un espacio con características de mayor intimidad que el resto que lo rodea y cubre. En espacio dentro de otro, en definitiva. Esto supone un tratamiento más delicado en suelos y paredes. Las primeras están formadas por estanterías de libros de acceso directo sobre una base de tablero de madera, mientras que el suelo sigue siendo de piedra, pero en este caso serrada en forma de losas.
Las fachadas se corresponden con la presencia que el edificio tiene en el entorno urbano. Se ha procurado que pese a su gran tamaño no resulte agresivo sino que adquiera una escala adecuada, incluso menor que la que le correspondería. Para ello ha sido decisiva la fragmentación y la adecuación a la escala de las diferentes calles hacia las que el edificio se orienta.
Otro factor importante ha sido el aprovechar la topografía de fuerte desnivel para enterrar parcialmente el edificio. De este modo y respecto a la calle Coronel Rexach, el edificio aparece fragmentado en volúmenes que se corresponden interiormente con las aulas y parcialmente enterrado, mientras que la calle Sargento Provisional tiene una planta menos.
La cubierta permanece en un segundo plano salvo en los accesos lo que impide la percepción exterior del gran espacio que cobija.
Frente a esta fragmentación en escala del edificio, el tratamiento de las fachadas es unitario. Está constituido por tres elementos: prefabricados de hormigón, bloque de hormigón estriado, zócalo de costeros de piedra granítica y muro cortina. Todos los elementos presentan un tamaño que podríamos definir acorde a la escala de un edificio público.
Par lograrlo se ha buscado una definición de las fachadas a través de elementos de gran tamaño y un lenguaje claro en la definición de los diferentes planos de las mismas, vinculados normalmente a un único elemento: muro cortina, prefabricado etc.
Los prefabricados son de dos tipos: planos y espaciales. Los primeros, siempre de gran tamaño, revisten los planos lisos de las fachadas, fundamentalmente en los accesos. Los segundos sirven para conformar los módulos de ventana en las aulas y los elementos de esquina de los “cubos”.






































