Origen
El edificio del Ateneu Popular de 9 Barris era una antigua fábrica de asfalto que fue ocupada por los vecinos del distrito a finales de los años 70 para convertirla en la primera fábrica de creación de la ciudad de Barcelona y en una de las Escuelas de Circo más importantes del mundo.
Se trata de un equipamiento de titularidad municipal gestionado de forma ciudadana por una asociación sin ánimo de lucro.
Usos
El Ateneu Popular de 9 Barris funciona desde 1978 y ha tenido, desde sus inicios, al circo como elemento identificador. Los talleres de circo surgieron de forma espontánea. En 1984 se creó la escuela infantil de circo, que amplió su labor pedagógica con la escuela juvenil de circo.
Pero en el Ateneu siempre ha habido algo más que circo, se trata de una verdadera “escuela de participación” en la que se fomenta el compromiso social y solidario entre los ciudadanos.
Edificio Previo
La fábrica original era una nave de una sola planta con una estructura de cerchas de 10m de luz cada 5m y una longitud aproximada de 120m. El edificio ha sido objeto de varias reformas encaminadas a adecuar los espacios a las necesidades que se han ido concretando. Para el escenario del teatro fue necesario construir una caja escénica y, posteriormente, un edificio técnico adosado y de igual altura (+de 18m).
Ésta, quizás, ha sido la intervención que más ha modificado la morfología del edificio original, ya que el volumen se erige como la gran cabeza de un alargado cuerpo sujeto a tierra.
Proyecto de reforma y ampliación (2009-2010)
En las sucesivas reformas el edificio ha mantenido su estructura, lo que confirma la versatilidad del mismo.
Y este proyecto en concreto contempla:
– la reforma para adaptar el edificio a las nuevas normativas y resolver las deficiencias en materia de instalaciones eléctricas y de clima.
– la ampliación de la superficie de: cocina, bar/local y gimnasio principalmente.
Objetivos y criterios
Quisimos que el ritmo constante de la estructura existente se convirtiese en un aliado del proyecto, pasando a ser la clave generadora del mismo. Por ello y para ello:
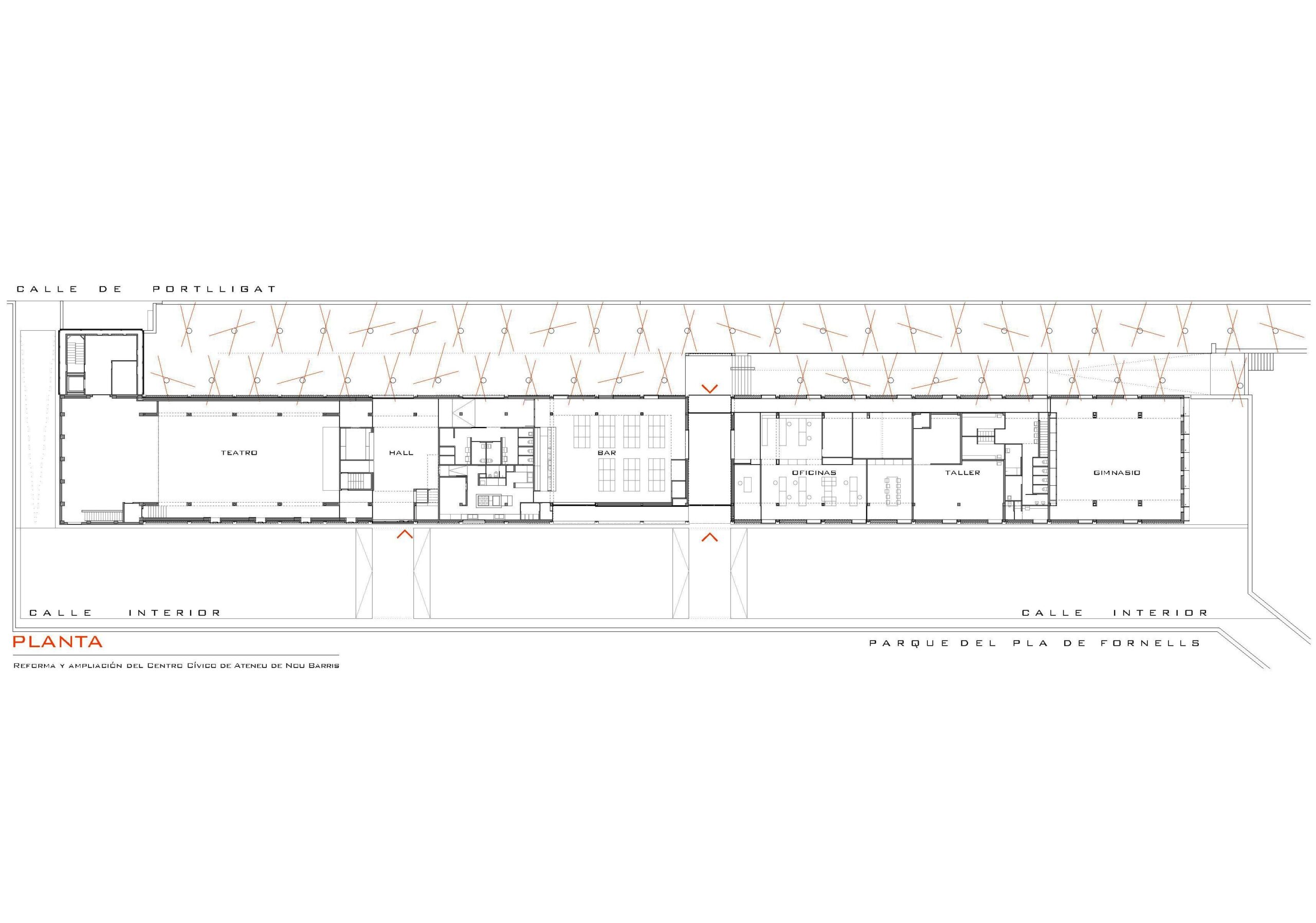
– potenciamos la organización funcional/distributiva existente haciendo más coherente la relación entre los espacios de zona 1: gimnasio/oficinas, zona 2: bar/lokal y zona 3: teatro.
– el espacio abierto situado entre las zonas 1 y 2 se cierra y pasa a ser el auténtico hall del edificio.
– mantenemos y aprovechamos al máximo el volumen de la nave central creando grandes espacios diáfanos y permeables entre ellos.
– a nivel técnico hemos considerado como elementos fijos: los cimientos; los pilares y cerchas de la nave central; la cubierta ligera y los pilares secundarios de los porches, que se mantienen exteriores y seguirán funcionando como bajantes para el desagüe de la cubierta.
– el porche exterior de la estructura existente se incorpora al volumen interior y se reinterpreta como elemento de comunicación y distribución; desmontamos la parte correspondiente a la cubierta ligera para construir una cubierta plana con la ayuda de unos pilares metálicos solidarios con los existentes. Esta franja servirá como canalón de cubierta y, al mismo tiempo, pasillo técnico de mantenimiento e instalaciones.
– hacemos desaparecer las pequeñas ventanas y puertas centradas del edificio original transformándolas en un cerramiento unitario modulado. (23 módulos de 5m de ancho x 4,5m de alto)
– con independencia de la carpintería de aluminio, que aparece en la mayoría de los módulos, dos únicos materiales se combinan en la fachada: por un lado vidrio u-glass (doble como cerramiento y sencillo como revestimiento) y, por otro, revestimiento de chapa metálica plegada, lisa o perforada según posición y necesidad.
– los paneles de chapa lisa constituyen el espacio reservado a los grafitti.
– a nivel volumétrico la fachada del edificio tiene una altura constante a lo largo de 20 crujías 6,7m (4,5+2,2) y 8,60m (4,5+4,1) las 3 últimas, creando un volumen que actúa como contrapeso de la caja escénica mencionada con anterioridad.






















3 Comments
Es una lástima que no se aprecien los cortes transversales con mayor detalle, pues muchas de las cosas del proyecto se entienden desde ese documento.
Un proyecto con muy buena pinta.