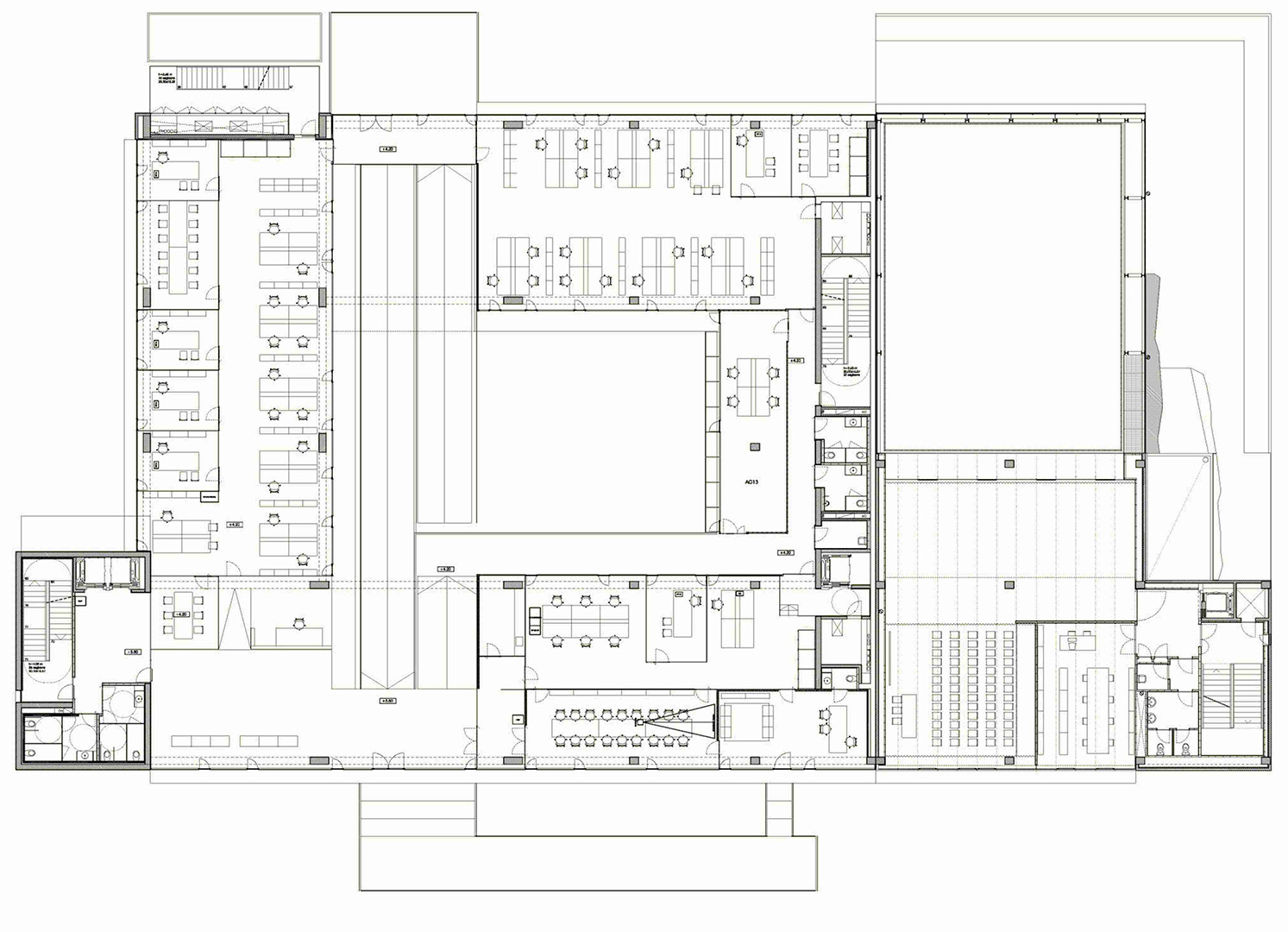
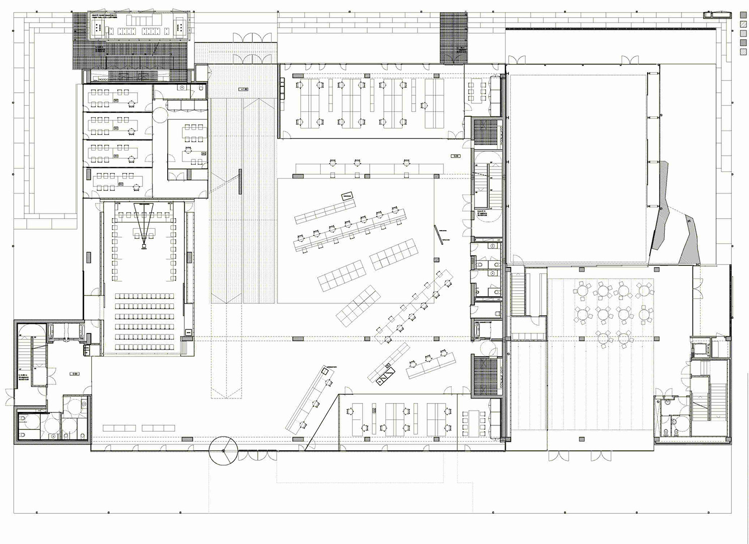
Dos condiciones programáticas divergentes resultan decisivas a la hora de afrontar el proyecto: cómo organizar un edificio donde predomine (en un 70%) un espacio de oficinas estándares de características “indeterminadas” y que integre los requerimientos de máxima flexibilidad programática, y al mismo tiempo conseguir que los espacios específicos (30%), tengan unas especial relevancia y sean capaces de dotar al edificio de una “alta representatividad”. El proyecto se desarrolla con la intención de proporcionar una máxima intensidad de uso al edificio, y de conferirle una gran permeabilidad y transparencia en la planta baja, en contacto directo con un espacio público con un espacio público circundante que se prolonga dentro del edificio.
Un recorrido en rampa articula sucesivamente las diferentes partes de programa específico y acentúa las cualidades representativas. De esta manera, la rampa se convierte en una verdadera calle ascendente que cruza el edificio al mismo tiempo que genera una secuencia dinámica de espacios que conectan el vestíbulo, la sala de plens, el hall de atención al ciudadano, la conexión con la calle posterior, el acceso público a los espacios de la alcaldía i, finalmente al balcón del Ayuntamiento, el elemento más emblemático que enfatiza su condición entre límite entre espacio público y edificio.
El edificio se organiza alrededor de un patio interior i al mismo tiempo con un entorno vegetal externo formado por abedules, que actúan como brise-soleil de diferentes intensidades estacionales. Este espacio permite interiorizar las zonas de trabajo y abrir todas las dependencias a una ventilación y asoleo controlados, así se posibilita un notable ahorro energético y se reduce el coste del acondicionamiento térmico del edificio.

































2 Comments
Este tipo de escritos perjudica la imagen de los arquitectos. Pretender colar que unos arboles plantados delante de una fachada acristalada, (QUE ADEMAS NO ESTAN!!!) ayudan a regular climaticamente el edificio y reducen costes es insultar a la inteligencia humana.
Como???
A ver, cito textualmente memoria: “El edificio se organiza alrededor de un patio interior i al mismo tiempo con un entorno vegetal externo formado por abedules, que actúan como brise-soleil de diferentes intensidades estacionales. Este espacio permite interiorizar las zonas de trabajo y abrir todas las dependencias a una ventilación y asoleo controlados, así se posibilita un notable ahorro energético y se reduce el coste del acondicionamiento térmico del edificio.”
Amigos, hace años que esta acabado y no hay ni un arbol!!! se cayeron por presupuesto o que pasa aqui?