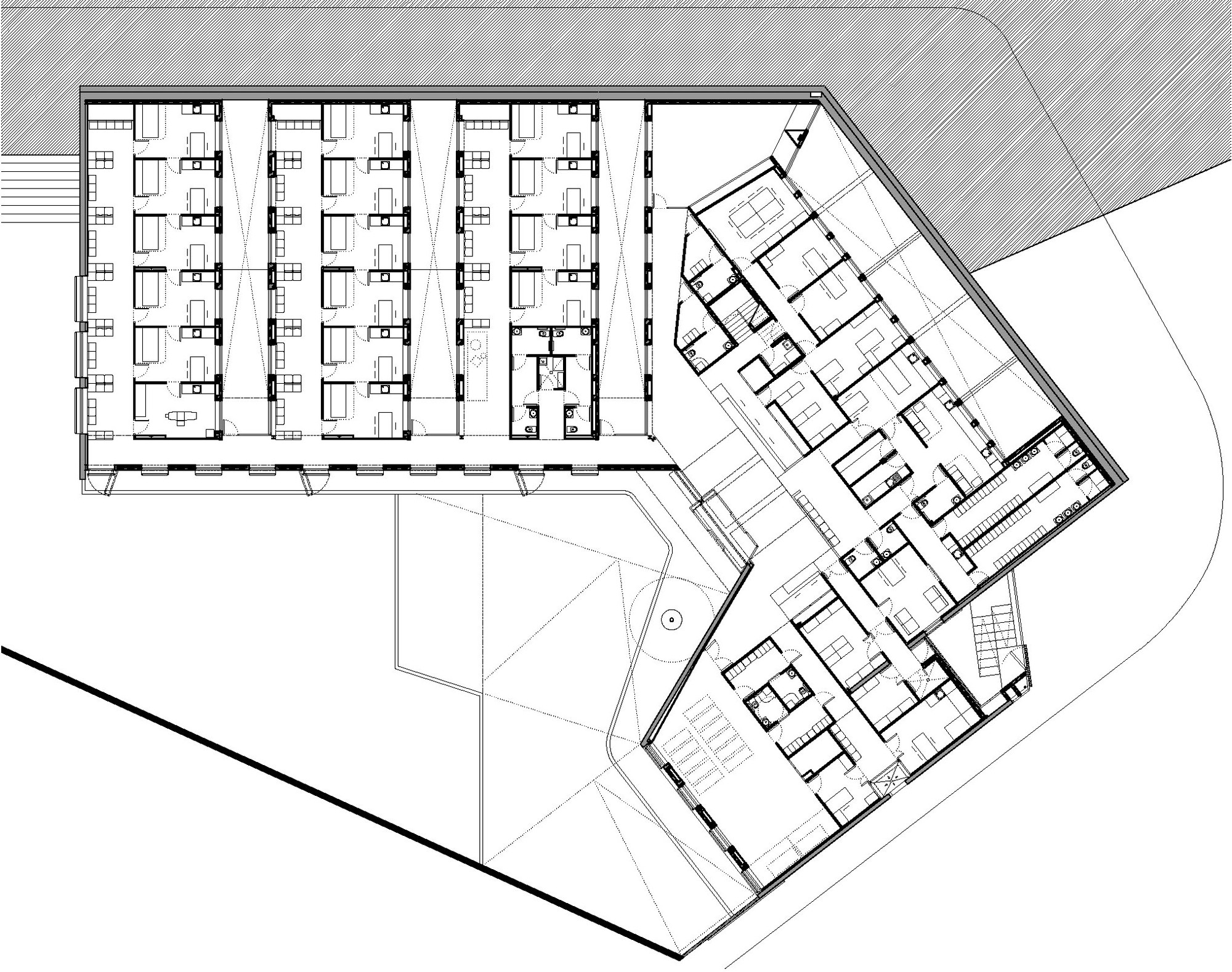
Solar con 8m de desnivel. El equipamiento se construye arrimado a las calles del perímetro para generar un vacío urbano en el interior de la parcela que es utilizado como patio de acceso. El edificio no interrumpe las vistas de la calle que hay al límite superior.
La organización del programa se desdobla en dos partes – ambulatorio y centro de recuperación fisioterapéutica – que disocian el volumen construido, asimismo, en dos alas. La entrada del edificio se practica en su punto de encuentro.
La cubierta a una sola agua unifica el conjunto. Parte de la cota superior del solar y desciende paralela a la pendiente original del terreno. Las partes de mayor altura se aprovechan para ubicar el gimnasio, el aula, las salas de espera y, mediante altillos, las instalaciones. Igualmente la excesiva altura permite un hipotético crecimiento del centro sin necesidad de ampliar su volumen actual, ocupando el vacío existente sobre las salas de consulta.
Los patios resuelven la iluminación y la ventilación de los espacios interiores. Éstos se ordenan mediante un arrimadero de azulejos blancos de cota constante a partir del cual “despegan” los techos inclinados. Al exterior estos arrimaderos se convierten en paramentos de azulejos azules provenientes de Portugal.
















