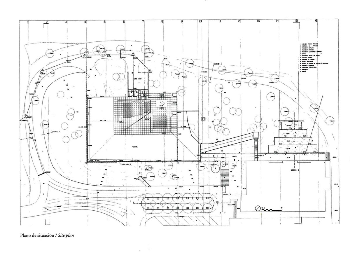
Situado en una colina, y próximo a las salas de velatorio del cementerio, el edificio tiene como función dar acogida a las ceremonias de carácter civil y religioso. Las salas pueden adaptarse, según las necesidades, para una ocupación de 200 a 500 personas, quedando su espacio proporcionado a la ocupación.
La amplia plataforma exterior posibilita congregar a los asistentes antes y después de la ceremonia.
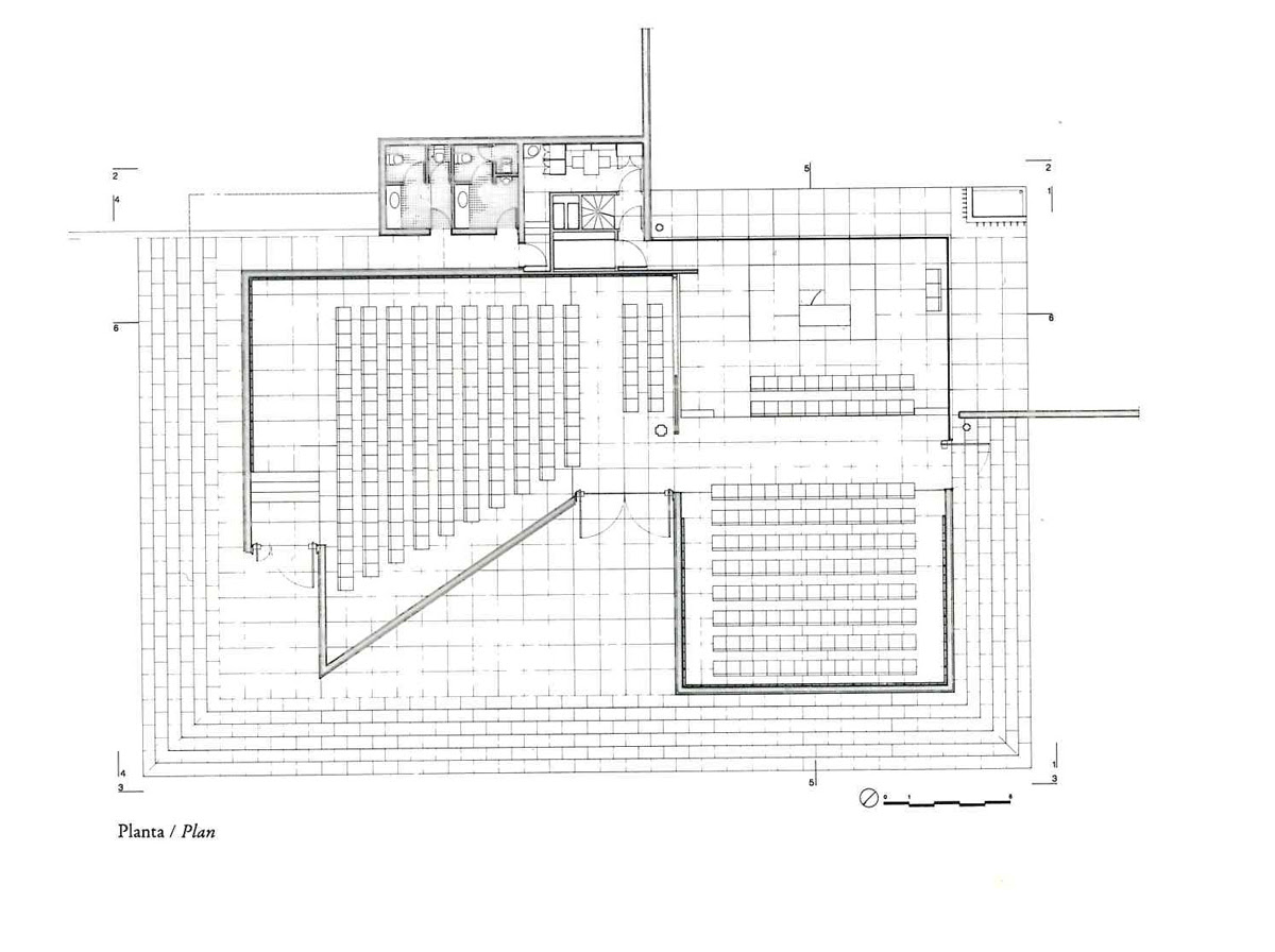
El resultado es un edificio de imagen exterior unitaria formada a partir de dos espacios maclados que se funden en un solo. El espacio interior se divide mediante un elemento móvil que separa las dos salas. Dos muros exteriores perpendiculares organizan el espacio exterior en dos áreas bien distintas, Por una parte, la plaza de acceso sobre la que se sitúa el edificio, y por otra el bosque natural que actúa como telón de fondo del área de ceremonia.
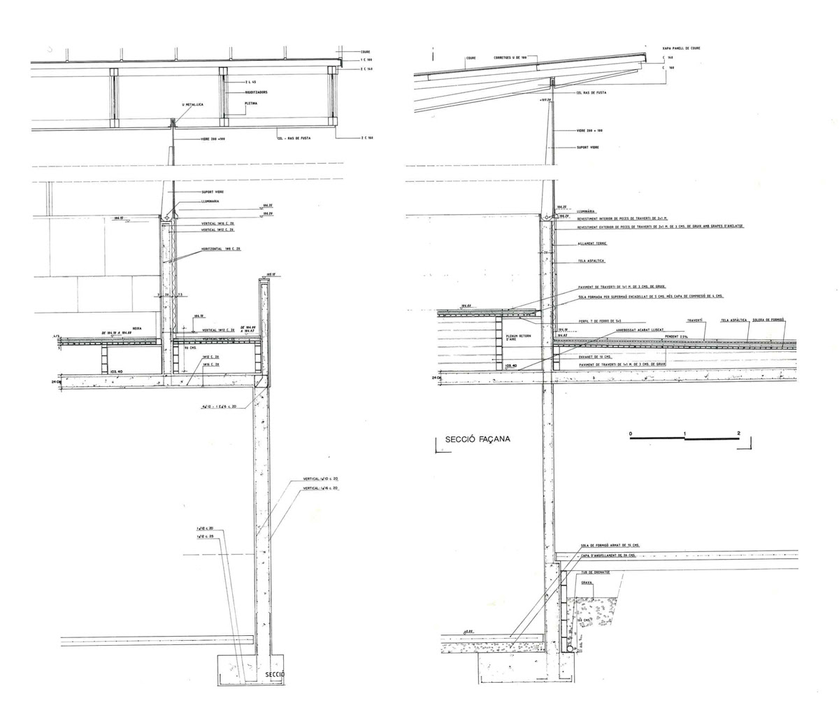
El cerramiento combina la opacidad del muro y la transparencia del cristal para lograr la necesaria privacidad del interior respecto al exterior, y a la vez conseguir la integración del espacio con el medio natural que lo envuelve.
Los cerramientos y la cubierta están organizados en voladizo de forma que no conectan estructuralmente, potenciando el efecto de transparencia y fluencia del espacio.


















