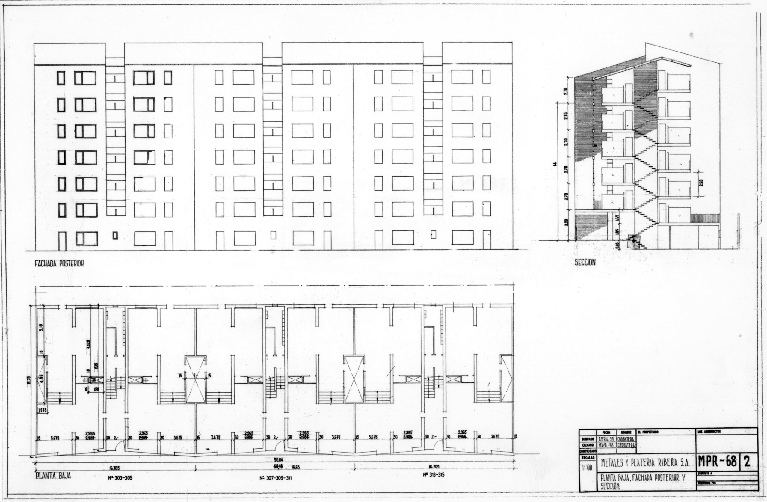
Grupo de 130 viviendas económicas (60 m2) emplazadas en una manzana del Eixample de Barcelona. La planta de la vivienda es muy concentrada, con un espacio único central, entrada-cocina-comedor. Las viviendas se distribuyeron en 4 por piso y en dos nivel diferentes. Se intentó suavizar la monotonía de la manzana Cerdà individualizando los diferentes cuerpos separados por la escalera y por la forma retranqueada de la fachada. Los materiales de construcción son muy sencillos y absolutamente tradicionales
Se trataba de proyectar y construir un grupo de casas muy económicas, partiendo siempre de la realidad estricta de los años 50, es decir, aceptando – y aprovechando – los bajos niveles de las técnicas y los oficios de la construcción, la neutralidad expresiva del urbanismo, el escaso poder social y económico de los usuarios recién inmigrantes con estándares bajos de confortabilidad, unos precios de alquiler condicionados a los sueldos que los usuarios cobraban en la fábrica promotora de la operación. Se trataba, sobre todo, de no hacer volar palomas con la idea de que la solución de la vivienda popular en masa obligaba inventar nuevas tipologías de módulo y de agregación y nuevos sistemas de construcción enfocados hacia utopías de la industrialización. Muros de carga construidos con ladrillo, ventanas de luces pequeñas, concentración de servicios, cubiertas inclinadas de teja, escaleras con muros continuos y losas de hormigón. Forma urbana con manzana cerrada y edificación continúa. En general, servicios mínimos, menos de lo que hoy obligan a la mayor parte de normativas. En resumen: una arquitectura pobre que utiliza la pobreza para abrir una nueva línea estética y para afirmar con tono contestatario que las urgencias sociales si no tienen un aparato de investigación a su servicio (caro y lleno de dificultades) sólo pueden encontrar soluciones provisionales en la utilización de paisajes y contenidos – urbanos o suburbanos – que, si habláramos en términos operísticos, casi podríamos decir “veristas”.























13 Comments
el mobiliario es genial!!!
T85: Desde mi punto de vista no hay pasillo en forma de C. La pieza de la cocina y armario se entiende como un mueble en medio de la sala de estar (no llega al techo, el armario no alineado) que construye un espacio de privacidad para el recibidor. A mi me parece una planta excelente para la época en la que se construyó.
Estoy de acuerdo contigo. Esta planta es el gérmen de toda su arquitectura posterior, tan sólo con el truco de interponer dos puertas entre una habitación privada y las salas comunes, rompiendo completamente la distinción zona de día-zona de noche de un modo que arquitectos como Coderch no se plantearon en su vida. Sin desmerecer su arquitectura, claro. Teniendo en cuenta que tenían 30 años, me parece un proyecto madurísimo.
Hi estic d’acord.
Us heu fixat amb l’especejament de la finestra?! (+ material, proporció, alçada ampit,…)
Més que un tema de privacitat, des d’un punt de vista programàtic; ho miraria (o crec que és interessant) pel tractament gradual de la llum en franjes desde l’escala-safareig-(carrer), rebedor-sala i habitacions. Per això aquesta obertura de la sala crec que és fantàstica.
Respecto de las fotografías, las tomé en blanco y negro por la luz que había, por ser cómo se expresan unos edificios que no están concebidos desde el color, sino desde el juego compositivo de llenos y vacíos. En ningún momento quise que pareciesen viejas, o disfrazarlas de fotos de época. Son fotos actuales en blanco y negro. La foto de la esquina sin árboles es de Oriol Maspons.
Las plantas hay que entenderlas respecto de su época, y, a mi entender, son una maravilla. EL juego de decalaje de los pisos en sección las enriquece todavía más (ver escalera).
La última parece ser que es la única que es de la época, asi como los interiores. Respecto lo de la privacidad, te doy la razón, no lo miraba desde esa perspectiva, no obstante creo que hay formas de intimidar los espacios sin tanto pasillo. Personalmente no creo que actualmente permitan esta distribución en las escuelas de arquitectura. Y para la época que se construyeron, por no decir todos los edificios de viviendas de Don A.Coderch, sí considero que ese es un gran ejemplo de aprovechamiento del espacio, el mejor ejemplo, el edificio de la Marina Mercante en la Barceloneta.
A menos que hayan escenificado la foto con un coche de época, como mínimo la última de las fotos exteriores no es actual.
Coincido en que una planta de la esquina sería enriquecedora.
Sin embargo, la planta con el salón,cocina,comedor me parece interesante porque logra con una composición de mínimos disponer una privacidad progresiva y distintos espacios, como un recibidor, aun en las circunstancias para las que se proyecta.
Dos cuestiones:
¿Por que las fotos son en blanco y negro si son actuales?
¿Donde está la planta de la vivienda de la esquina, que creo que puede ser la mas interesante?
Porque la planta que poneis con este pasillo en C me horroriza. Encima estamos hablando de viviendas economicas.