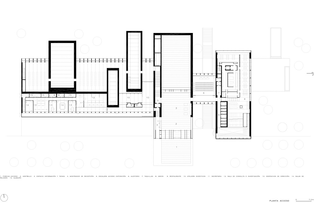
A museum for Soulages, the French painter of “light” who has inspired us so often was –and still is- a cherished dream. In the town of his birth. Soulages can be seen for what he is: his approach, his attitude and his involvement. Forail, boulevard and backbone for a topography that overlooks the surrounding countryside and the distant mountains, is to be his place.
Museum and landscape thus have a mutual feedback, merging into one, like the painter and his work, displaying a wealth of relationships where nothing can be removed, because everything that belongs to this new created world is inherent. Work, museum and landscape: Soulages and Rodez.



















































2 Comments
Excelente proyecto, es la quinta vez que lo publican, pero sigue siendo un excelente proyecto…
Cette œuvre architectonique est d’une grande sensibilité. Il est rare de trouver, aujourd’hui, un rapport plastique aussi fort entre un musée et l’œuvre qu’il abrite. Néanmoins, pour les salles abritant les œuvres peintes, je pense que la lumière latérale est trop importante et pas assez maîtrisée à l’aide des stores. Ce qui me fait dire qu’une lumière zénithale (donc réfléchie et non directe) pouvait apporter une réponse plus adéquate aux grands formats de Soulages.
Samuel Lacaille, architecte, Paris.