La casa MMMMMS se encuentra en las afueras de Camallera; en una urbanización de reciente construcción dispuesta en una ladera, con vistas al pueblo y, consecuentemente, muy visible desde éste.
En esta zona existe una normativa muy simple, que únicamente se refiere a cinco conceptos, pero muy restrictiva en cuanto a materiales de las fachadas (revestimiento de piedra rústico) y tipo de cubierta (de teja árabe envejecida, a dos aguas y pendiente de 25 º). La normativa persigue, de esta manera, conseguir que las edificaciones que se realicen en esta zona tengan un aire “rural” y se asemejen a las tradicionales masías catalanas de la zona.
La primera reflexión a estos puntos de partida radica en entender la masía no como un elemento aislado del paisaje sino como una edificación que tiene sentido cuando está ligada a una superficie (normalmente extensa) de paisaje agrícola y productivo. La masía pierde su sentido cuando existen 20, de un tamaño similar, en una superficie de no más de 10 hectáreas y, sobre todo, desligadas de un contexto “de producción”.
El proyecto, cumpliendo estrictamente la normativa, pretende desligarse de la imagen de masía catalana para “asociarse” veladamente a otro tipo de construcción típica de la zona, más comúnmente cercana a los núcleos urbanos y de un tamaño y densidad parecida a la resultante en esta zona: el almacén agrícola.
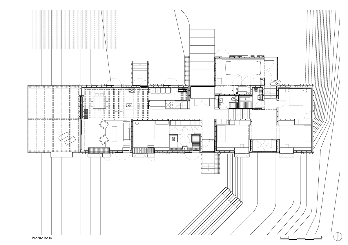
En este sentido, el proyecto de la Casa MMMMMS busca un tipo de calidad espacial también derivado de este tipo de construcciones, con un espacio a gran altura en el que se disponen otras piezas más pequeñas. Éstas ofrecen una mayor intimidad en su interior, generan unos espacios entre ellas en el límite con el exterior, y ayudan a iluminar transversalmente la casa y a poder ver el paisaje a través.
El espacio de circulación interior de la vivienda adquiere unas proporciones dignas de un exterior, con una mayor altura y con varios volúmenes que ofrecen ventanas a este espacio. La voluntad en este proyecto es la de desvanecer el límite entre interior y exterior o, visto de otra manera, conseguir las cualidades de un exterior en el interior de la vivienda, y viceversa, el confort de un interior en el exterior.
Siguiendo esta lógica, la sección de la casa, en el extremo con vistas al pueblo y a los Pirineos, continúa en el exterior mediante un porche a doble altura que, con el tiempo, esperamos sea cubierto por vegetación y persianas de madera que ofrecerán la sombra necesaria en los meses de verano.
La casa ha sido diseñada para conseguir un óptimo comportamiento energético. En los meses calurosos, la ventilación cruzada realizada a través de pequeñas aberturas en las fachadas y mediante los lucernarios orientados a norte, permiten, junto a la inercia térmica del edificio, una temperatura de confort que evita el uso del aire acondicionado. En invierno conseguimos el mismo confort gracias al aumento del aislamiento térmico en las fachadas y el uso de una caldera de biomasa conectada a los captadores solares en la cubierta.
El proyecto incluye un sistema de recogida de aguas pluviales a un depósito enterrado para su utilización tanto en el riego del jardín como en las aguas grises de la casa.
En la construcción de la Casa MMMMMS, todos los materiales utilizados provinieron de industrias locales.


































3 Comments
Muy muy bonito.
Muy interesante, y todo un detalle el esfuerzo por crear eso que Christopher Alexander llamaba “lugares ventana” (http://tinyurl.com/mcadq4v)