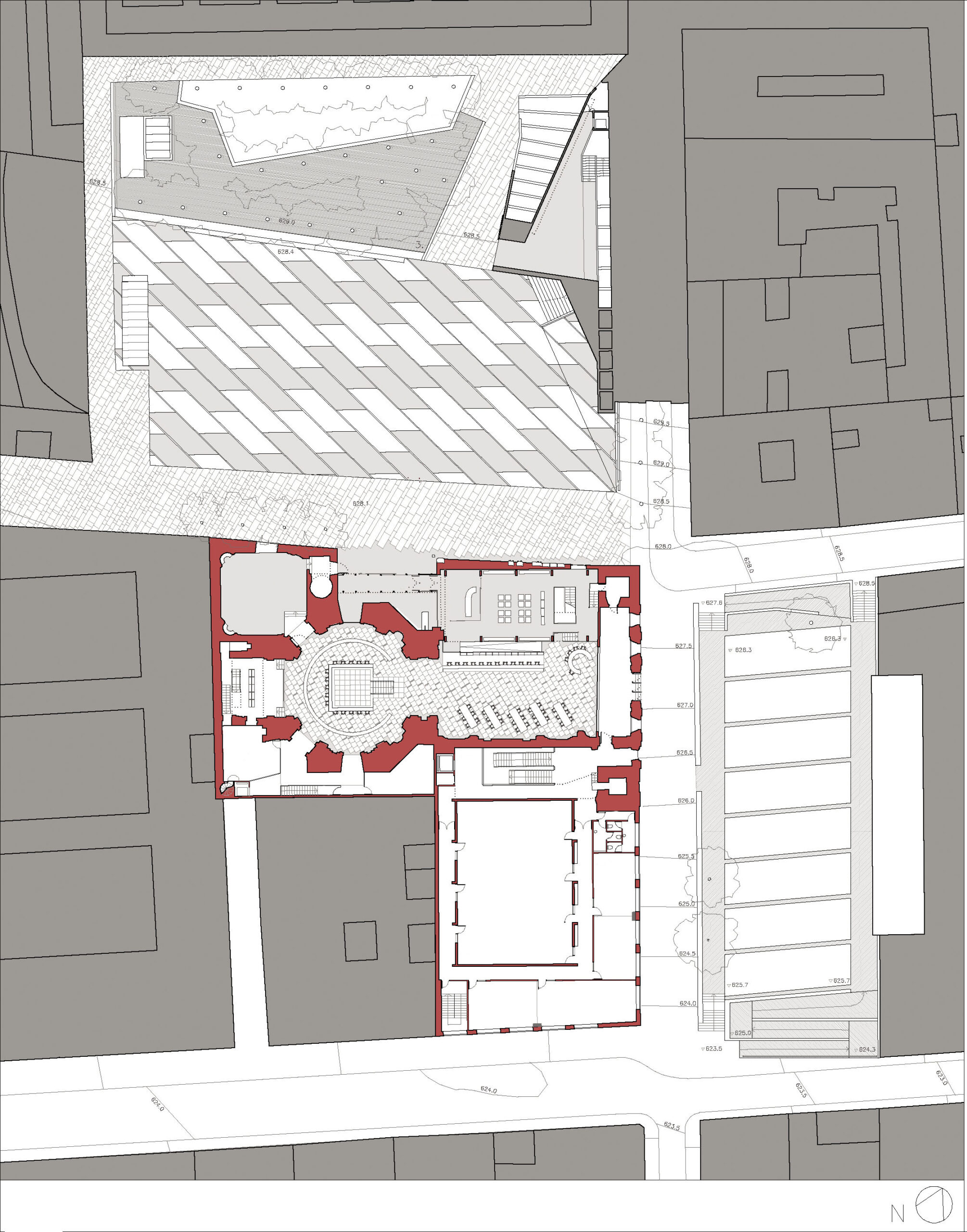
La intervención en las Escuelas Pías y entorno abarca diferentes escalas, desde la urbana, la del espacio público, hasta la del diseño de mobiliario interior. Presenta además diferentes sistemas constructivos e incluye distintos tipos de relación con lo construído, desde la nueva planta -bien que delimitada por los límites de un solar-, hasta la intervención. Se ha procurado, a pesar de esta complejidad, que el conjunto tuviese un carácter unitario. Para ello ha sido preciso establecer un principio de unidad más allá de las soluciones particulares y que podría calificarse como “carácter” de la intervención. Este viene además definido, al igual que en un juego de espejos, por las referencias recíprocas entre los diferentes “edificios” y partes del proyecto, tanto preexistentes como nuevas. Existe, en ese sentido, una particular incidencia expresiva de los materiales y texturas.
La presencia dominante de la ruina en un barrio de fuerte carácter, probablemente el más acusado dentro de la Ciudad, reforzado últimamente por una acumulación de substratos étnicos, hacen de Lavapiés y de las Ruinas de las Escuelas Pías, un lugar en el que no caben soluciones complacientes de “diseño”, sino que resulta preciso para proyectar sumergirse en la enorme carga de referencias que la historia ha ido reflejando.
La solución arquitectónica no debía por ello limitarse a aplicar “clichés” preconcebidos, sino expresarse a través de valores primarios, intemporales e indiscutibles, como el material, la construcción y la luz, además de tener en cuenta el carácter descarnado, brutal e imponente del lugar y de la ruina. Lavapiés es el último barrio “antiguo” de Madrid, en el que la vida lo ocupa todo, como en las calles de Nápoles o en el zoco de Damasco, en los que todavía las ruinas de los antiguos monumentos son literalmente aprovechadas, como en la Roma que retratan los grabados de Piranesi. Esta forma antigua y natural de relacionarse con el pasado contrasta con las convencionales contraposiciones entre “arquitectura antigua” y “arquitectura moderna”, en términos exclusivamente de “estilo”.
Las ruinas de las Escuelas Pías y el vacío de la Plaza de Agustín Lara, son además un testimonio vivo presente de los trágicos sucesos de la Guerra Civil en la Ciudad de Madrid, sucesos que han dejado huellas de una belleza trágica y desgarradora. Todo ello ha puesto de manifiesto la resistencia de los muros de la antigua iglesia, resultado de una construcción a la “romana” que permanecía oculta tras edulcorados estucos y recargado mobiliario litúrgico, pero que descarnada tras el incendio de 1936, ha soportado las inclemencias tiempo y del abandono durante más de sesenta años.
La unidad de “carácter” del proyecto no contradice la multiplicidad de sus espacios y sistemas constructivos. Existe sin embargo una secuencia de recorridos internos y externos que superan los límites entre edificios, mediante la cual se articulan todos los espacios. Estos se relacionan entre sí por analogía y contraste.
El proyecto pretende además establecer un diálogo entre algunos elementos de arquitectura moderna y los grandes temas del pasado mediante citas y alusiones diversas, así como dar cuenta de otras aportaciones del arte moderno al margen de la arquitectura y que superan el ámbito propiamente lingüístico pero no el conceptual. Vale ésto último sobre todo para la implantación del mobiliario de la Biblioteca situado a modo de “instalación” en el espacio reconstruido.





















1 Comment