El projecte s’emplaça en l’espai intersticial existent entre el barri vell de la ciutat de Girona i la peculiar zona coneguda com la muntanya de Les Pedreres. Es planteja la implantació del “Parc de les Pedreres” per tal de sanejar la muntanya, en estat de deteriorament. Pertanyent al nou parc, es construeix l’escola d’art, peça clau per a l’enllaç entre la zona urbana definida pel barri vell-campus universitari i la zona forestal de Les Gavarres.
“… en un tres i no res em trobava a les Pedreres, enmig d’aquelles enormes esvorancs del terreny que semblaven catedrals a mig fer, amb les parets daurades i les voltes de cel blau. Contemplava els picapedrers que treballaven pacients a l’ombra d’unes acàcies, com músics d’una orquestra que desvetllessin amb estranys instruments la rítmica sonoritat de la muntanya. Veia la pedra llisa i grisa, tallada en peces rectangulars, i em sorprenia de la rara perfecció que assolien aquells homes incansables. Després baixava a la ciutat a comprovar que sí, que tot ella havia estat bastida amb aquella pedra.” – Narcís-Jordi, 1982
El Parc de les Pedreres
El barri de les Pedreres s’explica en paral·lel al naixement de la ciutat de Girona, i es podria considerar l’inici d’aquesta. La part més elevada de la muntanya es va convertir en el punt de mira i de defensa estratègica de la ciutat. Per contra, la part baixa va aportar la pedra necessària per a construir la ciutat. Actualment, però, es comptabilitzen cap a 150 persones vivint en terrenys públics en situació de precarietat. El procés d’ocupació il·legal va anar en paral·lel a l’abandó d’aquest indret per part de la gent que hi anava a passejar.
Es pot definir l’àmbit com a espai periurbà, intersticial o de transició entre les àrees urbanes i els ambients agrícoles o forestals, en els quals el fet urbà s’hi acostuma a fer evident però a l’hora hi resisteixen encara elements vinculats al sector primari. Davant d’aquestes situacions, l’escenari resultant acostuma a ser un espai a mig camí entre ambdues realitats, en el qual l’entorn urbà ens mostra la seva cara menys amable en forma de perímetres degradats. I tanmateix, el paisatge forestal evidencia un caràcter residual o d’espai a l’expectativa. És però, la presència de les pedreres el que marca el tret distintiu d’aquesta zona, la qual, a més, li deu el nom. Aquestes havien estat espais amb una gran activitat i dinamisme, que donaven feina a un gran nombre de persones. Amb l’abandonament d’aquestes també va desaparèixer una forma de vida i un conjunt d’oficis.
Durant un procés analític s’ha observat una peculiaritat paisatgística, i és la seva morfologia mitjançant estrats. La zona, més que pertànyer en un moment precís en el temps, és el resultat híbrid de totes les cicatrius i estrats que han anat deixant les diferents civilitzacions. La seva identitat és fràgil i temporal, sotmesa a la expressió de les qualitats del progrés i la evolució. Però aquest territori no demana el predomini d’una de les identitats, si no afegir-ne una de nova, que interactuï amb les altres i les hi doni coherència. Tot i això, s’ha d’actuar sobre les altres capes donat el seu estat de deteriorament. S’implanta “El Parc de Les Pedreres” com a una nova identitat, sense deixar de banda tots els estrats que s’han anat implantant durant la història. Entenent-los, adaptant-se a ells i donant-los-hi valor.
Per tal d’iniciar l’actuació es proposen 3 accions concretes i extreure tot el potencial que té la zona tant com a porta a les Gavarres com a parc periurbà de la ciutat de Girona. La primera és RECUPERAR el territori, concentrant-se en la degradació dels espais habitats. ENTRAR mitjançant el condicionament de la banda oest de la muntanya llindant amb la ciutat. ESTRUCTURAR els camins existents i consolidar els accessos al parc. Per tal de buscar un focus d’actuació s’aprofita l’itinerari existent anomenat “Ruta de la Pedra de Girona”. Aquesta ruta inicia al centre de la ciutat i finalitza a la Torre d’Alfons XII. És, per tant, un sistema amb potencial de connectar la ciutat amb el parc, encara que necessita però, un element dinamitzador.
La ruta transcorre a través d’una sèrie de 7 unitats de paisatge, deixant 3 a l’àmbit urbà i 3 a l’àmbit rural. La peça central, a mig camí d’una banda i l’altra, es vol tractar i potenciar com a porta al nou Parc de Les Pedreres i connector entre aquests dos mons. Degut a la evident relació de la parcel·la amb el barri vell i el campus universitari, es tria un equipament relacionat amb l’àmbit cultural i educatiu. I, per tal de solucionar aquesta unitat paisatgística com a hibridació entre la ciutat i el camp es vol potenciar el valor de l’espai públic amb un tractament paisatgístic que reestructuri la Ruta de la Pedra de Girona com a Parc de les Pedreres.
L’Escola d’Art
L’Itinerari de la Pedra de Girona pateix una certa desconnexió a l’hora de comunicar la muralla amb l’antic camí de la Ferradura. Es proposa realitzar una connexió més directe a través d’una passarel·la que surti de la muralla i arribi directe al terreny, per després enllaçar amb el camí de la Ferradura. Aquesta peça afegida és un petita acció molt concreta que dota de significat a tot el projecte global.
L’elevada presència d’equipaments culturals i educatius a la zona fa possible l’aprofitament d’alguns d’aquests per part de la nova Facultat de Belles Arts. D’aquesta manera l’edifici es pot centrar més en els espais i instal·lacions pròpies d’un equipament d’aquest tipus i prescindir d’altres espais a priori comuns per a tot el campus universitari com serien la biblioteca, aules d’informàtica, etc. L’ús d’aquests espais pels estudiants provoca sinergies entre l’equipament i l’escola, la qual cosa enriqueix tant als equipaments, que els dinamitza, com a l’escola i l’estudiant.
El solar es caracteritza per una gran complexitat. El fet més singular que marca la identitat d’aquest lloc és la presència d’una antiga pedrera, situada a la part baixa del terreny. Aquesta pedrera, tant a la vora de la muralla crea una espècie de diàleg que recorda el passat i l’origen d’aquella part de la ciutat. La morfologia d’un terreny accidentat origina la presència de vàries terrasses naturals amb vistes privilegiades de tota la ciutat. La part baixa queda a cota de carrer i actualment s’utilitza d’aparcament.
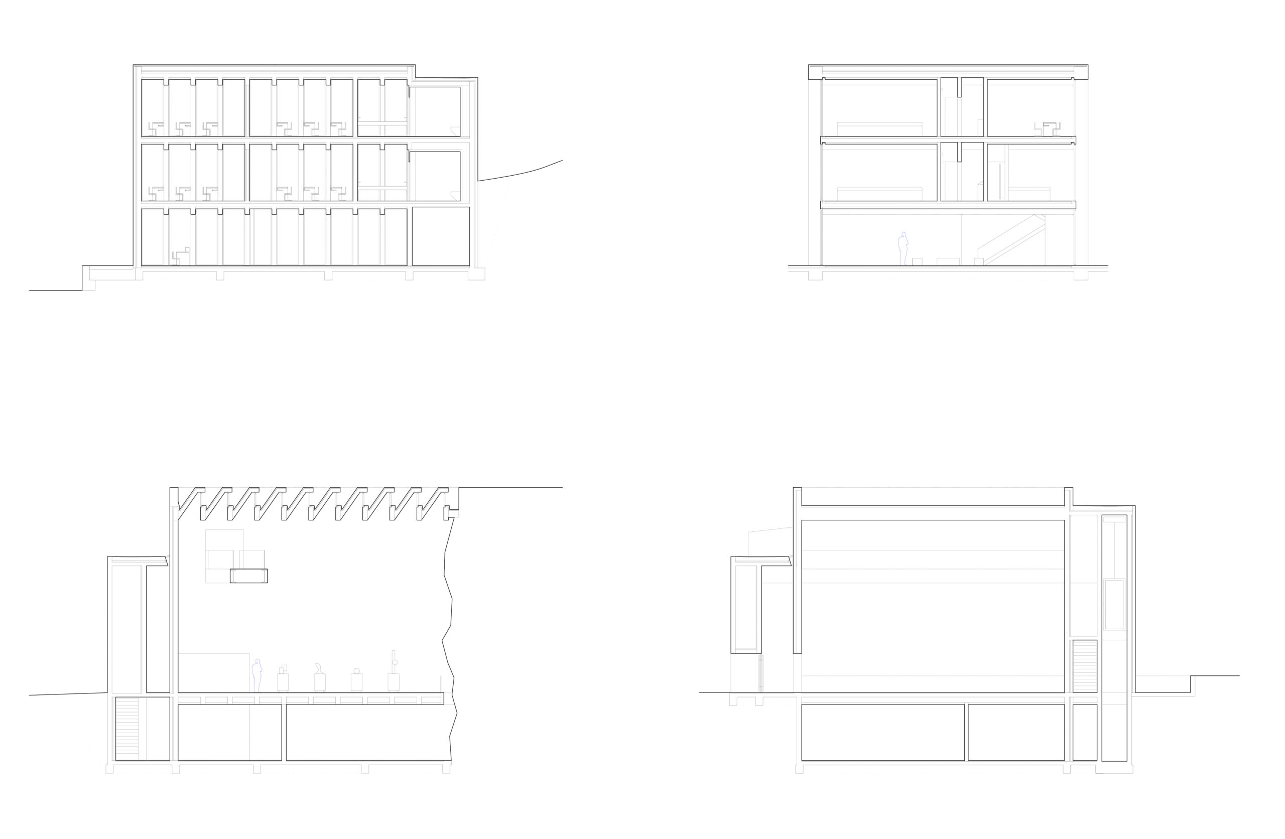
L’edifici s’estructura en tres parts o capes. La primera de les capes és el propi edifici de la Facultat de Belles Arts, que funciona de forma autònoma i limita la part baixa del solar a mode de sòcol. La segona capa és el recorregut, pertanyent a la Ruta de la Pedra de Girona. Aquest és de funcionament independent, tot i que interacciona amb l’edifici per afavorir una certa integritat. La última capa és l’espai públic, que a través d’un procés de reactivació dóna cohesió a tot el projecte.
El programa es descompon en tres grups: l’aulari i despatxos (zones netes), sales d’exposicions, i tallers (zones brutes). L’aulari es col·loca a la part més baixa del terreny i més pròxima al campus universitari. Les sales d’exposicions fan de ròtula per arribar als tallers, col·locats escalonadament en el terreny. Les circulacions es conformen com una peça opaca a l’exterior i fosca, que recorda als interiors de les pedreres, deixant només una escletxa al forjat superior, que acompanya a l’usuari per l’edifici. Contrasten amb les peces de programa, il·luminades per la llum natural, i on cada sala rep la llum idònia per a l’ús que allotja.
Els dos materials principals presents a l’edifici són el formigó i l’acer. Es planteja l’ús dels materials sense revestir ni pintar, en tot moment el formigó és formigó i l’acer és acer. Com a conseqüència a la utilització dels materials en brut, el temps s’incorpora com un nou material. L’acer i el formigó no són aliens al pas del temps si no que l’accepten i l’incorporen a ells com a pàtina. La naturalesa canvia constantment d’estat i no té ni principi ni fi. Els materials interactuen amb els seus entorns i muten a conseqüència dels agents climàtics.
El formigó de les parets, amb un acabat aspre, és resistent i perdurable. Els usuaris faran un ús agressiu de l’edifici, i aquest respon a aquest ús de forma directe. El formigó incorpora un clar caràcter de gravetat i claredat estructural i es constitueix com una pedra artificial esculpida, a mode de gran escultura, que recorda a les antigues pedreres fragmentades.









































3 Comments
Moltes gràcies Víctor! Espero que tot et vagi molt bé!
I Guillem, si, tot i que està tot calculat, és un dels punts més febles del projecte. N’hi ha molts més. Les càrregues d’aquestes jàsseres que comentes estan recollides per dues jàsseres (de més de 1m de cantell) que acompanyen la passarel·la. Ho pots veure a la secció. Sóc dels que pensen que, a part de que les coses s’han d’aguantar, també ha de semblar que s’aguanten, i aquí vaig fallar. Tota la raó del món.
Maravillosa pasarela que atraviesa tantas jácenas como se le pongan por delante.
Felicitats Carles! Bona feina!