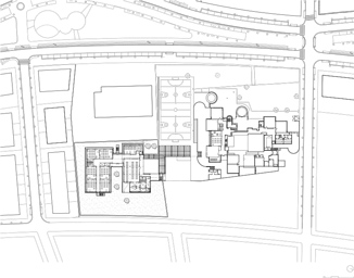
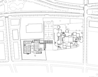
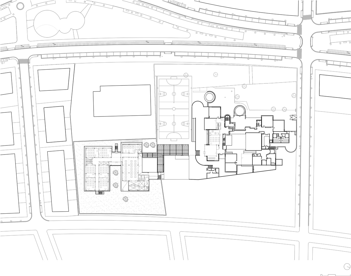
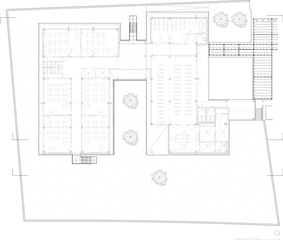
El encargo consistía en añadir seis aulas, un comedor y una biblioteca a la escuela existente, pro-yectada a mediados de los setenta por MBM (Martorell Bohigas Mackay). Nuestro objetivo es diseñar hábitats de aprendizaje interiores y al aire libre, que regalen experiencias estimulantes, ricas y compartidas a los niños que la pueblan. Las aulas se transforman en un soporte que ellos completan con sus manos. Los pasillos se convierten en espacios de juego. Los patios se envuelven en porches de escala infantil. Y una pérgola alta y ligera une la nueva construcción con la existente, una sombra donde los niños juegan en verano y se resguardan en los días de lluvia.
El Departament d’Ensenyament nos presentó una organización en planta que nuestro proyecto debía seguir. Tenia aulas con distintas orientaciones, que presentaban dificultades para su correcta iluminación. Para solventarlo, exploramos un edifico solar, con un límite poroso que llevaba luz agradable y las condiciones climáticas óptimas al interior.
La escuela de MBM está catalogada en el Patrimonio Arquitectónico local. El cliente sugirió que usásemos literalmente los mismos materiales y piezas del edificio existente. Éstos han dejado de producirse. Para facilitar y economizar la ejecución, decidimos trabajar con recursos estándar que tuviésemos a mano. En lugar de lamas, usamos bloques de hormigón.
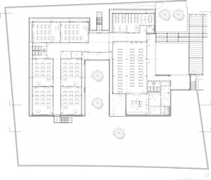
Una membrana dura, desnuda y translúcida de bloques crea condiciones de comfort óptimas mediante variaciones sencillas, configurando patios, porches, galerías y velos de intimidad. Este grosor climático no solo negocia con los rayos del sol, sino con todos los posibles agentes atmosféricos, para que los niños aprendan de cada cambio de tiempo. La escuela es un edificio pasivo poroso. Se basa no en la conservación de energía, sino en un intercambio sabio de la misma, más adecuado a los ciclos estacionales mediterráneos.






























2 Comments
quien es el estructurista ?
que pena no haber colocado las ventanas practicables en vertical, hubiera sido un diálogo interesante con la fachada