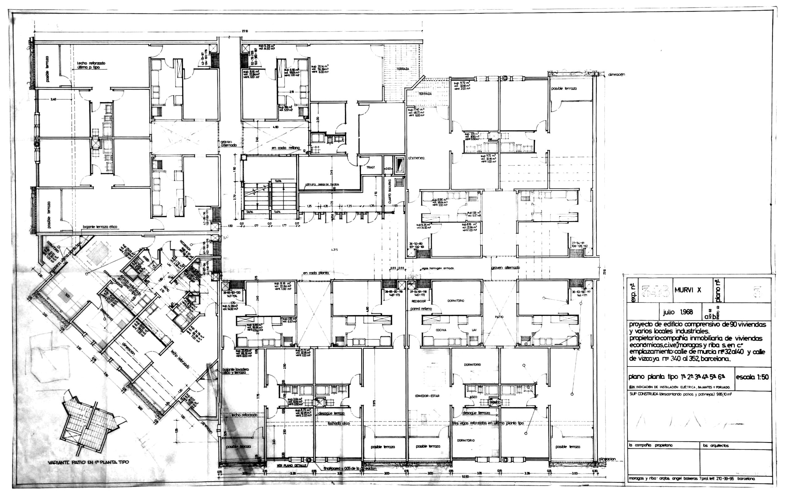
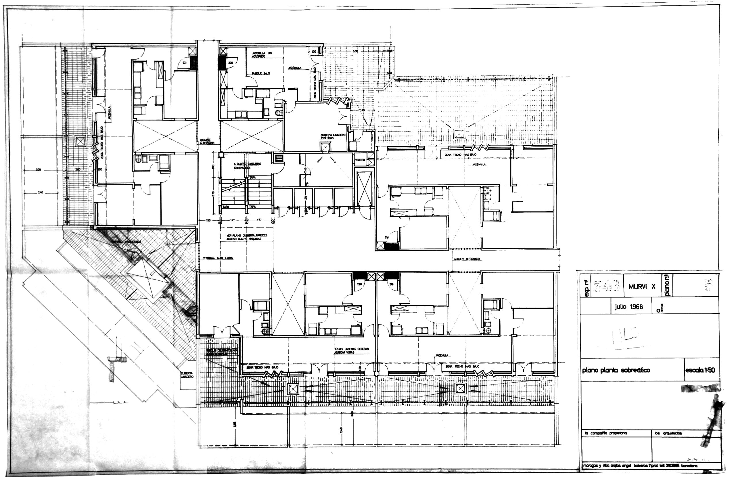
Las viviendas en la calle Biscaia (1968-72) son un buen ejemplo de la última arquitectura residencial de Antoni de Moragas y resumen buena parte de los temas e intereses principales del arquitecto. El proyecto consiste en un edificio en esquina de 22 metros de profundidad y 8 plantas de altura, resuelto con una estructura de muros de carga que descansan sobre pórticos de hormigón armado. Como es recurrente en toda su arquitectura residencial, un sólo núcleo de circulaciones y un gran vestíbulo de acceso resuelven las noventa viviendas del conjunto. Su tipología residencial responde a una variante un poco desfigurada de su habitual esquema de piezas o salas encadenadas, enfiladas por un corredor de acceso; una tipología que tiene en las viviendas de la calle Gomis, Gran Vía o Brusi algunos de sus modelos ejemplares. La fachada se organiza de manera tripartita: el cuerpo central del edificio se levanta sobre un basamento en sombra, con la planta baja reculada, y se remata por un coronamiento de viviendas en el ático. Todos los elementos y soluciones que la configuran contribuyen a reflejar su razón constructiva y funcional: el subrayado de los forjados, los aparejos del ladrillo, los antepechos de cerámica, las soluciones en cremallera de las esquinas o sus connotadas jácenas en voladizo, que como atlantes de hormigón parecen sostener el peso del edificio.
El vestíbulo por la calle Biscaia es el único acceso del conjunto y sin duda el episodio más emotivo de todo el proyecto. Se trata de un espacio en forma de T que canaliza las circulaciones de la calle a la casa, como si fuera el apeadero de una estación de tren. Viene trazado con unas proporciones regulares, sobrias, en términos espaciales pero ricas en soluciones materiales. Las paredes están revestidas con una cerámica esmaltada, formando un zigzag de formas afiladas y colores vibrantes, (las percibimos verdes cuando entramos al edificio y amarillas al salir). El techo subraya el esfuerzo de la estructura y el suelo por el contrario -hoy pavimentado por un gres anodinooriginalmente era de moqueta y transmitía domesticidad y reposo. El espacio se completa por distintos elementos que el propio Moragas diseñó y que en su arquitectura contribuyen a construir la atmosfera del lugar: lámparas de pie, mobiliario de salón, cantoneras, manetas industriales, barandillas, casilleros o buzones. Todo el conjunto del vestíbulo recrea una atmosfera de espacio exterior, a medio camino entre un lugar de tránsito y de reposo como en los vestíbulos de las estaciones de trenes o las suntuosas entradas de los hoteles de principios de siglo.
Este vestíbulo muestra de forma inteligible el principal interés de la arquitectura de Moragas: la búsqueda de un espacio regular, prismático, de trazado geométrico pero al mismo tiempo rico y sugerente en sus superficies, saturado de detalle, rebosante. Uno tiene la sensación que, a diferencia de otros arquitectos modernos, Moragasproyecta desde la epidermis de la arquitectura, desde la textura de sus superficies, con una confianza absoluta en las soluciones materiales, en el detalle, y desde allí, va cualificando poco a poco el resto del espacio. De la superficie al volumen, del revestimiento al espacio, del material a la forma. Acostumbrados a esa gran tradición de la arquitectura moderna basada en una confianza absoluta en el espacio: diáfano, fluido, saciado de perspectivas, dobles alturas o promenades discursivas; la arquitectura de Moragas en cambio, aparece sosegada y tenue, poco agitada, representante de esa otra tradición moderna más material, háptica, sensitiva y profunda. Su principal vocación, -su acento-, no está tanto en los recursos espaciales que el proyecto pone en marcha como en el valor de sus detalles, en el trabajo de sus revestimientos, en el material en estado puro. El ojo del visitante no se detiene pues, en las proporciones del espacio o en sus mecanismos formales como en la calidad de sus límites, en la rugosidad de su textura, en sus acabados, en el material, el último responsable a quien Moragas confía la construcción del espacio.





















2 Comments
Vestíbulos inconfundibles: baldosas, ladrillos, lamparas, buzones. Impaciente de ver próximas entregas!
Celebro que HIC faci aquesta sèrie sobre Antoni de Moragas (amb plànols originals i molt bones fotos!). Gran arquitecte i tanmateix desconegut per a molts…
Celebro que HIC haga esta serie sobre Antoni de Moragas (con planos originales y muy buenas fotos!). Gran arquitecto y sin embargo desconocido para muchos…