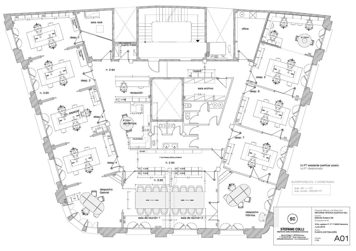
Desde el pasado mes de Julio la editorial Gustavo Gili se ha trasladado en unas nuevas oficinas en un piso de la Via Laietana. El piso se alquiló completamente equipado y listo para su uso, pero con carencias a nivel de carácter, no tenia ninguna identidad.
Se decidió junto al cliente optimizar los recursos disponibles y el presupuesto para diseñar un sistema de mobiliario ad hoc y pintar todo en un único color, nada mas.
Es un proyecto de equipamiento; decoración quizás, no me importaría definirlo así.
El mobiliario se basa en dos tipos de mesas realizadas en contrachapado de abedul revestido de linoleum, hay islas de trabajo para dos puestos y mesas corridas a pared ambas equipadas con estantes superiores.
Los puestos de trabajo se complementan con librerías de varios tamaños diseñadas con estructuras de redondos de hierro y estantes obtenidos cortando perfiles U Glass estándar.
El proyecto se limita a añadir algo de valor al lugar; algo de historia, la de la casa.
No convenía un espacio moderno, sino un espacio de siempre.































3 Comments
Muy interesante la estantería de U Glass y los detalles del acero. Veo débil el apoyo al suelo con la tuerca (M5?) soldada por el ladito… Con el peso que algún día deberá soportar. En mi opinión mejores remedios para poder regular y que no cojee.
Me encantan los detalles. Felicidades gran proyecto
Absolutamente imprescindibles las fotos macro de tuercas, cantos de madera, perfiles metálicos y perchas…