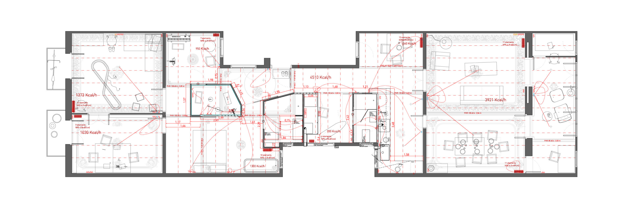
La parte más conflictiva, de este piso del ensanche de Barcelona, desde el punto de vista lumínico y de organización es claramente su centro. Las zonas en contacto con los patios interiores y el núcleo de comunicación vertical. Las partes que están en contacto con las fachadas tienen ya las condiciones ideales para funcionar por sí mismas, y por lo tanto no hay que hacer casi nada.
Así, que de entrada se plantea una doble aproximación al proyecto. Convertir el conflicto del centro en un aliciente, en una zona, que no sólo funcione sino que sea una zona apasionante y excitante.
Y, proyectar el “hacer casi nada” en las otras partes del piso.
La parte central se aborda desde la eliminación de una excesiva fragmentación y por la implementación de sistemas de habitabilidad más contemporáneos donde las circulaciones y los programas estáticos se mezclen de manera natural y evitar así espacios únicamente de paso.
El centro se transforma en un paisaje que contiene 3 cajas cerradas con un box de música, un baño- lavadero y un baño-cocina. Un paisaje donde los elementos de carácter móvil se van disponiendo de manera libre y no jerárquica. Elementos que se utilizan puntualmente y que conviven con otros elementos en este contexto común. Un paisaje donde los límites no estan tan definidos, y se absorven dinámicas contemporáneas de carácter más difuso y entrelazado. Un paisaje que soporte las múltiples variaciones y transformaciones a la misma velocidad que somos capaces de hacerlas en contextos más urbanos.
Al mismo tiempo, la nueva organización enfatiza la continuidad espacial de los pavimentos y de los falsos techos, como elemento de soporte básico de este paisaje, solo delimitado por las trazas de las antiguas habitaciones.
Este paisaje también nos da una cierta tranquilidad en no hipotecar programáticamente el piso, y nos permite el lujo de no saber como vamos a vivir en los próximos 50 años. Un soporte de indefinición forzada para ser capaz de absorber el máximo de actividades variables, como a día de hoy son la producción de guiones, de tejidos, de ilustraciones, de comidas, de música, de dibujos…. Actividades imposibles de aislar, y que se encadenan de manera natural las unas con las otras. Una fábrica doméstica de creación.
La otra parte, se concentra en el esfuerzo de la invisibilidad de “hacer casi nada”. En algunas estratégias de eficiencia económica. En aprovechar las estructura de las cajas de madera para concentrar todos los pasos de las instalaciones. En mantener carpinterias y moverlas de sitio. En reciclar los ladrillos existentes para nuevos tabiques. En climatizar lo indispensable. En gestionar la galeria como espacio intermedio de regulación térmica. En definitiva, en comprimir espacialmente el número máximo de capas que intervienen en la reforma para regalar la indefinición necesaria para que se convierta realmente en un nuevo paisaje doméstico.




















7 Comments
Me gusta mucho como os habéis tirado a resolver el espacio central, generando espacios continuos que se apoyan unos en otros. También el juego de pavimentos es muy apetecible, aunque me da algo de miedo que sólo haya una pequeña habitación en blanco para ‘escapar’ de ellos dentro del piso. Me parece algo digno de estar en HIC, por lo que nos puede hacer pensar a todos.
También vengo viendo en varias publicaciones comentarios muy a la altura del mismo ‘paso por encima del de·a·lao’ que se respira, al menos, en mi escuela de arquitectura. Se puede estar profundamente en desacuerdo y aún así hacer una crítica constructiva que a lo mejor aporte algo a alguien.
Por suerte, hoy en día los paracetamoles los venden sin receta en las farmacias, y no provocan malestar al estómago.
Una mezcla de estilos interesante
Me hubiera gustado ver fotos o planos del estado inicial. Y sí, estoy de acuerdo con P, un poco dolor de cabeza sí da, pero tiene cosas interesantes también.
Pues yo lo he entendido a la primera
Buff… qué dolor de cabeza…
Menos ironia y + al grano por favor. Al final puede ser que este de acuerdo con lo que quieres decir. Pero como no dices claramente lo que quieres decir, no tengo manera de saber si lo que pienso que quieres decir se corresponde con lo que pienso. Ves? Tanto rollo se hubiese ahorrado si no quisieras ser tan graciosillo.
Totalmente deacuerdo p!