El reto es encontrar el equilibrio entre lo existente y lo nuevo. Recuperar y revalorizar los atributos del piso original desechando aquello que emborrona la mirada y molesta la percepción del espacio que se desea amplio y diáfano.
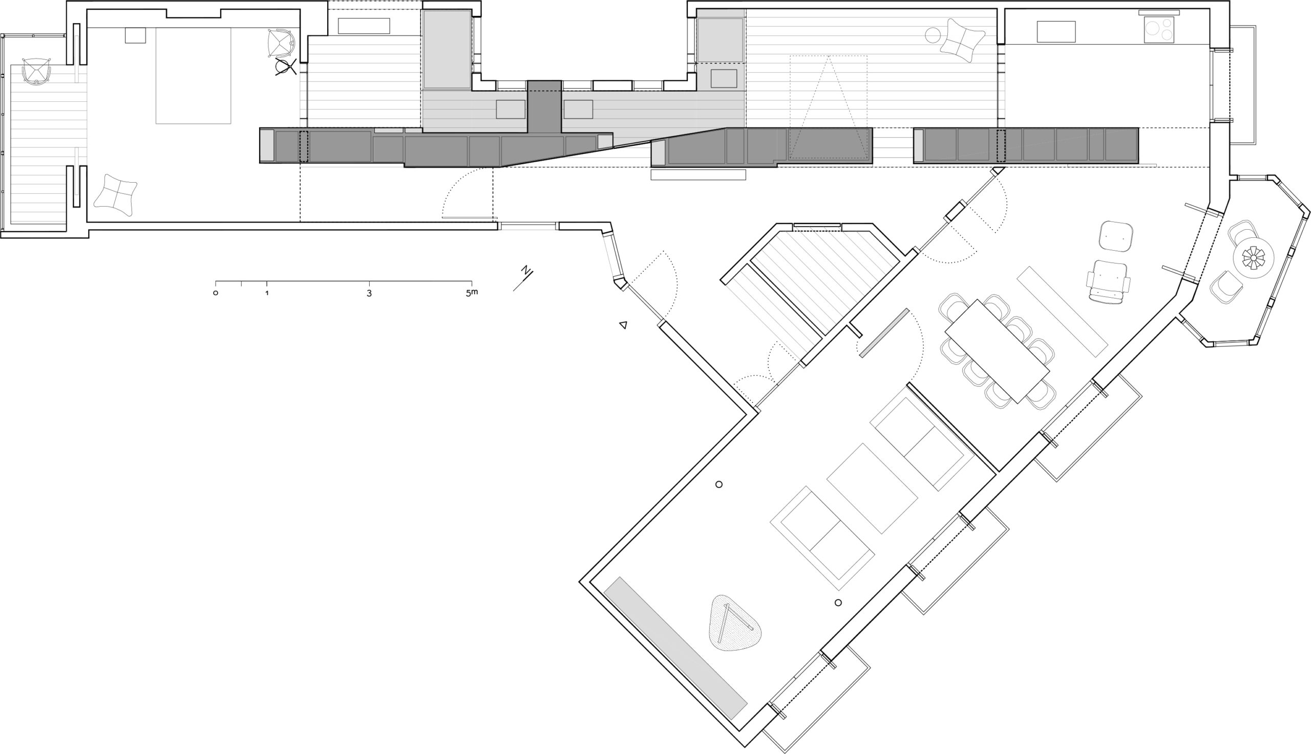
El proyecto desdibuja el pasillo central repleto de puertas y distribuidores, elemento éste característico de los pisos del Ensanche, para unificar al máximo todo el espacio alrededor de un mueble vertebrador que hace las veces de biombo entre lo público y lo privado. Simultáneamente esta nueva espina dorsal acomoda el almacenamiento del piso al tiempo que organiza y distribuye la planta en tres zonas diferenciadas.
De un lado encontramos la zona pública, con salón, comedor y biblioteca, todos ellos conectados entre si junto a la fachada principal del edificio gozando de las mejores vistas y orientación. En segundo término tenemos los espacios de servicio, con cocina, office, dormitorio de invitados y aseo de cortesía, éste con un funcional doble acceso: ya desde la entrada principal, ya desde la habitación polivalente. Por último pasamos al dormitorio principal que se desarrolla en una espiral de privacidad desde la entrada. Comienza con el vestidor, continua por el estudio ubicado en la galería de la fachada posterior, sigue la cama de matrimonio adosada al nuevo cabezal y concluye en el baño abierto a la luz natural del patio interior con una cabina cerrada para el inodoro.
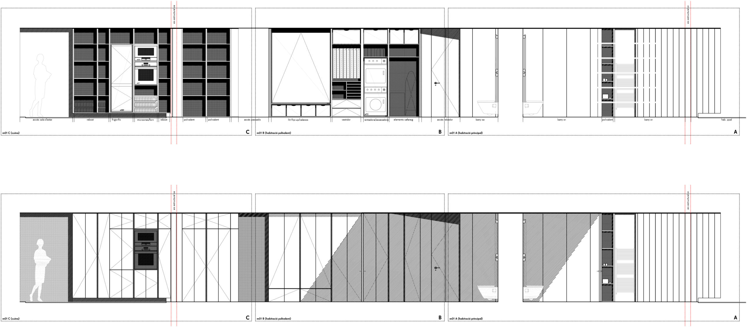
La propuesta recupera y enaltece tanto mosaicos originales modernistas como techos altos de molduras de yeso. El proyecto enmarca cada mosaico restaurado rodeándolo mediante parquet de roble natural a modo de alfombras de colores engarzadas en el pavimento. De esta base perimetral de madera, por donde se han pasado todas las instalaciones de calefacción, agua y electricidad, surge y se levanta el mueble central como una gran escultura que se quiebra y retranquea buscando alineaciones precisas con el parquet y volando sin pisar en ningún momento los mosaicos. Cada gesto pretende activar el espacio adyacente al mueble central, dotándolo de usos y actividad para evitar la pérdida de espacio. Ya no importa la pieza como volumen, sino el espacio vacío que se forma entre el mueble y las paredes medianeras del perímetro del piso.
El mueble crece sólo hasta 2,34m de altura en lo que entendemos como la cota más doméstica, íntima y humana por debajo de los monumentales techos de inicios del siglo XX y dejando así que la luz fluya entre las estancias por encima del volumen central. Es justo en este momento, entre techos y suelos, cuando se interpone la verdadera clave del proyecto: una finísima chapa de hierro negro que remata el volumen de roble cerrando y acotando el espacio para permitir la nueva distribución al margen del ritmo preestablecido de alfombras y cornisas. Así el espacio se pliega, se comprime, se abre y dilata en función de las demandas del proyecto. Ya no es necesario recurrir a puertas o paredes ya que el usuario percibe y comprende las tres zonas de la casa a medida que recorre el espacio alrededor del mueble central dejándose llevar por el juego de niveles y quiebros que ofrece la chapa de hierro y el volumen de madera. Así el traspaso entre las áreas públicas y las habitaciones o el espacio servidor siempre se produce a través de un umbral bajo el hierro. O igualmente, los aseos y duchas se concentran bajo la chapa adosándose al único patio interior que sirve para iluminar y ventilar de forma natural.
De la misma manera que el mueble central concentra todos los armarios y el espacio de almacenamiento que requiere el proyecto, incluyendo una cama plegable, la ropa blanca, la columna de hornos, la lavadora y secadora o la nevera, es la fina capa de hierro la que permite y soporta cada una de las puertas y mamparas que solicita la nueva distribución. Puertas correderas de cristal y madera, pivotantes a modo de puertas o mamparas para las duchas así como un gran espejo en la zona del vestidor, la chapa permite todos los herrajes necesarios así como el soporte de los cristales hasta las molduras, evitando así distorsiones entre aquello que es original con lo que es estrictamente nuevo.
Concentrar la intervención en un único volumen continuo a modo de espina dorsal que atraviesa la planta, nos permite liberar completamente el perímetro. Es precisamente esa yuxtaposición de células regulares, repletas de mosaicos coloridos, molduras de escayola y puertas exuberantes labradas en pino y vitrales, el valor flexible y polivalente de los pisos del Ensanche. Esa característica que permite adaptar la distribución a lo largo del tiempo en función de las necesidades vitales. Así la casa se ofrece como lienzo en blanco para disponer fácilmente los muebles, los cuadros, las obras de arte, los objetos y recuerdos familiares acumulados a lo largo de toda una vida, que se podrán organizar e intercambiar libremente sin estar cohibidos y forzados por el nuevo proyecto.
Es un piso modernista del Ensanche, donde los valores originales se recuperan y se ensalzan a lo largo de una pieza nueva que debe ser tan singular, sorprendente e innovadora como discreta, flexible y respetuosa al servicio de las personas y propiciando la vida que debe ocurrir junto a ella. Así el proyecto en cierta manera se explica como una galería de arte, cuya finalidad primordial es ofrecer el mejor marco posible donde exponer las obras pero a la vez su objeto es propiciar la mejor experiencia a sus visitantes.

































10 Comments
El proyecto es espléndido, todo muy bien resuelto y con una gran sutileza en los detalles, sobretodo el de la chapa metálica que acompaña el mueble central. Lo único que no me acaba de encajar…¿sólo 2 dormitorios, uno de los cuales de invitados? en 172m2? Biblioteca, office, comedor, estar…
Cuando se trabaja bien como vosotros lo hacéis en todos vuestros proyectos, el resultado se ve!!! Seguid así. Este es el camino.
Espectacular. Quina elegància i quin saber fer. Ja m’agradaria a mi poder-me’n fer un com aquest!
de lo mejor que he visto en reformas de pisos del Eixample. Enhorabuena!!!
Es un placer veros trabajar; el gusto, la dedicación, la intención, la atención hasta el más mínimo detalle. Claro, así de agradecidos salen los proyectos.
Muy buen proyecto ! Felicidades y adelante !
Hay proyectos que emocionan y éste es uno de ellos.
Enhorabona!
Sencillamente magnifica. ENHORABUENA