El primer paso en la conversión de la fábrica textil del siglo XIX fue el diseño de un plan maestro espacial. El desafío fue la elaboración de una imagen global fuerte con la libertad necesaria para permitir la interpretación más allá, mediante aquello que se encontraba en la propia edificación y los programas de construcción conocidos.
En una segunda fase, dentro del concepto general, se mejoró con la implementación completa en el casco de los edificios y espacios exteriores proyectados. Simultáneamente la ejecución de estos están contenidos en una tercera etapa, espacios de la vivienda y la oficina diseñada.
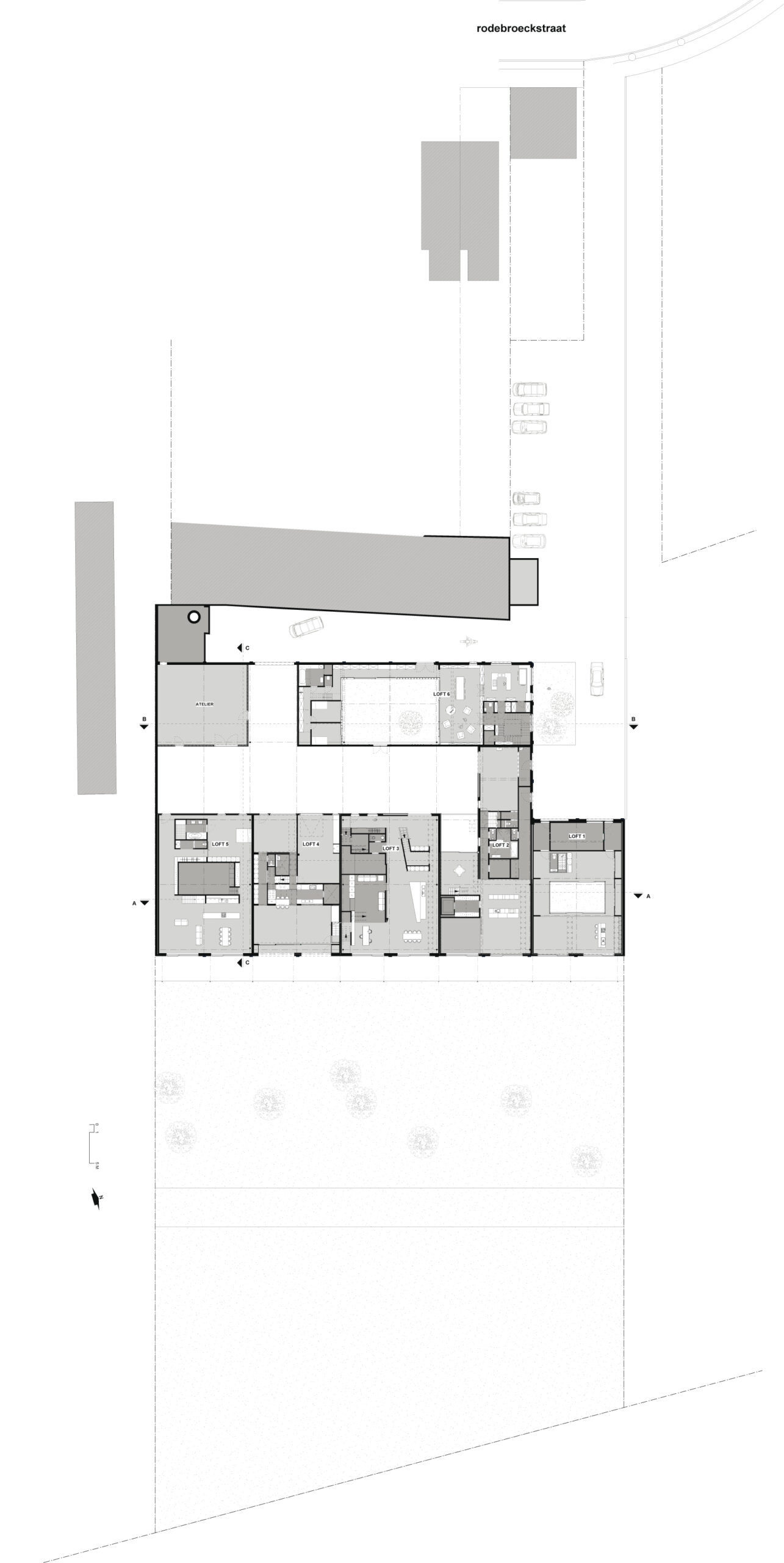
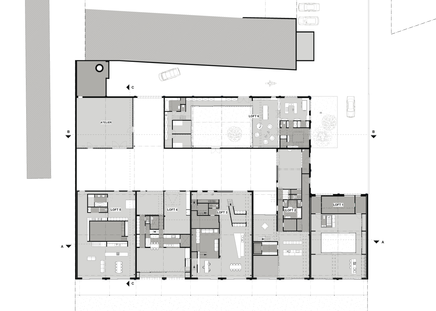
El resultado final es una mezcla de 6 apartamentos, 1 estudio y 2 oficinas. El espacio exterior común actúa como un elemento de enlace y como un sistema circulatorio hacia y entre los diversos componentes. Detrás de un sistema uniforme, fachada orquestada como una de las principales variedades de viviendas ocultas: la variación en la escala, la variación de las generaciones y los programas, la variación en el concepto espacial y la variación en la participación en las zonas exteriores comunes.
El uso de materiales y un juego consistente visual de la estructura de celosía retenió el rudimentario concepto industrial con carácter de la fábrica. Los azulejos fueron recuperados, la madera tratada térmicamente se utilizó para el revestimiento y el paso, vigas de aluminio sobre las aberturas en la masonería.














1 Comment
wonderful!