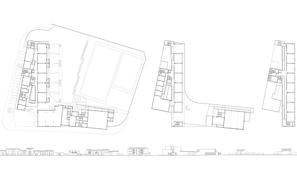
En el lugar conviven escalas y usos diversos: por un lado, viviendas unifamiliares entre medianeras, pequeñas y de poca altura y por el otro, equipamientos que el planeamiento está concentrando en esta zona.
El edificio se sitúa próximo a las edificaciones del camino buscando la relación con las viviendas y fachadas vecinas, y poniendo especial hincapié en la ordenación volumétrica para resolver la transición entre los espacios de pequeña escala (casco urbano) y la zona de equipamientos (polideportivo e instituto).
Se pretende que el edificio se perciba fragmentado desde el camino y unitario desde el patio interior de juegos: hacia la calle-camino es sensible a las construcciones entre medianeras, mientras que desde el patio de juegos se responde a la escala del instituto vecino.
El edificio se retranquea para organizar el acceso desde el camino: una plaza, a partir de la cual se generan los flujos que lo organizan. Se separan las zonas dedicadas estrictamente a docencia de las que pueden ser utilizadas en horario extraescolar.
Se pretende resolver un edificio compacto que resulta de apilar los paquetes funcionales que no han de estar necesariamente en planta baja. De este modo se evita la excesiva ocupación en planta, lo que libera una buena parte de la superficie de solar que se destina a zonas de juego. Además, al tratarse de un solar de menor tamaño al habitual para el desarrollo de este tipo de centros, se propone utilizar las cubiertas practicables como superficies vinculadas a las zonas de juego que se ubican en planta baja.



















