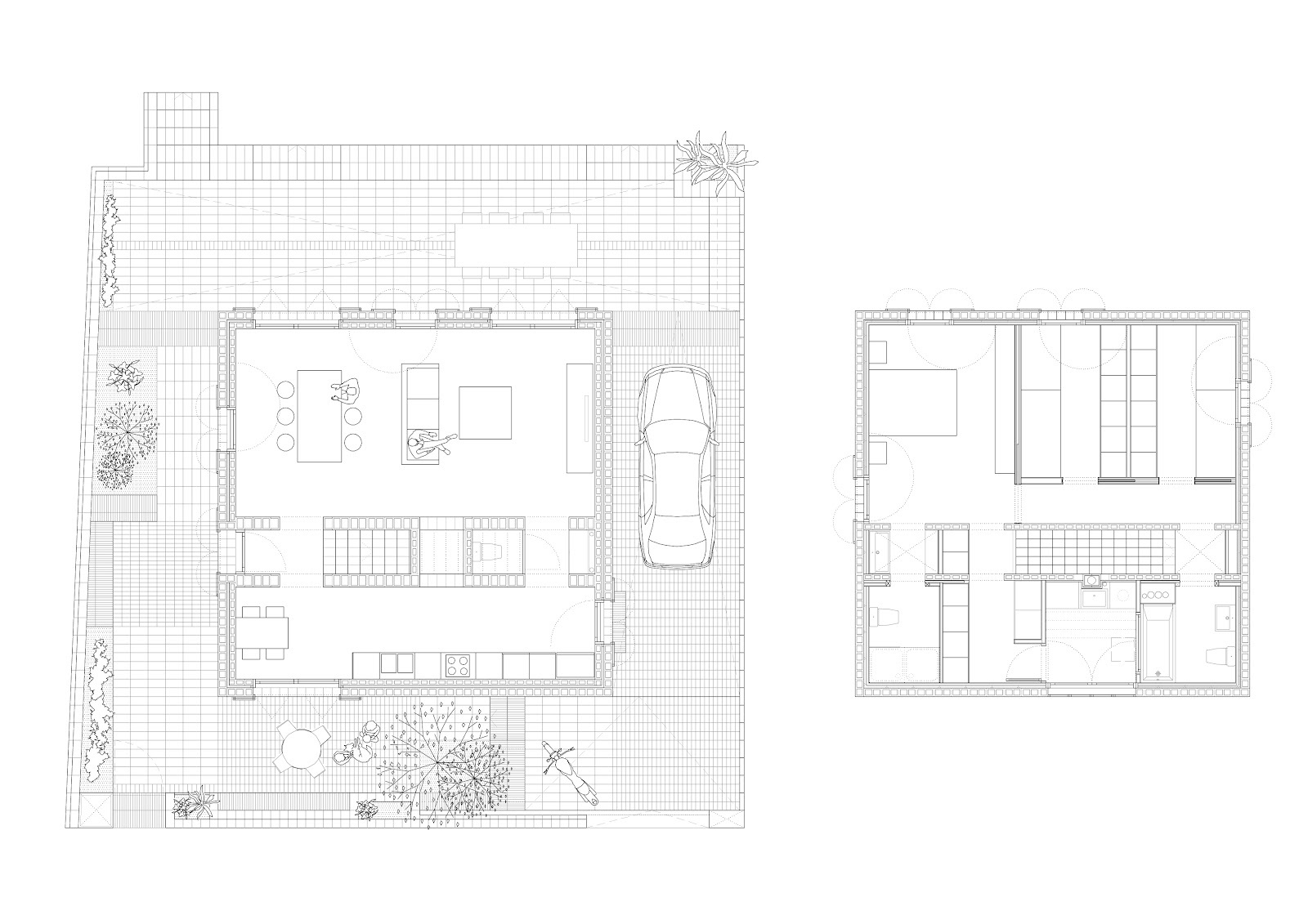
Situada en un barrio residencial muy agradable, la casa es un edificio compacto -casi un cubototalmente rodeado por un patio perimetral imprescindible de 3 metros de ancho, que era la separación mínima obligatoria según normativa.
Por voluntad de los propietarios se conservó el jardín con piscina y el cobertizo del fondo de la parcela, ambos preexistentes. El patio perimetral que rodea la casa es como una sala exterior que se relaciona con diferentes intensidades con todas las piezas (interiores) de la planta baja, propiciando cualidades y usos diversos en cada fachada: al sur, un jardín soleado adonde salir desde la cocina; al oeste, la entrada principal; al este, el aparcamiento descubierto con acceso directo a la cocina; y al norte, una terraza que conecta la casa con el nivel superior del jardín y la piscina preexistentes.
Los elementos que componen el patio (vallas, pavimentos, bancos, etc.) se trabajan homogéneamente para convertirlos en una única entidad. Con el tiempo la vegetación terminará de darles el carácter y el ambiente pretendido.
La casa y el patio perimetral se construyen con bloque de hormigón negro, un material que permite solucionar tanto la estructura de paredes de carga como la fachada, donde se deja el bloque visto por dentro y por fuera. Al exterior, los pavimentos y los muros también se hacen con el mismo bloque oscuro.
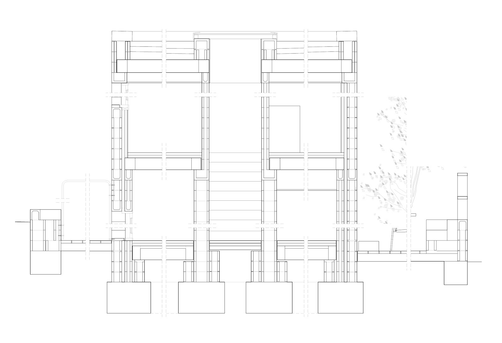
La estructura de la casa es de muros de carga: tres paredes concéntricas terminan sucesivamente en cada uno de los tres forjados, consiguiendo así que trabajen solo a compresión. El muro más interior llega hasta el forjado sanitario, el muro de en medio soporta el techo de la planta baja y, por último, la hoja exterior llega hasta el último forjado, la cubierta.
Dentro de la casa, el bloque se deja a la vista, sin revestir, en la mayoría de los paramentos de las principales piezas. Para el pavimento de la escalera se utilizaron baldosas recicladas del mosaico hidráulico de la casa que ocupaba antiguamente la parcela. Debajo (de la escalera), donde los muros tienen más grosor (30cm), un hogar se abre con ligera asimetría a sala y cocina.


















7 Comments
m’agradaria saber com enfocar un projecte d’habitatge unifamiliar en una ciutat jardí negant la ciutat jardí, senyor soroll
Más arquitectura innecesaria, en un urbanismo desolador, esta vez con un envoltorio de sencillez y de eficiencia constructiva. Hacer protagonista el material, o hacer protagonistas los ideales de un proyecto honesto, o hacer protagonista la eficiencia constructiva de proyectos que en sí no tienen sentido, o hacer protagonista la domesticidad por encima de lo colectivo; es fácil que esto se convierta en una distracción idealista respecto de la realidad de unas ciudades en apuros, y respecto de una arquitectura que casi no ha pensado herramientas para enfrentarse a ella.
Firmado,
Suspens Arquitectes, o Soroll Arquitectes.
jaja no entendí nada de tu critica :(..
és a dir, que l’única alternativa ètica que tenien davant aquest encàrrec era renunciar a fer-lo. molt bé
No, l’única alternativa ètica era fer un projecte que no provoqués vergonya aliena.
Molt ben sintetitzat Yawn.
Una vivienda sincera, sin revestimientos. Donde el material es el protagonista. Un buen ejemplo de sinceridad constructiva.