“Ponle hojas” fue el lema del proyecto que presentamos en el concurso para la nueva Biblioteca y archivo histórico de la ciudad de Sant Fruitós de Bages y que tuvimos la suerte de ganar. Más allá de la broma, queríamos evocar la idea de la transmisión del conocimiento a través del simbolismo de los libros y las hojas escritas. El edificio tenía que estar a la altura de lo que, verdaderamente, significa una Biblioteca. En realidad es el respeto por todo lo que para nosotros significa la cultura lo que queríamos que diera forma al nuestro proyecto.
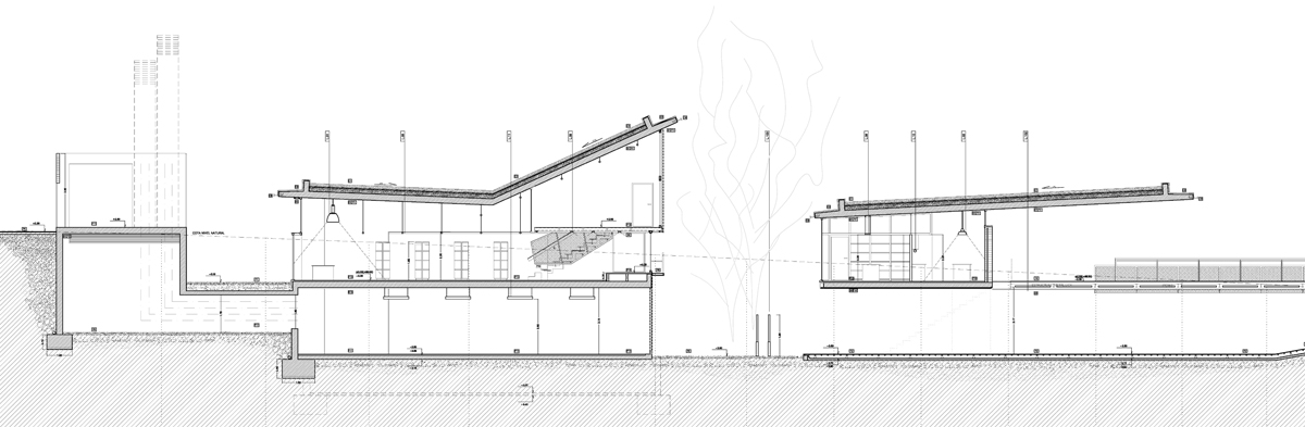
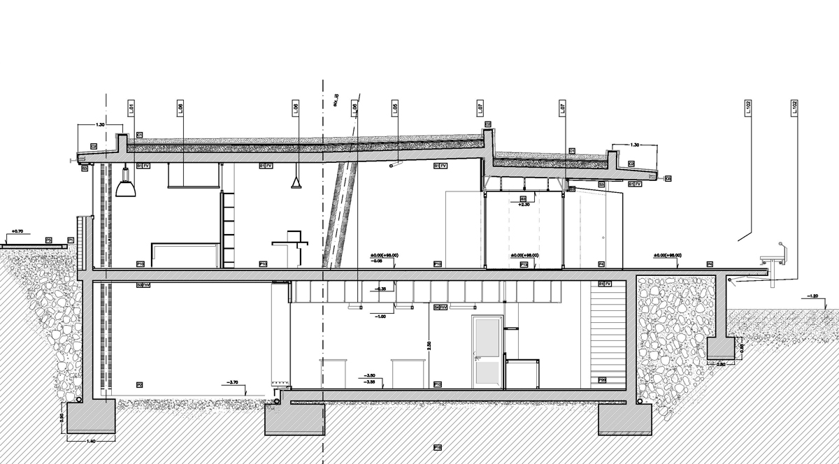
El edificio se esconde detrás sus curvas orgánicas, de elementos que parecen estar en movimiento y de estructuras y formas con connotaciones simbólicas. Pero, tras toda esta marcada carga estética se esconde un edificio que apunta hacia una sostenibilidad radical. La envolvente del edificio y los detalles constructivos se diseñaron a partir del estudio que se hizo con la ayuda de un programa dinámico de simulación de flujos energéticos y se diseñó un sistema de frío solar basado en una pérgola hecha a base de placas solares térmicas conjuntamente con un sistema de absorción de bromuro de litio. Buena parte de los materiales nos hablan de bajo impacto: carpinterías de madera, aislamientos de corcho, pavimentos de linóleo natural, morteros a la cal, pinturas ecológicas, etc.
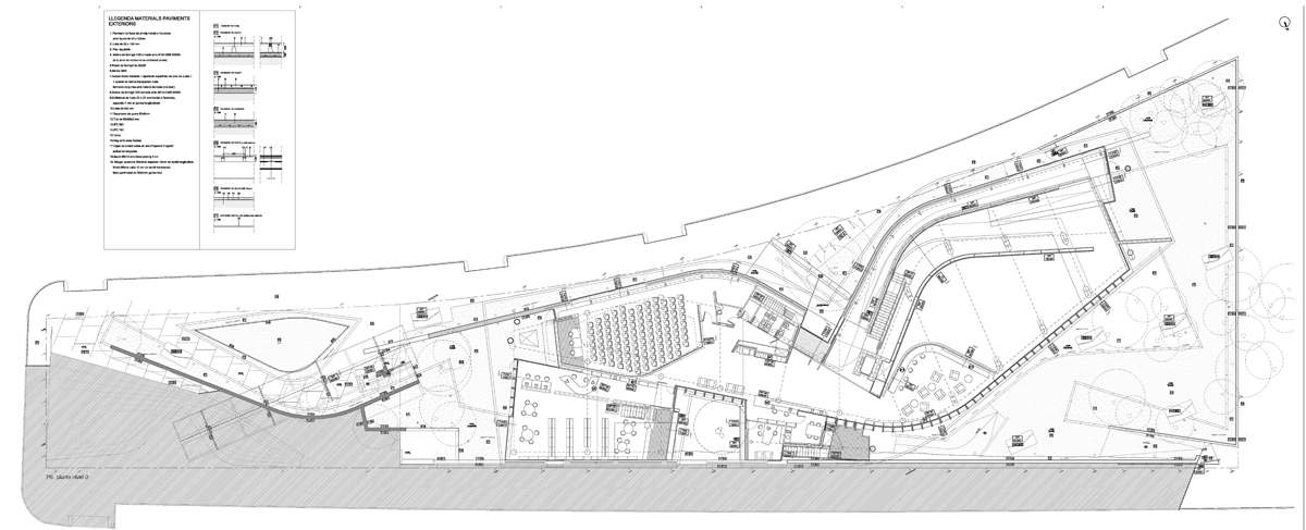
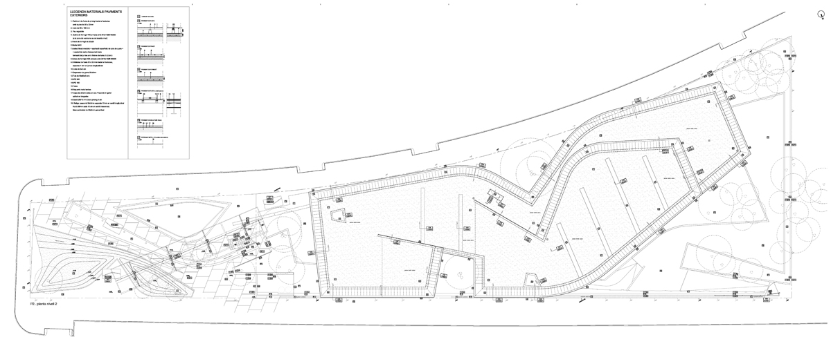
La organización del edificio obedece al programa funcional de cualquier biblioteca actual, separando la zona infantil de la zona adulta y habilitando un espacio exterior de uso interno para cada zona. El edificio se hunde deliberadamente en el terreno y se cubre con una cubierta que nos recuerda los campos y márgenes del entorno de Sant Fruitós.











































16 Comments
Xavi, m’ha fet molta il.lusió veure la biblioteca acabada després de tants anys. Va ser molt tot el que vaig aprendre d’aquell projecte entre entrega i entrega!!
jajaja…
Enhorabuena Xavier, me parece un proyecto sensacional!
Magnífic edifici, Xavier ! L’enhorabona ! Crec que quan varem fer plegats el parc de bombers de Sort, ja me’n parlaves…! i ja fa 10 anys!
Segur Francesc!…però ha valgut la pena espera!…
M’alegra que t’agradi Francesc. Si passes per St. Frutós, ja saps on parar a fer un cafè!..
Fins a la propera obra Francesc!
Xavier, ja que ets per aquí, sempre he tingut curiositat per aquest “mirallema” de la corba-angle recte-corba que es repeteix tant a les seves plantes i que apareix també al teu edifici. Com es construeixen aquestes corbes? M’agradaria que me les expliquessis, sempre m’han semblat unes formes molt curioses i ningú mai m’explica formes.
De fet són formes tant simples o complexes com les rectes o les corbes. Només que, en aquest cas, van juntes. Això les potencia mútuament com molt bé deia l’Enric Miralles. A mi també sempre m’han semblat curioses aquestes formes. Però independentment d’això crec que et permeten una certa llibertat per adaptar l’arquitectura a altres coses menys aparents que les pròpies formes al no obligar-te a “formalisme” de l’angle recte. Però bé,..al final les formes és el de menys. Lo important és mirar més enllà, no?
I tant! M’agrada el que dius, en prenc molt bona nota!
Guai
Dime con quien “Miralles” y te diré quien eres….
…Que valga la pena levantarse por la mañana y salir a tomar un café al bar…
Molt bo, la millor herència de Miralles: com no imitar-lo tot i evocant-lo. Molt bon projecte.
En mi opinión, el edificio no consigue reflejar unas plantas muy bonitas y trabajadas.
Un saludo P!
Felicidades Xavi! Una obra magnífica.
Gracias Ibon!!…me alegra que te guste.