La reordenación de los jardines de Málaga, situados en el interior de la manzana delimitada por las calles Nicaragua, Berlín, Numancia y Avenida Josep Tarradellas, en Barcelona, determinó la adjudicación de un pequeño solar para la construcción de un equipamiento educativo, en concreto una guardería. La parcela, de forma rectangular, se adosaba por uno de sus lados largos a la medianera de uno de los edificios que cerraban la manzana, dando el lado opuesto fachada hacia los jardines.
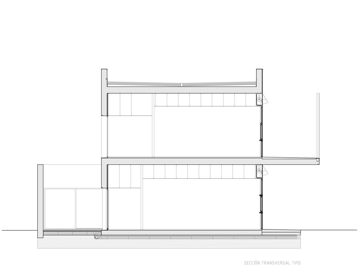
La escasa superficie de terreno disponible impedía desarrollar el programa en una sola planta, como hubiera sido deseable, por lo que se optó por organizarlo en dos plantas, lo cual permitió orientar hacia el sur todas las aulas. La obvia necesidad de patios de recreo y sus correspondientes porches en ambos niveles se solventó con un decalaje estructural de la sección. El acceso a las aulas, en ambos niveles, se organizó mediante un ancho pasillo iluminado a través de un patio adosado a la medianera del vecino. La entrada, situada en uno de los extremos del volumen, se protegió mediante otro desplazamiento del volumen superior que generó un gran vuelo sobre el acceso.
El juego de volúmenes y geometrías impuesto al edificio por la escasez de la parcela, se matizó con una cierta parquedad en la elección de materiales, optando por el hormigón en elementos estructurales y de cerramiento en las caras menos soleadas y metal, tanto en plancha opaca como troquelada en las mas soleadas. En el interior se modificó esta percepción monolítica del edificio introduciendo materiales de mejor calidad táctil como madera o caucho y expandiendo la paleta cromática.
La frondosa vegetación del jardín en el que se enclava la guardería y la futura vegetación de sus patios interiores, pronto cobijarán este pequeño edificio, confundiendo visualmente interior y exterior pero acogiendo y protegiendo a sus menudos habitantes.





















2 Comments