Este nuevo Centro de Investigación de la Universidad de la Laguna se destina a centralizar los laboratorios que proporcionarán soporte científico, instrumental y técnico a los distintos programas de investigación de la Universidad.
La parcela se ubica al borde del Campus Universitario de Anchieta, junto a una amplia zona de cultivos gestionada por la Facultad de Ciencias Agrarias.
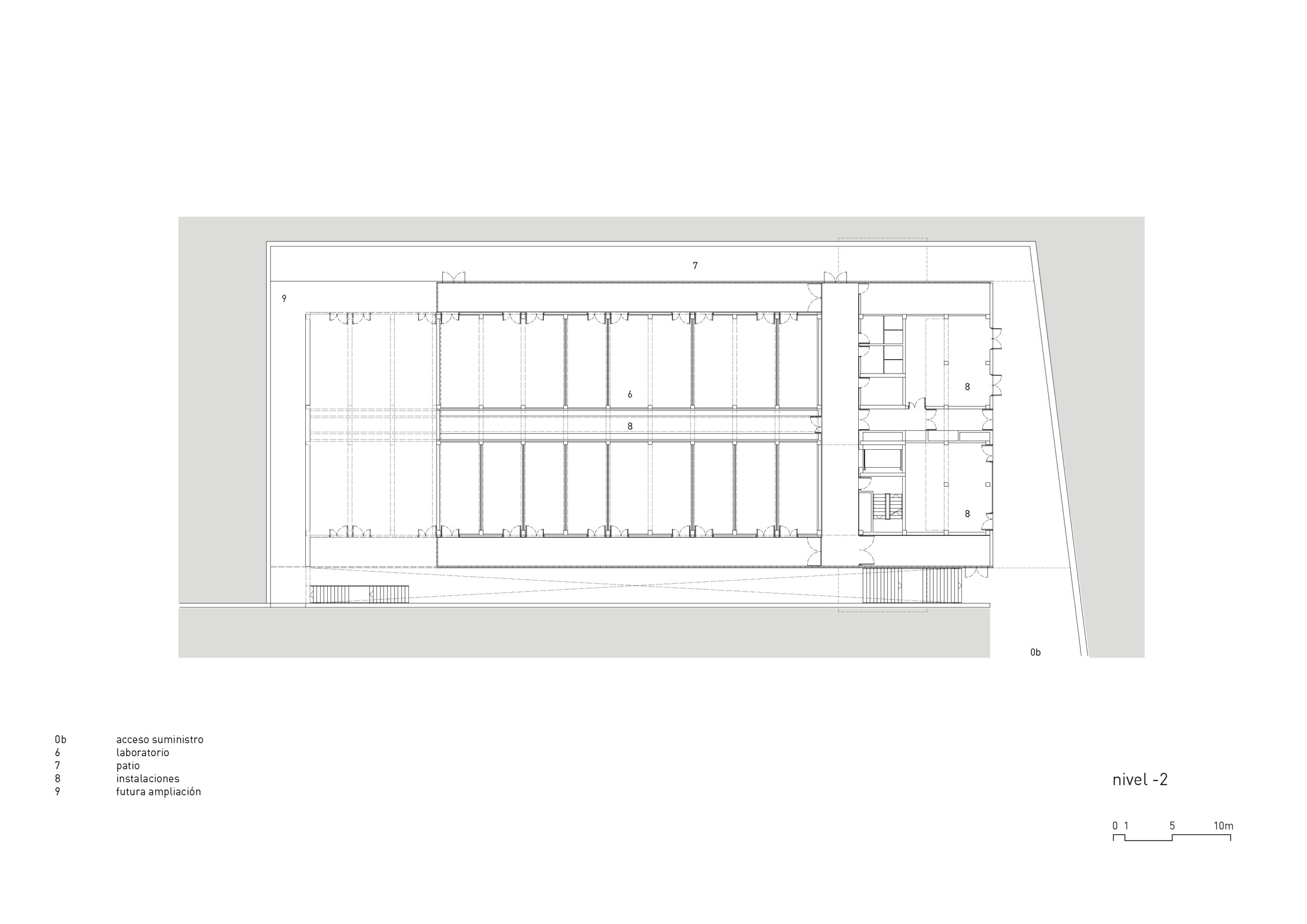
La propuesta sitúa los laboratorios y el área técnica bajo tierra, en relación directa a la estructura abancalada de la finca agrícola, mientras reserva una posición singular elevada para el área de encuentro y co-working que se convierte así en un elemento referencial del sistema de espacios públicos del Campus.
Una circulación en forma de anillo perimetral, junto a patios lineales, configura el paisaje interior del área de laboratorios, potenciando un entorno reservado para la investigación.
La disposición enterrada de esta área aprovecha la masa del terreno como estrategia pasiva de aislamiento y las cubiertas ajardinadas se convierten en una prolongación natural de los bancales de cultivo; El SEGAI se propone como elemento de transición entre el espacio urbanizado del campus y la naturaleza agrícola de su entorno inmediato.




















2 Comments
Fantástico artículo. Gracias por vuestros contenidos!
Hermoso edificio!