La intervención en la Iglesia del convento de Sant Francesc tenía por objetivo convertir el edificio en un equipamiento cultural. Las dos fases ejecutadas han permitido poner en uso la edificación como auditorio y espacio cultural polivalente. Es previsto que, en el futuro, una tercera fase dé uso de archivo histórico a las plantas altas de las capillas del lado sur de la iglesia.El conjunto del convento de Sant Francesc fue construido en el siglo XVIII por padres franciscanos. Entre 1721 y 1729 se construyó el convento de Sant Francesc que incluía la iglesia ahora recuperada. El conjunto edificado tuvo uso conventual hasta 1835. El año 2000 el convento se derribó por el estado ruinoso en que se encontraba. Sólo se mantuvo en pie, aunque en muy mal estado, la iglesia y parte del muro perimetral del convento.Se planteaba la recuperación de un edificio que nunca había estado aislado sino que formaba parte indisociable del conjunto del convento. De hecho las plantas altas existentes sobre las capillas laterales de la iglesia eran dependencias conventuales ya que sólo se podía acceder a ellas des de la planta primera del convento, pero no desde la iglesia. La iglesia, que originariamente sólo tenía dos fachadas, con el derribo del convento pasó a tener cuatro.
La iglesia –con una cualidad constructiva muy modesta ya en origen- se encontraba en estado ruinoso. Cabe destacar que presentaba las cubiertas hundidas, el coro desparecido y las bóvedas de la nave y de las capillas parcialmente caídas y con una capacidad portante nula. Desde el exterior sólo presentaba el interés de mantener el perfil histórico del pueblo llegando des del sur. El interior de la iglesia, no obstante, presentaba –a pesar del estado ruinoso- unas proporciones i cualidades espaciales interesantes. Gracias a los hundimientos de cubierta, quedaba sorprendentemente realzado por las importantes entradas de luz natural que se producían por las partes desaparecidas de la cubierta. De esta manera el espacio interior, que originariamente prácticamente no recibía luz natural de ningún tipo, tomaba un aire majestuoso con las entradas de luz.
El planteo principal del proyecto de intervención ha sido no alterar las dimensiones y la cualidad espacial de la nave de la iglesia y mantener las importantes entradas de luz natural producidas por los hundimientos. El mantenimiento de las entradas de luz en los distintos puntos –y en la cantidad importante con que se producía- ha comportado plantear diferentes soluciones de cubierta específicas en cada uno de los sitios: una gran claraboya en el lado norte del absis, un tragaluz que permite mantener las vistas del campanario des del interior de la nave, la ausencia de cubierta en la capilla principal y un corte en la cubierta justo al inicio de la nave que garantiza mantener una entrada de luz rasante sobre la parte interior del muro de acceso.
La recuperación del edificio se ha desarrollado aplicando el criterio de diferenciar claramente los nuevos elementos construidos (utilizando sistemas constructivos y lenguajes contemporáneos) de los elementos originarios y históricos de la iglesia. Con la voluntad de preservar todos los aspectos del pasado del edificio, la intervención no ha escondido vestigios, heridas ni cicatrices. De este modo, se han mantenido visibles los hundimientos, los agujeros donde se empotraban los retablos o rastros de otros elementos desaparecidos.
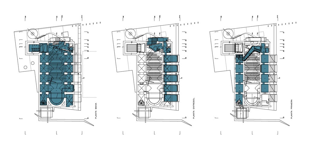
Otro reto planteado consistía en mantener la unidad y dimensión de la nave de la iglesia a pesar que se tenían que construir volúmenes para nuevos usos y requerimientos que nunca había alojado la iglesia: escaleras para subir a las plantas altas, lavabos y salas de instalaciones. Para preservar la lectura de espacio amplio y unitario del interior de la iglesia, estos volúmenes se han situado, en parte, en el exterior del edificio o se han resuelto en el interior de manera que se mantenga la visión de espacio unitario, en toda su dimensión, tanto de la nave como de la capilla principal.
El conjunto de escaleras y rampas construidas, aparte de asegurar el acceso a las pantas altas de la iglesia, definen un recorrido circular por el conjunto del edificio como si se tratara de un recorrido museizado. Este recorrido circular permite reseguir y visitar de forma completa el conjunto de la iglesia apreciando sus valores desde puntos de vista singulares y diversos.
La actuación, y los sistemas constructivos utilizados, han pretendido consolidar la iglesia sin borrar el proceso de deterioro y de hundimiento sufrido por la edificación. La intervención ha pretendido preservar el legado histórico del edificio añadiendo nuevos valores que realcen y singularicen de forma contemporánea la iglesia del antiguo convento de Sant Francesc.













10 Comments
Un clar exemple de quistecisme arquitectònic, reconegut a la xarxa:
http://satanismylord.com/urban-renewal-para-la-iglesia-convento-de-san-francesc-en-santpedor/
al principio suelen incomodarme formas tan complejas, por lo difícil que suele ser hacerlas funcionar bien y construirlas con cuidado, pero luego, al detalle, te das cuenta de la sabiduría que hay detrás y de que, además de una especie de tendencia que podríamos remontar a esos grandes maestros catalanes (Coderch, Miralles…), hay un gran “saber hacer” de un carácter indudablemente catalán, de indiscutibles calidad e identidad. Moltes felicitats!
Lindo demais!
Impactant, l'actuació exterior determina el canvi radical d'ús però es pot llegir l'abans. M'agrada molt FELICITATS
Josep Ma Guillumet
És impactant l'efecte que produeix: sembla un viatge al passat i alhora al futur. Molt original. M'agrada.
CataluNYa s'escriu amb “NY”!!!
Bravo,
Cataluña és magnifica!
magnífic!
eNHORABONA DAVID.
No coneixía la teva obra i m'ha interesat molt la teva manera de fer.
Cuan vagi cap a Cardona ho pasaré a veura.
Una obra molt seductora.