historia de memoria con Historia
La memoria, las memorias, incluso la mala memoria siempre se enroscan y sobrevuelan cuando se interviene arquitectónicamente un pasado, una Historia como personaje de otra historia que acaba siendo el proyecto…si, fabricar una historia, elegir el tono, la cadencia, el ritmo, los acentos, una historia en la que convivan con naturalidad la memoria colectiva del antiguo Matadero de Madrid, con otra memoria anticipada del nuevo uso dedicado al cine y a la vez enroscada con la desmemoria de las propias obsesiones recurrentes…
Las fascinantes figuras relucientes de canales de reses recién sacrificadas y desolladas, los contraluces mágicos y los excesos de contraste del cine, y la fascinación infantil por la cestería como técnica infinita de geometrías humanas son el triángulo sensorial de toda la historia…lo demás es rodear en espiral esta atmósfera, esta sensación, es definirla constructivamente.
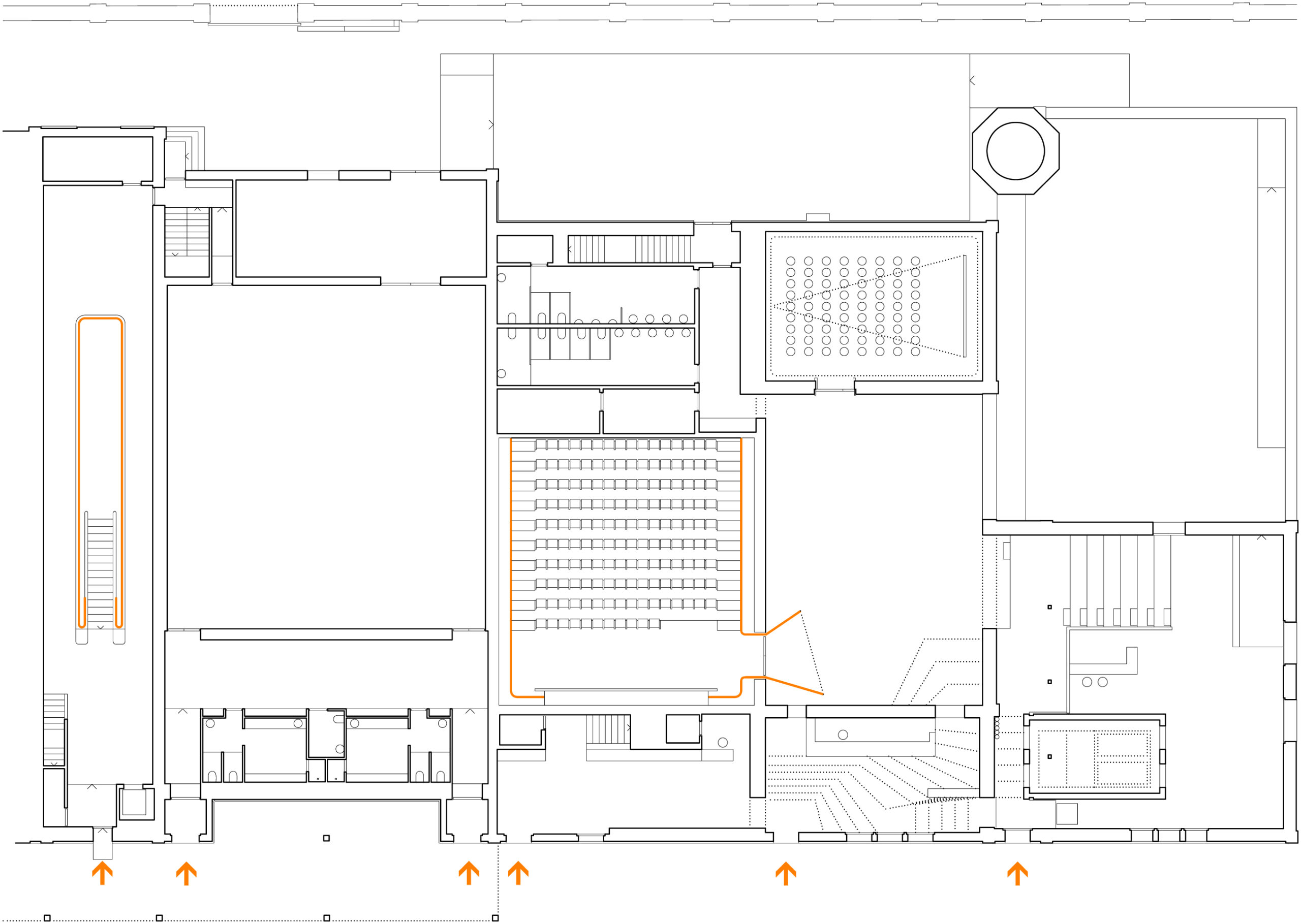
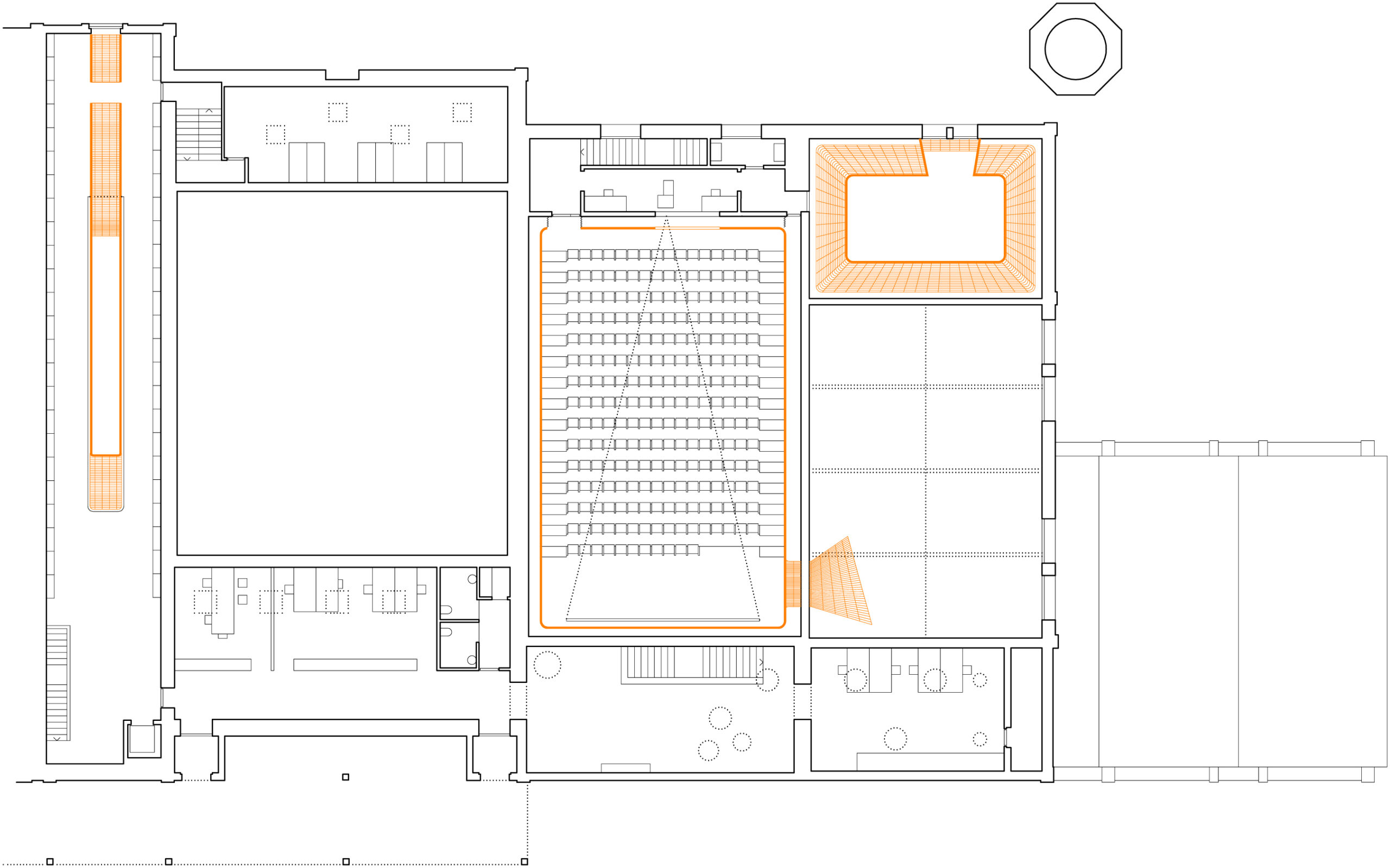
La Historia de ladrillo tectónica, retórica y poderosa del antiguo Matadero es el fondo, y también la figura según las escenas de la historia contada, una historia en la que un bajo continuo de fondo, un monomaterial de madera pintada de gris oscuro define el nuevo programa desplegándose en paredes suelos y techos, permitiendo una nítida separación entre la historia y la Historia. Sobre este fondo de oscura alfombra , salidas de mi propia memoria exagerada aparecen unas figuras flotantes, unas cestas gigantes, desproporcionadas y vibrantes que definen los espacios principales.
La cesta del archivo es permeable, enorme, transitable, filtra la luz, la canaliza y es una lámpara, es una enorme figura desollada de una modesta manguera anaranjada infinita. Las cestas de las salas de Cine son matices de negro. En la sala principal el fondo naranja hace flotar la cesta iluminada hasta que suavemente, al empezar la película, el fondo desaparece y queda tan solo una vibrante superficie de negros. En la sala pequeña, una cesta-artesa muy peraltada negra sobre fondo negro flota negra sobre el espacio casi negro de madera, solo una ventana cuando se abre deslumbra al ojo, si, lo deslumbra con contraluces imposibles.
Porque el ojo y sus límites de percepción son en definitiva los verdaderos protagonistas de esta historia de cine.
estructura silenciosa
Hay una batalla constructiva y estructural, una batalla silenciosa y oculta por defender la Historia. Y defenderla es desobedecer los informes patológicos miedosos que desconfían de la Historia de la construcción en fábrica, que no entienden que a las fábricas de ladrillo y de mampostería les encanta estar cargadas…son más felices y están más cohesionadas…y que su lógica es siempre un problema de estabilidad y no de resistencia, tan mala memoria tenemos ya por culpa de las estructuras reticulares.
Confiando en estos muros de ladrillo macizo y morteros de cal irrepetibles, la intervención ha podido resolver las grandes luces que requería el programa. La estructura horizontal se ha resuelto con losas de hormigón armado, cuyo trabajo bidireccional y enjarjes con la fábrica existente hacen del conjunto un sistema completo de muros verticales portantes, distribuyendo esfuerzos a través de los generosos paños de sus muros. La mayoría de los muros solo necesitaron de algunos cosidos de grietas por enjarjes primitivos de esquina incorrectos, y cuando las cargas sobre los muros existentes eran mucho mayores que las primitivas, ha sido necesario el gunitado local con mallazo sobre estos para recrecer y favorecer su capacidad a pandeo debido a alturas importantes sin arriostramiento lateral como en el Plató.
La cimentación de estos muros sobrecargados se reforzó con baterías de micropilotes levemente inclinados penetrando bajo la proyección vertical de las cimentaciones escalonadas de mampostería.
fondo y cestas
Una vez resuelta la estructura, una alfombra continua de tarima de pino pintada sobre rastreles recorre paredes, suelos y techos definiendo la nueva arquitectura de los espacios, evitando tapar siempre los muros originales de fabrica salvo por requerimientos acústicos muy exigentes de absorción y aislamiento.
Sobre este fondo monomaterial oscuro de madera se tejieron las cestas, formadas por cuadernas de tubos de acero doblados como garantes de la geometría, y tejidas con mangueras de riego industriales convencionales.
instalaciones
Los espacios, definidos por la potencia tectónica de lo existente, el fondo oscuro de madera y las figuras protagonistas de las cestas requería un silencio deliberado en la introducción de las instalaciones. Las enormes demandas térmicas de ventilación que requieren los usos de Cine y Plató suponen movilizar enormes cantidades de aire de renovación, lo que se consigue enterrando bajo rasante la mayor parte de estas servidumbres. Las zonas sin requerimientos de ventilación tan grandes, como vestíbulos, oficinas, y zonas de circulación resuelven su temperatura con sistemas de inercia por suelo radiante bajo la tarima.
La iluminación de desorganiza, se desordena deliberadamente con agrupaciones de bombillas vistas, huyendo de la homogeneidad perversa y triste a que invitan nuestros reglamentos. Las cestas se tejieron también con fibras de leds para que la luz misma sea la definidora del espacio.












































6 Comments
Una marca d’aigua als renders seria de gran ajuda. Ja no soc capaç de diferenciar-los d’una foto super-photoshopejada.
susana, tampoco es tanto, 1.527,099 €/m2. Una casa con unos acabados buenos ronda entre este precio y los 2.000 €/ m2
susana, tampoco es tanto, 1.527,099 €/m2. Una casa con unos acabados buenos ronda entre este precio y los 2.000 m2
4.104.843 ….