Resolver la relación adecuada entre el nuevo Palacio de Congresos y el Parque Ferial de Exposiciones existente será en nuestra propuesta un tema capital. Proponer un nuevo edificio autónomo pero al mismo tiempo que pueda percibirse como un episodio vinculado al edificio anfitrión.
Se trata por tanto de un edificio capaz de interrogarse acerca de las condiciones particulares del lugar y capaz de integrar todas las fuerzas en conflicto pero sin que el proyecto en su configuración formal sea reflejo de esta situación conflictiva. El edificio existente, la condición de ampliación del nuevo proyecto, la carretera que divide ambas parcelas, la presencia del trazado ferroviario como límite occidental de la intervención, la dimensión suburbana del territorio y la arquitectura de la ciudad, son algunas de estas fuerzas que han condicionado la organización y la forma del nuevo edificio. Un edificio obediente a las razones de su entorno.
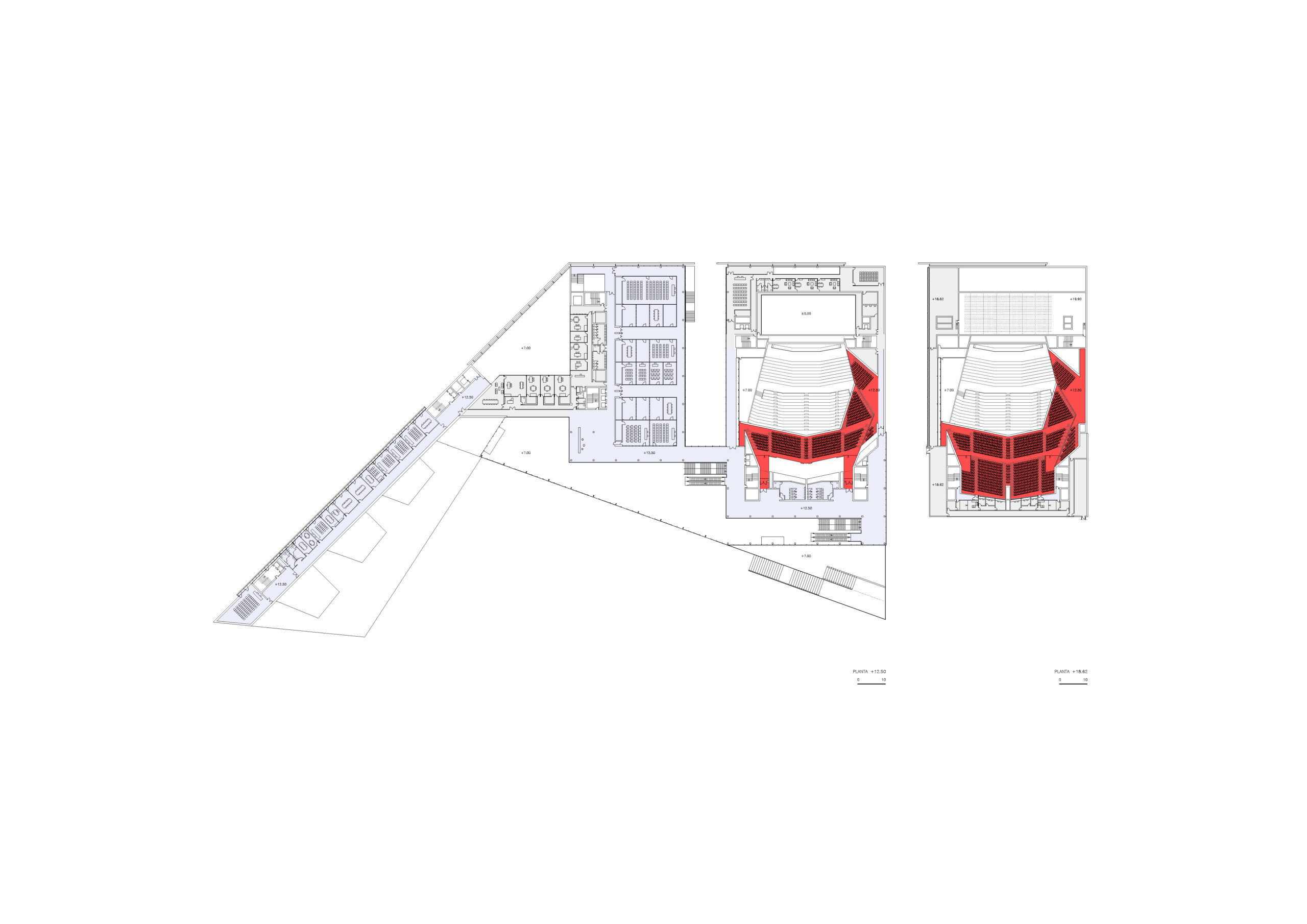
Para el Palacio de Congresos se plantea, por ello, la construcción de dos grandes piezas articuladas: una plataforma horizontal elevada sobre el terreno la altura suficiente para permitir el paso de vehículos y una segunda pieza que asciende suavemente en rampa hasta alcanzar la cota de esa plataforma.
Un Palacio de Congresos es un lugar de encuentro, un espacio de relación y de convocatoria. Un territorio de intercambio cívico para todos los ciudadanos en torno al mundo de la cultura y el conocimiento. También del espectáculo y del entretenimiento. El objetivo de la propuesta ha sido el de construir más que un edificio ensimismado y autoreferencial, un lugar, un lugar urbano. También el de proponer espacios capaces de asumir actividades y tiempos variables. Una arquitectura capaz de contar la historia de nuestro tiempo y al mismo tiempo de albergar el futuro.
Dadas las características de su ubicación parecería aconsejable la propuesta de un espacio de intermediación entre el edificio y la calle. Sevilla se caracteriza precisamente por la presencia de estos magníficos espacios de transición, ambiguos, indefinidos, imprecisos. Que son sino los zaguanes, apeaderos o compases de su arquitectura doméstica o monumental. Espacios en los que se produce este desdibujamiento de límites, esta disolución de confines entre interior y exterior, entre lo colectivo y lo íntimo, entre el dominio de lo público y lo privado, entre la arquitectura y la ciudad.
La pieza en rampa, que se apoya sobre el edificio existente, configura precisamente este espacio de transición entre el edificio y la calle. Se trata de un espacio exterior cubierto, atrio y antesala del nuevo edificio, espacio de una gran potencialidad, capaz de dar respuestas a requerimientos aún por precisar. Durante el día se configura como un espacio de encuentro, de relación, de acceso principal al auditorio, de exposiciones… De noche se transforma en una gran pantalla luminosa, en un gigantesco panel informativo.
Este espacio de acceso asciende suavemente hasta el vestíbulo del edificio, situado sobre la plataforma en la que se dispondrán las diferentes piezas que conforman el programa del Palacio de Congresos. Una plataforma social. Bajo el vestíbulo discurrirá la carretera que separa ambas parcelas y conduce a los aparcamientos.
Sobre esta plataforma se apoyan y organizan las diferentes piezas del programa: un auditorio divisible con capacidad para más de 3.500 butacas, zonas de catering y restauración, salas polivalentes y administración, conformando una estructura estratificada, permeable y transparente transitada por un espacio fluido y continuo, cruzada por pasarelas, rampas y escaleras en la que la presencia del jardín de palmeras en su interior juega un papel activo en la organización del espacio, clarificando circulaciones y facilitando la orientación del usuario.
No solo los espacios de relación, de exposiciones congresuales y de restauración van a tener una relación intensa y luminosa con este amplio espacio ajardinado, tamizando la luz, atemperando el calor, introduciendo el color, sino que será también el gran auditorio quien participe de la presencia de la vegetación en el interior del edificio. Contar con el concurso de la luz natural y de la vegetación en el auditorio ha determinado la configuración asimétrica de la sala: la fachada interior que se abre al patio, continua y luminosa, matizada por las celosías metálicas, se contrapone a la fachada opuesta, angulosa y facetada, que conforman los palcos y balcones que se descuelgan hacia el escenario. La incorporación de la luz natural en el auditorio ha sugerido la utilización del aluminio como único material de revestimiento. Un material que, con sus brillos y reflejos, activa y potencia la presencia de la luz dibujando en su interior una extraordinaria atmósfera de plata, luminosa y vibrante.
El espacio interior del gran vestíbulo, fluido y festivo, constituye la materia que formaliza la fachada a la ciudad, orientada a Norte, a través de grandes paramentos continuos acristalados ofreciendo una imagen vigorosa y contemporánea. El patio interior, con todos sus atributos, y el atrio, espacio exterior de transición entre la calle y el edificio, van a ser los argumentos claves que permitirán incardinar el proyecto en la cultura arquitectónica de nuestra ciudad.
El proyecto se completa con la construcción bajo rasante de un aparcamiento con capacidad para 900 plazas, organizado en cinco niveles en torno a un patio arbolado, integrado en el jardín exterior y conectado directamente con el Palacio de Congresos.

































