Casas Reais: reforma de una vivienda en el casco histórico de Santiago de Compostela
RECINTOS DE LUZ
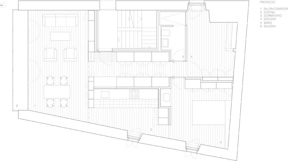
Nuestro primer objetivo fue entender la vivienda existente – un espacio fragmentado en estancias pequeñas y con poca luz – como un recinto único y luminoso. Para ello decidimos potenciar sus posibilidades de iluminación aprovechando las dos únicas fuentes de luz existentes: la galería orientada a norte y tres pequeñas aberturas a este y oeste perforadas en los gruesos muros de piedra. Por un lado, la casa se abre hacia la galería, incorporando la luz y las vistas del paisaje del casco histórico en el interior de la vivienda. Por otro, las pequeñas ventanas existentes se perciben de forma simultánea, creando así un espacio con una luminosidad agradable y cambiante a lo largo del día.
DENSIFICAR EL ESPACIO
A partir de estas nuevas condiciones, la casa se configura como una colección de espacios con un carácter específico y puestos en continuidad de modo que todos se beneficien de la relación entre las diferentes fuentes de luz. Las distintas estancias se formalizan por articulaciones y dilataciones del espacio a través del diseño del mobiliario. De este modo existe siempre un primer plano, el de la estancia, y un segundo y tercer plano de las estancias sucesivas, que otorgan densidad y profundidad al espacio.
El mobiliario es exento respecto a la envolvente permitiendo así su percepción en continuidad. El muro de piedra existente, con su textura de mortero de cal, se muestra en toda su longitud, conectando la secuencia de espacios salón-cocina-dormitorio. El nuevo elemento continuo de carpintería, liso y satinado, organiza la secuencia salón-entrada-vestidor-estudio.
RELECTURAS
Tres piezas existentes a modo de objects trouvés dialogan con los nuevos elementos otorgando a la vivienda un carácter propio. La lareira de piedra se convierte en un lugar de reposo en el estudio. Las baldosas hidráulicas de la cocina original se desplazan creando un tapiz que se extiende en el nuevo espacio de cocina. La galería se incorpora visualmente al espacio interior a través de la nueva carpintería que actúa como filtro.



















7 Comments
No soy arquitecto, soy la orgullosa propietaria de uno de los primeros trabajos de Concheiro-De Montard. Me entusiasma comprobar que continúan dotando a sus proyectos de personalidad propia, como hicieron con mi casa donde vivo feliz y muy confortable, abriéndolos más a la luz y haciendo sus recorridos más fluidos y naturales. Sus propuestas liberan aquello que pudo haber sido desde el principio dotándolo de su verdadera identidad. Las casas y sus propietarios ya no pueden verse a sí mismos de otra forma y en esa “naturalidad” conseguida está su genio.
inside- outside relation, escher tiles in the kitchen… all together very nice.
No conozco a Isabel Concheiro personalmente, pero al ver este proyecto me sentí rápidamente atraido por él. Una planta extremadamente simple y lógica. Tan sólo poner los espacios con naturalidad allí donde lo pide la geometría de la planta. Una vez tomada esa decisión condimentarlo todo a fuego lento, sin ninguna voluntad de espectáculo, pero con una gran sabiduría y madurez. Pensamos que sería una buena idea compartir este descubrimiento en este blog.
Quizás me expliqué mal Jordi. Conozco màs a Isabel que a De Montard, son socios y trabajan conjuntamente. Isabel trabajó una larga temporada de 3 años en mi despaho.
Muchas gracias Jordi por tus comentarios y gracias de nuevo por publicar el proyecto. Enhorabuena por el blog, lo seguimos con gran interés.
Sabia decision de reutilizar el angulo recto, como en la ubicación de las piezas originales, para la ejecucion de este proyecto. Reutilizacion y aplicacion de materiales del lugar unificados a nuevos dialogan entre si. Una muy buena intervención en un lugar histórico. En muchos de los proyectos de mi despacho colaboro Isabel Concheiro, siempre con respeto, cariño y mucha dedicación. Voló hacia tierras lejanas donde realiza tareas más que interesantes. Animo a esta fantástica pareja CONCHEIRO DE MONTARD.
Muchas gracias Josep. Me alegro mucho de que te haya gustado el proyecto, si pasas por Santiago te lo enseño encantada. La etapa en tu despacho fue una experiencia muy enriquecedora de la que guardo un excelente recuerdo. Un fuerte abrazo.