El edificio adopta una disposición longitudinal, en consonancia con las proporciones de la parcela situada en uno de los extremos del Parque de Las Fuentes, con un retranqueo en planta coincidente con los núcleos principales de comunicaciones y de servicios. En las plantas superiores este retranqueo permite una clara diferenciación entre las cuatro unidades que constituyen los espacios de uso privado. En planta baja, el retranqueo determina la posición del acceso principal a la Residencia desde el sur, diferenciándolo del acceso al Centro de Día que se produce desde el oeste, a través de un patio privativo.
El apoyo en la calle que limita el Parque por el oeste, hace que se concentren los accesos en el ángulo suroeste de la parcela, disponiendo la rampa de acceso al aparcamiento y el patio inglés que la prolonga, en paralelo a la fachada oeste. Por el este, la Residencia se enfrenta al espacio libre que limita con el Parque, lo que permite que las salas principales avancen y se orienten decididamente hacia dicho espacio verde longitudinal, que engloba parte del arbolado existente, subdividido en recintos exteriores, interconectados pero diferenciados, destinados a los usuarios del Centro de Día, al personal del centro y a los usuarios de la Residencia. Un porche discurre en paralelo a la fachada oriental, adoptándose un sistema de cerramiento de la parcela compuesto por montantes de madera laminada que permitan una adecuada integración del mismo.
La calle que limita el Parque por el oeste, es desde donde se plantean los diferentes accesos principales al edificio: el de Centro de Día, desde la esquina suroeste; la entrada principal a la Residencia, que conduce al vestíbulo y al núcleo de comunicaciones y, en paralelo, y separada por una celosía de madera, el acceso rodado al garaje, y a todas las dependencias del sótano.
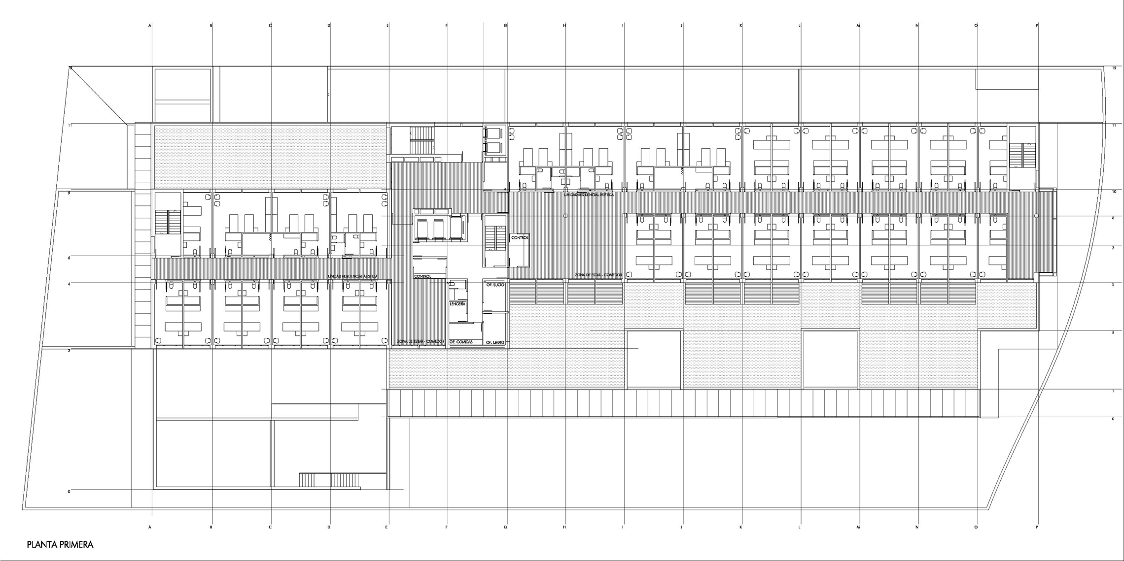
En dicho nivel se sitúan el comedor y los vestuarios de personal, la cocina –conectada mediante ascensores con los oficios y los comedores del Centro de Día y de la Residencia, situados en el nivel superior– la zona de lavandería, el cuarto de basuras, el de mantenimiento y los almacenes. En el extremo meridional de la planta se hallan espacios destinados a rehabilitación y terapia ocupacional que constituyen un amplio espacio continuo y compartimentable mediante paneles corrugables. Estos espacios cuentan con ventilación e iluminación naturales, a través de un patio exterior ajardinado que se organiza en dos niveles escalonados, conectados mediante una rampa. La conexión del nivel superior del patio con el espacio verde que se extiende en el frente este del edificio se realiza mediante una escalera exterior.
Un espacio longitudinal de distribución –pautado por la secuencia de los paramentos acristalados, que suponen otros tantos accesos a las diferentes salas–, recorre la planta baja en sentido norte-sur y divide en dos franjas de diferente anchura la planta del edificio. Así, en la fachada oeste, se suceden los espacios de gestión y atención sanitaria, mientras que hacia los espacios exteriores del interior de la parcela, orientados al este y hacia el Parque, se dispone una franja de mayor anchura en la que se sitúan los grandes espacios de uso general, como son el comedor, la sala de estar, la biblioteca y la sala polivalente. Los accesos a los mismos se producen desde el espacio general de distribución que cuenta con salida al exterior.
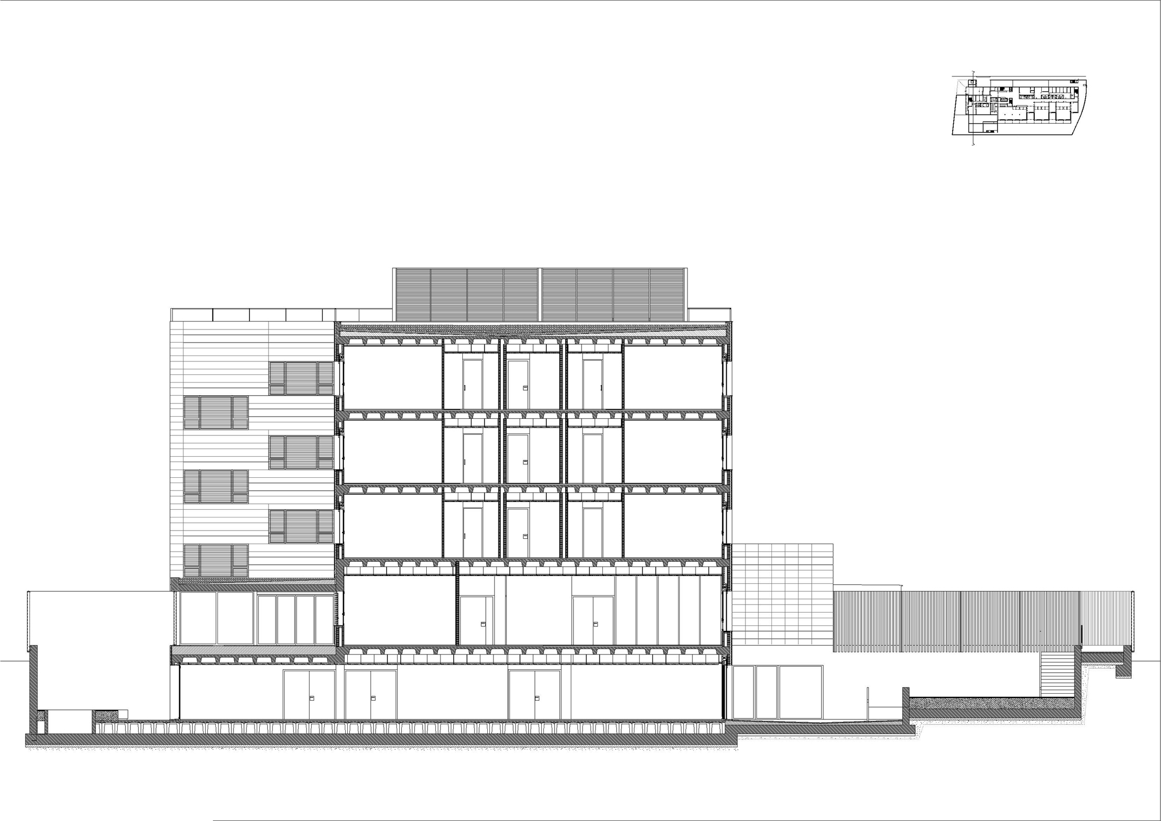
Cada una de las dos alas de las tres plantas de habitaciones, servidas por un corredor central, cuenta con diferentes zonas de estar, atendidas desde el núcleo central de comunicaciones y servicios. En el extremo norte de cada planta una zona de estar se abre hacia el paisaje conformando una tribuna.
El trazado lineal y decalado de la planta se adapta a su posición en el Parque y al papel del frente del edificio como matizado fondo del mismo, respondiendo a las características diversas de los espacios circundantes y a las diferentes necesidades de los accesos. Por otro lado la traza y el carácter permeable de la planta baja permiten graduar y establecer un contacto más estrecho con el terreno, mientras que la celosía de madera del cerramiento difumina la separación de los espacios exteriores privativos del edificio con el resto del Parque.
El revestimiento de las fachadas está constituido por piezas cerámicas blancas que definen una fachada ventilada que proporciona una correcta inserción en los tonos generales de la zona. La mayor parte de los huecos de las zonas comunes y de las habitaciones, están protegidos por persianas de aluminio orientables eléctricamente, lo que permite un ajustado control del asoleo en el interior del edificio.




























1 Comment
booooooring…