La fábrica de plásticos “Alchemika”, situada en el barrio del Camp de l’Arpa en Barcelona, ocupaba parte del antiguo conjunto industrial Costa Font. El conjunto, que conformaba dos manzanas completas, es obra de Francesc Mitjans y fue construido entre 1948 y 1950. El planeamiento vigente prevé su transformación en equipamientos y determina la conservación de su fachada. La presente intervención completa el proceso de reconversión de la manzana delimitada por las calles Industria, Guinardó, Trinxant y Pare Claret, a través de la inserción de un programa de carácter social y diverso: Biblioteca, Guardería, Centro de Barrio y Residencia + Centro de día.
La envolvente predefinida suponía un condicionante que debía incorporarse desde el inicio en el proceso de encaje de un programa complejo. La fachada de obra vista con zócalo de piedra y enormes ventanales de proporción vertical y ritmo constante eran una preexistencia que el proyecto ha tratado de integrar a través de la construcción de espacios interiores en coherencia con su escala y carácter. A su vez, el contundente basamento de piedra dificultaba el objetivo de conseguir la permeabilidad necesaria para una óptima interrelación con el espacio público. La posibilidad de derribar el tramo de fachada del chaflán superior, que no formaba parte del conjunto industrial original, apuntaba una cierta libertad en este ámbito.
El desnivel de más de una planta entre los dos chaflanes implicaba que una parte considerable del programa debería desarrollarse bajo rasante. La geometría estrecha del solar, la larga medianera y la densidad de usos hacían necesaria la búsqueda de mecanismos de esponjamiento que permitieran hacer llegar la luz hasta el corazón del edificio.
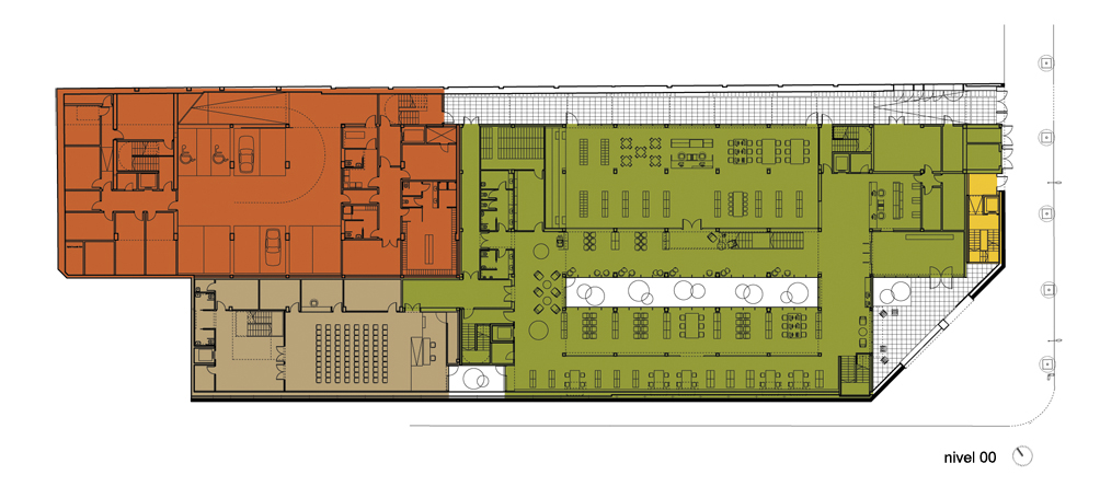
Un esquema de franjas longitudinales lleno-vacío articula los diversos usos y espacios en planta y en sección. La apertura de dos patios longitudinales, uno central y otro paralelo a la medianera, junto a la sucesión de espacios interiores de doble altura conectados entre sí, posibilitan el aprovechamiento del bajo rasante para uso de Biblioteca y permiten la ventilación e iluminación natural de la mayor parte de piezas del programa. A la vez se genera un juego de transparencias y visuales de marcada componente diagonal. La Residencia, en el extremo noreste del solar, está constituida por un volumen vítreo que emerge por encima del zócalo matérico definido por la potente fachada fabril y que acoge el resto de equipamientos: Biblioteca, Guardería y Centro de barrio. La Guardería se sitúa elevada, sobre la Biblioteca, a una cota tal que permite acceder a ella a través de una rampa que arranca del chaflán superior y a la vez encajar debajo dos plantas inferiores para uso de Biblioteca. La cubierta, ajardinada, es de uso compartido y se utiliza como patio de juegos de la escuela y como terraza-solárium de la Residencia. La organización de los accesos y tratamiento de las esquinas genera dos polos de actividad: el chaflán superior que concentra los flujos de acceso a la Guardería, el Centro de Barrio y la Residencia, y el chaflán inferior desde el que se accede a la Biblioteca.


























6 Comments
conocía esta pareja de hermanos y tienen proyectos seductoramente interesantes. Os invito, a los que no les conozcais revisar su web: http://www.oliverasboix.com
¡Gran proyecto!
excelente trabajo de José Hevia
Os confieso que cuando visité esta obra me llevé una muy grata sorpresa.
Un gran proyecto, extremadamente maduro si tenemos en cuenta la juventud de sus autores. Probablemente uno de los mejores proyectos que se han construido en Barcelona este año.
Interesante la manera en que solapa y macla los diferentes usos (biblioteca, guardería, centro de barrio) cada uno con su acceso personalizado desde la calle que lo “clava” al lugar. En este sentido es especialmente interesante la rampa (calle) de acceso a la guardería.
Muy ingeniosa la manera de solucionar la relación con el edificio existente de Mitjans. Era muy difícil congeniar las necesidades de iluminación y expresión de los equipamientos con el corsé del edificio existente. Al retrasar la nueva edificación y dejar un patio, la vieja fachada de Alchemika toma un nuevo sentido.
Otro punto de interés es la porosidad (patios) que permite ir llevando la luz hasta las plantas inferiores (especialmente la entrega de la guardería con la medianera).
Finalmente las texturas, los detalles, el mobiliario, la iluminación artificial… Unos acabados de muy alto nivel arquitectónico a pesar de su modestia económica. un dominio de la técnica al alcance de muy pocos.
No conocía a esta pareja de arquitectos que, os prometo, a partir de ahora seguiremos muy de cerca.